BAAN O+O House/Junsekino建筑与设计
BAAN O+O House / Junsekino Architect and Design
尊重自然的设计理念:BAAN O+O House最令人印象深刻之处在于其对环境的尊重。设计师巧妙地利用了场地原有的倾斜地形,避免了大规模的土方工程和填埋,而是选择将建筑抬升,营造出一种轻盈、漂浮在空中的视觉效果。这种设计策略不仅减少了对环境的破坏,也最大程度地保留了场地的自然风貌。同时,建筑师将房屋的主要功能区域向外延伸,减少了建筑的占地面积,进一步降低了对土地的冲击。这种设计理念体现了对自然环境的敬畏之心,以及对可持续发展的深刻理解,是项目的一大亮点。
巧妙的空间利用与通风设计:项目的核心在于其对于空间和环境的巧妙结合。首先,建筑下方的“tai thun”空间,既是泰国传统建筑的现代演绎,又提供了额外的户外活动空间,增强了居住的舒适性。其次,矩形盒子的设计和室外庭院的设置,极大地优化了自然光的引入和室内空气流通。每个房间都拥有两面玻璃墙,一面朝向庭院,另一面朝向自然景观,实现了室内外空间的无缝连接,促进了空气的流通,降低了室内温度,减少了对能源的依赖。这种设计方案充分考虑了热带气候的特点,体现了对被动式设计的巧妙运用。
结构与材料的完美结合:钢结构的应用是BAAN O+O House成功的关键。轻盈的钢框架既提供了足够的支撑,又使得建筑具有了漂浮的视觉效果。同时,设计师巧妙地选择了透明、轻盈的材料,如大面积的玻璃墙,使得建筑与周围的自然环境融为一体。这种对于材料的精湛运用,不仅提升了建筑的现代美学,也最大化地了自然采光和视野。整个项目体现了现代美学与工程技术的完美结合,营造出一种简洁、通透、与自然和谐共生的居住体验。设计师通过精巧的设计,将建筑打造成了一个能够充分拥抱阳光、空气和景观的理想居所。

© DOF Sky|Ground

© DOF Sky|Ground
建筑师提供的文字描述。BAAN O+O是一个小型家庭度假屋,位于呵叻府,坐落在泰国第三大国家公园考艾郁郁葱葱的自然景观中。该场地的特点是其倾斜的地形,建筑师没有显著改变景观或增加过多的填充物,而是选择了一种尊重和协调原始地形的设计方法。这座建筑高出地面,给人一种房子优雅地“漂浮”在陆地上的视觉印象。
Text description provided by the architects. BAAN O+O is a small family vacation home, located in Nakhon Ratchasima, nestled within the lush natural landscape of Khao Yai, the third largest national park in Thailand. The site is characterized by its sloping terrain, and rather than significantly altering the landscape or adding excessive fill, the architect chose a design approach that respects and harmonizes with the original topography. The building is elevated above the ground, creating the visual impression of a house that gracefully "floats" above the land.

© DOF Sky|Ground
该建筑的设计灵感来自于建造一个看起来从悬崖延伸出来并完全向无障碍的自然景观开放的住宅的概念,其设计是从最小的基础上悬挑出来的。建筑师将房屋的主要可用区域定位为从小占地面积向外延伸,从而最大限度地减少对土地的影响。
Inspired by the concept of creating a home that appears to extend out from a cliff and opens fully to unobstructed natural views, the building is designed to cantilever out from a minimal foundation. The architect positioned the main usable areas of the house to extend outward from a small footprint, thereby minimizing the impact on the land.

© DOF Sky|Ground

© DOF Sky|Ground
建筑下方不需要填埋或改变地形,成为传统泰国“tai thun”的现代诠释——一个开放的地下空间。这个区域是一个户外生活空间,非常适合放松或户外活动。此外,它增强了被动通风,允许自然气流,有助于冷却建筑。
Beneath the building, which required no landfilling or terrain alteration, becomes a modern interpretation of the traditional Thai "tai thun" —an open underfloor space. This area functions as an outdoor living space, ideal for relaxation or open-air activities. Additionally, it enhances passive ventilation, allowing natural airflow that helps cool the building.

© DOF Sky|Ground

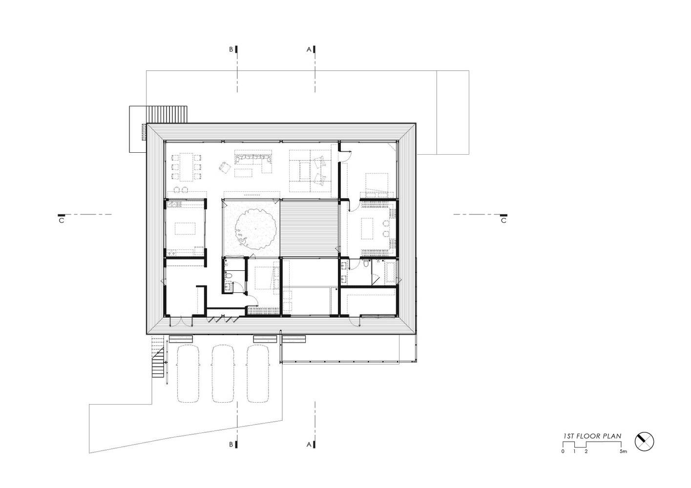
First Floor Plan

© DOF Sky|Ground

© DOF Sky|Ground
钢结构的使用是这种建筑方法的关键组成部分。钢框架看起来又薄又轻,但足够坚固,可以支撑建筑的悬挑部分,使房子看起来漂浮在半空中。这创造了一个简单而引人注目的形象,将现代美学与令人印象深刻的工程相结合。使用的大多数材料都强调透明度和轻盈性,例如大型玻璃墙,它完全向外界开放了视野,在内部和周围的自然之间建立了无缝的连接。这使居民能够从房子的每个角落体验大自然的美丽。
The use of a steel structure is a key component of this architectural approach. The steel frame appears slim and lightweight but is strong enough to support the cantilevered sections of the building, making the house seem to float in mid-air. This creates a simple yet striking image, combining modern aesthetics with impressive engineering. Most of the materials used emphasize transparency and lightness, such as large glass walls that fully open up the views to the outside, creating a seamless connection between the interior and the surrounding nature. This allows residents to experience the beauty of nature from every corner of the house.

© DOF Sky|Ground
建筑师将建筑设计成一个简单的矩形盒子,这使得布局简单高效。建筑的中心是一个室外庭院,是将自然光和周围氛围引入室内空间的关键因素。平面图允许在整个房子周围流通,房间的布置使每个房间的两侧都有玻璃墙——一个面向庭院,另一个朝向周围的自然景观。这种布置促进了房间内的气流,有助于减少室内热量,降低制冷能耗。
The architects designed the building as a simple rectangular box, which makes the layout simple and efficient. The center of the building is opened up as an outdoor courtyard, serving as a key element to draw natural light and the surrounding atmosphere into the interior spaces. The floor plan allows circulation around the entire house, with rooms arranged so that each has glass walls on two sides—one facing the courtyard and the other opening toward the surrounding natural landscape. This arrangement promotes airflow across the rooms, helping to reduce indoor heat and lower energy consumption for cooling.

© DOF Sky|Ground

© DOF Sky|Ground
Baan O+O代表了建筑与自然的无缝融合,通过使用轻型建筑技术、环保的场地布局和充分拥抱光线、空气和景观的室内空间来实现。这是一种现代的住宅设计方法,不仅在视觉上引人注目,而且植根于责任和长期可持续性。
Baan O+O represents a seamless integration of architecture and nature, achieved through the use of light construction techniques, environmentally conscious site placement, and interior spaces that fully embrace light, air, and view. This is a modern approach to residential design that is not only visually compelling but also rooted in responsibility and long-term sustainability.

© DOF Sky|Ground