Cultra Taproom咖啡厅酒吧/Idee建筑师
Cultra Taproom Cafe Bar / Idee architects
历史与现代的对话:Cultra Taproom项目最令人印象深刻之处在于它对历史建筑的尊重和创造性改造。设计者并没有简单地推倒重建,而是深入挖掘了这座百年殖民地建筑的价值。他们精心修复了上层立面,保留了原有的建筑细节,如阳台、窗户和砖砌,这些元素构成了河内建筑的独特标志。这种对历史文脉的尊重,与对狭窄小巷的巧妙利用形成了鲜明对比,体现了设计师对过去与现在对话的深刻理解。这种设计策略赋予了建筑独特的灵魂,也为项目注入了持久的生命力。
空间重塑与功能融合:该项目的精髓在于对空间流线的重新规划和多功能性的巧妙融合。设计团队克服了狭窄小巷带来的挑战,通过对一楼的重新设计,创造了一个引人入胜的展示空间,巧妙地将康普茶产品融入其中。楼梯作为建筑的中心特征,连接了不同的功能区域,并巧妙地引入了采光井。这种对空间的重新塑造,不仅解决了建筑结构上的难题,更提升了空间的整体体验感。从餐厅到酒吧,从商店到咖啡馆,多种功能的无缝融合,使得Cultra Taproom成为了一个充满活力和吸引力的多功能场所。
材料的对话与细节的雕琢:设计师对材料的运用和细节的雕琢是项目成功的关键。他们修复并保留了旧木地板和砖块,保留了原始的质感和情感。在屋顶酒吧的设计中,新旧瓦片的巧妙结合,既保留了建筑的怀旧感,又引入了现代元素。天窗的设置,在古老的墙壁中引入自然光线,营造出独特的氛围。这种对材料的精心选择和细节的精细处理,不仅体现了设计师对建筑的专业理解,也赋予了建筑更多的艺术价值。这些细节的叠加,共同塑造了Cultra Taproom独一无二的魅力,展现了设计者对“过去与未来”的深刻思考。

© Trieu Chien

© Trieu Chien
建筑师提供的文字描述。河内的Cultra Taproom项目为杭大街上一座百年殖民地风格的房子注入了新的活力,将河内珍贵的建筑遗产与现代活力融为一体。河内的老房子,有着狭窄的小巷和庭院,不仅仅是建筑;它们是这座城市历史和几代人成长空间的怀旧象征。对于新主人来说,这段丰富的历史是他们将青春活力与过去永恒优雅融为一体的愿景的基础。
Text description provided by the architects. The Cultra Taproom project in Hanoi breathes new life into a century-old colonial house on Hang Da Street, blending Hanoi's cherished architectural heritage with modern vibrancy. The old houses of Hanoi, with their narrow alleys and courtyards, are more than just structures; they are nostalgic symbols of the city's history and the spaces where generations of its people grew up. For the new owners, this rich history is a foundation for their vision of blending youthful energy with the timeless elegance of the past.

© Trieu Chien
这座建筑建于100多年前的法国殖民时代,随着时间的推移发生了重大变化。在经历了历史动荡和多次所有权转移之后,这座建筑已经恶化。由于补贴期的影响,公共区域已经缩小,维护不善,波纹金属屋顶、铁栅栏和临时地板下隐藏着美丽的建筑细节。一条狭窄的小巷穿过一楼的中心,只有大约60厘米宽,将建筑的立面分为两个不同的部分。鉴于建筑的共同所有权,这条小巷无法拆除,这对连接内部空间和创造建筑焦点提出了挑战。
The building, constructed over 100 years ago during the French colonial era, had undergone significant changes over time. Following historical upheavals and multiple ownership transitions, the building had deteriorated. Fragmented by the period of subsidies, common areas had shrunk and were poorly maintained, with beautiful architectural details hidden beneath corrugated metal roofs, iron fences, and makeshift floors. A narrow alley running through the center of the ground floor, only about 60cm wide, split the building's façade into two distinct sections. Given the shared ownership of the building, this alley could not be removed, presenting a challenge for connecting the spaces within and creating architectural focus.

© Trieu Chien

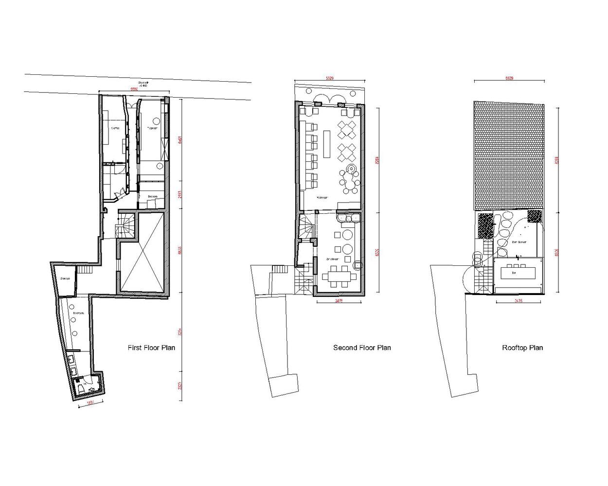
Floor Plan

© Trieu Chien
设计纲要呼吁打造一个多功能空间,在体现河内文化精髓的同时,提供多样化的功能:餐厅、商店、咖啡馆、酒吧、厨房和各种辅助区域。建筑师的目标是保护建筑的历史魅力,同时满足当代使用的需求。因此,该项目采用了恢复和现代适应的双重方法。
The design brief called for a multifunctional space that would embody the cultural essence of Hanoi while serving diverse functions: a restaurant, shop, café, bar, kitchen, and various ancillary areas. The architects' goal was to preserve the building's historical charm, while also meeting the demands of contemporary use. Thus, the project was developed with a dual approach of restoration and modern adaptation.

© Trieu Chien
该建筑的前立面分为两部分。上部经过精心修复,保留了原始设计,包括复杂的细节、砖砌和自然绿化。标志性的阳台和窗户是河内建筑身份的象征,在保持原有魅力的同时得到了复兴。相比之下,一楼被狭窄的小巷隔开,被重新设计。这条小巷被一种新的设计所软化,为Cultra的康普茶产品创造了一个诱人的展示空间。由此产生的小巷和更广阔空间之间的规模对比为游客增添了惊喜和发现的元素,唤起了河内老街长期以来的亲密小巷和庭院。
The building's front façade is divided into two sections. The upper part was carefully restored, preserving the original design, including intricate details, brickwork, and natural greenery. The iconic balcony and windows, symbols of Hanoi's architectural identity, have been rejuvenated while maintaining the original charm. In contrast, the ground floor, split by the narrow alley, was reimagined. The alley was softened with a new design that created an inviting display space for Cultra's Kombucha tea products. The resulting contrast in scale between the alley and the broader space adds an element of surprise and discovery for visitors, evoking the intimate alleys and courtyards that have long characterized Hanoi's old streets.

© Trieu Chien
空间之间的流动经过精心规划,以增强从内部到外部的连通性,无缝地引导游客穿过建筑。旧木地板和砖块经过修复和保存,保留了其原始的纹理和情感吸引力。原有的木制楼梯已经倒塌,取而代之的是一个由反映建筑历史和现代元素的材料制成的新楼梯,作为建筑的中心特征。该区域也是建筑不同部分之间的采光井和流通点。
The flow between spaces was carefully planned to enhance connectivity, from inside to outside, seamlessly guiding visitors through the building. The old wooden floors and bricks were repaired and preserved, retaining their original textures and emotional appeal. The original wooden staircase, which had collapsed, was replaced with a new one crafted from materials that reflect the building's historical and modern elements, acting as a central architectural feature. This area also serves as a light well and circulation point between the different sections of the building.

© Trieu Chien
一个独特的特点是小屋顶酒吧,在那里,原始的屋顶瓦片被修复,并被精心挑选的新瓦片所取代,与旧瓦片融为一体,保留了建筑的怀旧感。照明系统经过精心布局,以增强屋顶的美学吸引力,而上方的新玻璃和不锈钢天窗则增添了极简主义的现代气息。引入了一个天窗,在古老的风化墙壁中引入自然光,大自然在建筑内扎根。该设计融合了当代材料和元素,反映了新主人的年轻精神,同时尊重了历史背景。
A unique feature is the small rooftop bar, where the original roof tiles were restored and replaced with carefully selected new tiles to blend with the old ones, preserving the building's nostalgic feel. The lighting system was strategically placed to enhance the aesthetic appeal of the roof, while a new glass and stainless steel skylight above adds a minimalist, modern touch. A skylight was introduced to bring in natural light amidst the old, weathered walls, where nature had taken root inside the building. The design integrates contemporary materials and elements, reflecting the youthful spirit of the new owners, while respecting the historical context.

© Trieu Chien
这个项目代表了过去和现在的美丽融合,是一个在单一建筑空间中体现的不同社会发展时期的旅程。这是现代生活如何与传统共存的一个例子,创造了一个充满活力、多功能的环境,以庆祝河内建筑身份的丰富性。
This project represents a beautiful fusion of past and present, a journey through different periods of social development embodied in a single architectural space. It is an example of how modern life can coexist with tradition, creating a dynamic, multi-functional environment that celebrates the richness of Hanoi's architectural identity.

© Trieu Chien