库诺尔VAY
VAY, Coonoor
场地适应与景观融合:该项目最显著的亮点在于其对陡峭地形的巧妙应对以及与周围环境的和谐融合。建筑师深谙场地特征,通过减少建筑占地面积、采用悬挑设计、以及外露碾压混凝土后部作为配重,最大限度地减少了对地基的依赖,从而减少了对环境的破坏。同时,每栋建筑的朝向都经过精心设计,以充分利用北部山谷和丘陵的景观优势。景观设计与建筑的结合也堪称完美,自然溪流、当地植物、露天剧场、石阶和小径相互交织,营造出一个自然与人造和谐共生的场所,体现了设计对环境的尊重和对可持续发展的追求。
材料选择与空间体验:项目的精髓在于对材料的巧妙运用和对空间体验的精心营造。尽管受限于当地条件,未能采用当地土壤作为主要建筑材料,但设计师通过碾压混凝土、玻璃和砖墙的组合,成功地创造出一种冷暖交织的视觉效果。碾压混凝土的坚固沉稳与玻璃的轻盈通透形成对比,砖墙则在两者之间起到过渡作用。此外,木制上部结构被用于公共区域,营造出温馨舒适的氛围,与别墅形成视觉上的差异,丰富了空间层次。这种对材料的精细考量,不仅考虑了建筑的实用性,也提升了整体的空间品质,为使用者带来了独特的体验。
可持续性与细节设计:该项目在可持续性方面展现了卓越的实践。雨水收集系统的设计极具创新性,不锈钢雨水管兼具支撑楼梯和收集雨水的功能,并将其导向悬挑结构的混凝土水箱,而不是传统的地下水箱,巧妙地利用了建筑结构。此外,建筑的每一个细节都经过精心考虑,例如玻璃立面的使用,不仅减轻了悬挑部分的负担,也为室内提供了开阔的视野。这些细节设计体现了设计师对可持续发展理念的深刻理解,以及对建筑功能性、美观性和环境影响的全面考量,使得项目在整体上呈现出卓越的品质和价值。
Retreat Lodge / Biome Environmental Solutions

© Vivek Muthuramalingam

© Vivek Muthuramalingam
建筑师提供的文字描述。该项目位于尼尔吉里斯的一个老茶园,是一个韦丹塔、阿育吠陀和瑜伽疗养院,在陡峭的斜坡上有39间客房、一个接待处和一家餐厅。每栋建筑的朝向都是在现场决定的,以最大限度地欣赏北部山谷和丘陵的景色。
Text description provided by the architects. Located in an old tea estate in the Nilgiris, the project is a Vedanta, Ayurveda, and Yoga Retreat with 39 rooms, a reception, and a restaurant on a steeply sloping land. Each building's orientation was decided on-site to maximize the views of the valley and hills to the north.

© Vivek Muthuramalingam

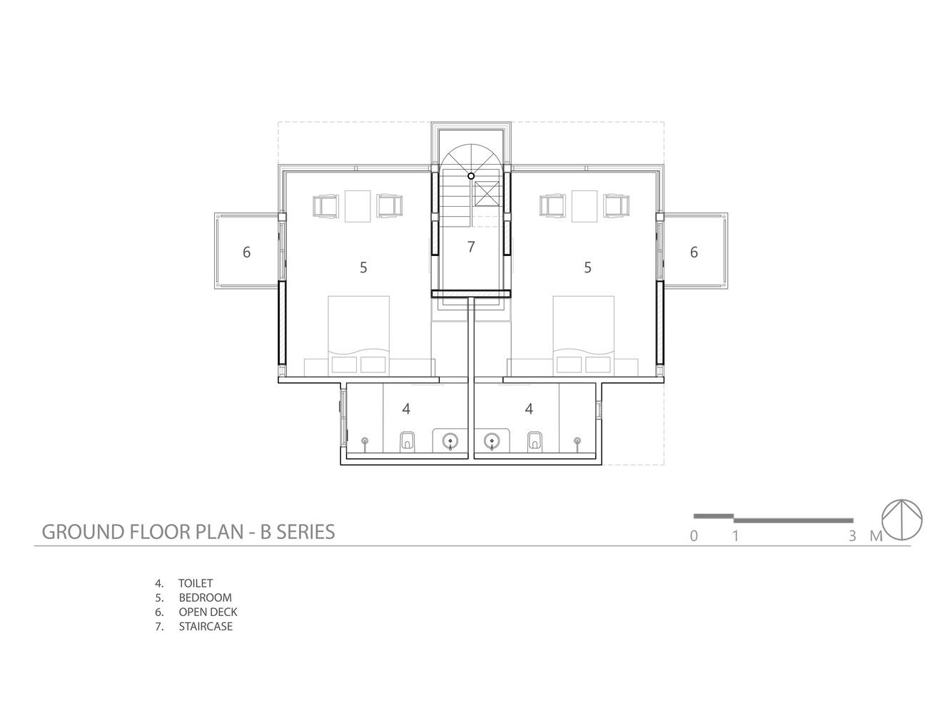
Ground Floor Plan

Section

© Vivek Muthuramalingam
为了与现场最合适的材料和技术理念保持一致,通过减少每栋建筑的基脚数量和悬臂前部,将每栋建筑在地面上的占地面积降至最低。这最大限度地减少了在陡峭场地上对高跷的需求,以及需要钻孔或凿除岩石以与基础连接的点的数量。为了实现这一目标,别墅的后部采用了外露的碾压混凝土设计,提供了一个配重,并将土壤挡在每个结构后面的上坡处。正面完全采用玻璃设计,减轻了悬挑部分的负担,并向北面的风景开放。在高跷不可避免的地方,通过在别墅下方建造一个木甲板来打破更高的体积,增加了一个舒适的聚会空间。
In keeping with the philosophy of the most appropriate material and technology for the site, each building's footprint on the ground is minimized by reducing the number of footings of each building and cantilevering the front. This minimizes the need for tall stilts on the steep site, as well as the number of points where the rock would need to be drilled or chipped to connect with the foundation. To achieve this, the rear of the villas is designed in exposed RCC, providing a counterweight, and also retaining the soil uphill behind each structure. The front is designed completely in glass, reducing the load on the cantilevered portion, and opening up to the scenic views to the north. Where taller stilts were unavoidable, the taller volume was broken by creating a wooden deck below the villa, adding a cozy hangout space.

© Vivek Muthuramalingam
尽管我们首选的建筑材料是当地土壤,通常是压缩的稳定土块或稳定的夯土,但由于岩石场地上没有足够的可用土壤,并且禁止在尼尔吉里地区的场地之间运输土壤,因此这里没有使用这种材料。相反,较冷的碾压混凝土和玻璃调色板由每栋别墅侧面的两道线切割砖墙加热,这也有助于从轻质玻璃前部过渡到重型混凝土后部。
对于普通结构,使用了放置在碾压混凝土框架基础上的木制上部结构,创造了一个温暖的空间,在视觉上也与别墅不同。
Although our preferred material for construction is local soil, generally in the form of compressed stabilized earth blocks or stabilized rammed earth, this was not used here due to the unavailability of sufficient usable soil on the rocky site, and the prohibition of transport of soil across sites in the Nilgiris.
Instead, the cooler palette of RCC and glass is warmed by two wire-cut brick walls on the side of each villa, which also negotiate the transition from the light glass front to the heavy concrete rear portion.
For the common structures, a wooden superstructure resting on an RCC frame foundation was used, creating a warm space that is also visually differentiated from the villas.

© Vivek Muthuramalingam
落在每栋别墅斜屋顶上的雨水通过一根不锈钢雨水管收集,该雨水管也支撑着楼梯,并收集在一个碾压混凝土水箱中,该水箱也是悬挑结构的一部分,而不是位于地下。景观设计是该项目不可或缺的一部分,将自然溪流和当地植物与露天剧场、石阶和小径交织在一起,创造出一个在自然和人造之间实现微妙平衡的场地。
The rainwater falling on the sloping roofs of each villa is harvested through a stainless steel rainwater pipe that also supports the staircase, and collects in an RCC tank that is also part of the cantilevered structure, rather than located underground. The landscape design is an integral part of the project, weaving the natural streams and local flora with the amphitheaters and stone steps and pathways to create a site that achieves the delicate balance between natural and man-made.

© Vivek Muthuramalingam