四海咖啡厅和房子婚礼/SPACE CHA
Sihaon Cafe and House Wedding / SPACE CHA
色彩的浪漫与场所精神的结合:这座建筑最引人注目的特点在于其外墙的红色,这与建筑业主对巴塞罗那的浪漫与激情的向往紧密相连。设计师通过对不同色调红色的选择和测试,最终确定了适合蔚山当地气候和老化过程的理想色彩。这种对色彩的精心选择,不仅赋予了建筑独特的视觉冲击力,更体现了设计师对场所精神的深刻理解,以及对业主情感的精准回应。建筑师将建筑定位为一个记录重要人生事件的背景,强调了其作为文化场所的价值。这种策略性的设计,使泗洪咖啡厅和婚礼之家不仅是一个物理空间,更是一个承载记忆和情感的载体,体现了建筑的生命力。
外立面元素的巧妙运用与功能性的平衡:除了引人注目的色彩之外,建筑外立面上“肋骨”的不同高度也是其设计的亮点之一。这种设计并非单纯的装饰,而是对当地强烈阳光照射的应对策略。通过这些肋骨,设计师成功地控制了光影,优化了室内环境,同时也为建筑赋予了独特的视觉节奏。这种对功能性和美学价值的巧妙结合,体现了设计师对建筑细节的精心雕琢。此外,建筑师将建筑比喻为人生道路上的平台,提供短暂的休憩,这种隐喻巧妙地呼应了建筑的功能——婚礼和聚会场所,强化了建筑与使用者之间的情感联系,使建筑更具人文关怀。
空间序列的变化与景观的融入:泗洪项目在空间序列的设计上颇具巧思。通过围墙高度的变化和缝隙的设置,建筑内部实现了多样化的景观呈现。这种设计手法避免了空间的单调性,增强了使用者在不同场景下的体验。高窗框景的设计,将永南阿尔卑斯山的美景引入室内,如同画框一般,提升了空间的艺术氛围。通过不同高度的窗户,使用者可以欣赏到池塘和景观,这种设计策略最大程度地利用了自然光,减少了人工照明的需求,从而营造出舒适的室内环境。这种对景观、光线以及使用者体验的综合考量,体现了设计师对建筑设计本质的深刻理解和对细节的极致追求。

© Kiwoong Hong

© Kiwoong Hong
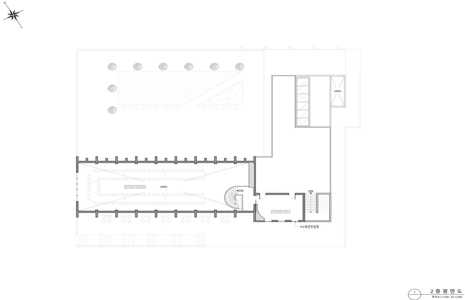
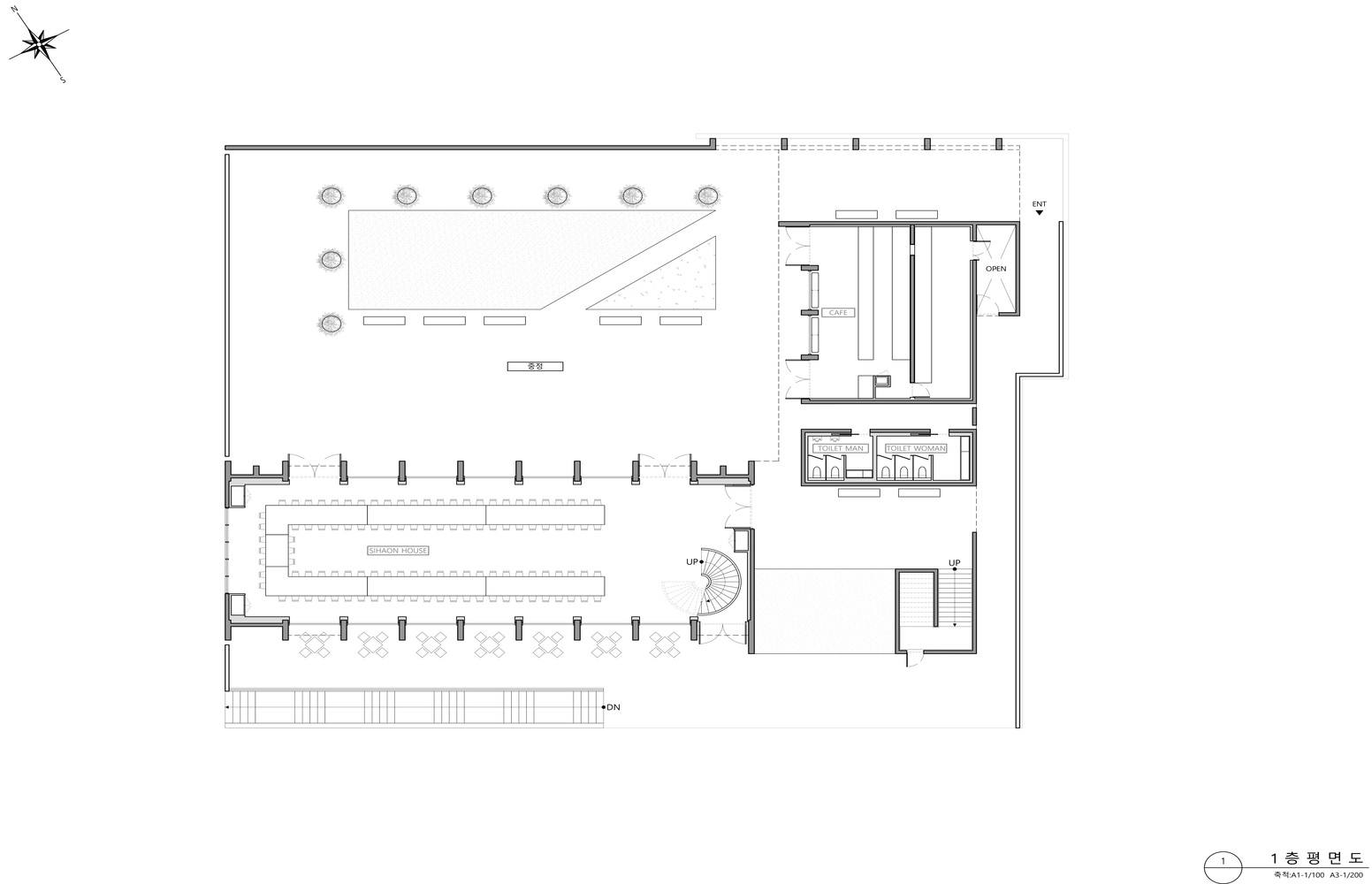
建筑师提供的文字描述。位于蔚山市蔚州郡桑布面千贞里的四浩,计划于2021年4月作为一个复杂的文化空间,供家庭婚礼和咖啡馆企业共同经营。到2024年5月,它在大约三年的时间里完工。该建筑包括位于一楼的四豪楼和四豪咖啡馆,用于婚礼和咖啡馆运营,位于二楼的四豪安Avil用作新娘等候室和小型家庭活动场所,以及位于地下一楼的四豪安花园,有一个宽敞的草坪,用于户外婚礼。
Text description provided by the architects. Sihaon, located in Cheonjeon-ri, Sangbuk-myeon, Ulju-gun, Ulsan, was planned as a complex cultural space where House Wedding and Cafe businesses could operate together in April 2021. It was completed over approximately three years by May 2024. The building consists of Sihaon House and Sihaon Cafe on the first floor for wedding ceremonies and cafe operations, Sihaon Avil on the second floor serving as a bride waiting room and a venue for small family events, and Sihaon Garden on the underground first floor with a spacious lawn for outdoor weddings.

© Kiwoong Hong

© Kiwoong Hong
泗洪最显著的特征是它的外观颜色,与主人非常相似。经营婚礼业务多年后,由于业务的性质,店主经常访问巴塞罗那。他们想要一座能捕捉到这座城市的浪漫和激情的建筑,这反映在它的红色建筑中。通过多次采样,选择了三种不同色调的红色,每种色调的温度、饱和度和亮度都不同。考虑到蔚山的天气和阳光,以及建筑的老化过程,确定并使用了最理想的颜色。此外,人们希望西哈翁能成为一个非凡的背景,记录婚礼等重大生活事件。
The most distinctive feature visible in Sihaon is the color of its exterior, which closely resembles the owner. Having run a wedding business for many years, the owner frequently visited Barcelona due to the nature of the business. They desired a building that captured the romance and passion of the city, reflected in its red-colored architecture. Through multiple samplings, three different shades of red were selected, each varying in temperature, saturation, and brightness. Considering the weather and sunlight in Ulsan, as well as the building's aging process, the most ideal color was determined and used. Additionally, there was a desire for Sihaon to serve as an extraordinary backdrop where significant life events, such as weddings, could be recorded.

© Kiwoong Hong

Floor Plan

© Kiwoong Hong

© Kiwoong Hong
泗洪通过各种设计元素丰富了看似简单的外观。如果说第一个显著特征是外墙颜色,那么第二个特征就是附着在建筑外墙上的“肋骨”的不同高度。三年前我们第一次参观该遗址时,我们考虑了强烈的直射阳光,并试图以最生动的方式反映该遗址的特点。此外,如果生活类似于爬楼梯,泗洪的目标是成为一个平台,为建筑业主和参观这个地方的人提供短暂的喘息机会。这反映了泗洪创造一个像楼梯平台一样的空间,提供片刻休息的品牌价值。这也符合泗洪对婚姻的定义,希望找到一个人一起爬剩下的楼梯。
Sihaon enriches the seemingly simple exterior through various design elements. If the first distinctive feature is the exterior color, the second is the varying heights of the "ribs" attached to the building's outer walls. When we first visited the site three years ago, we considered the intense, direct sunlight and aimed to reflect the site's characteristics in the most vibrant way possible. Additionally, if life is akin to climbing stairs, Sihaon aims to be a landing that provides a brief respite in the building owner's life and for those who visit this place. This reflects Sihaon's brand value of creating a space like a stair landing, offering a moment of rest. It also speaks to Sihaon's definition of marriage, hoping that find someone to climb the remaining stairs with.

© Kiwoong Hong

© Kiwoong Hong

Floor Plan

© Kiwoong Hong
哪里有会议,哪里就有告别。因此,泗洪在《空车》中留下了自己的离别记录。在漫长的施工期间,由于预算限制,有必要切实减少面积,这导致咖啡馆建筑的初步计划被取消。为了纪念这座建筑应该建在哪里,建造了一个池塘来增加节奏感。这种活力感也是为订单大楼设计的,员工工作区上方安装了天窗,使咖啡师有节奏、活泼的动作看起来像是一场庆祝表演。
Where there are meetings, there are always farewells. Thus, Sihaon has left its own record of parting in Space Cha. During the long construction period, it became necessary to realistically reduce the area due to budget constraints, which led to the initial plan for the cafe building being scrapped. In memory of the spot where the building was supposed to be, a pond was created to add a sense of rhythm. This sense of vitality was also planned for the order building, where skylights were installed above the employees' work area, making the baristas' rhythmic and lively movements look like a celebratory performance.

© Kiwoong Hong
第三个是序列的变化。考虑到周围树木的高度,Cha空间规划了围栏墙壁的不同高度,在它们相遇的地方有缝隙。在泗洪,人们可以欣赏到山脉的全景,并有意创造出多样化的景观。在内部,我们想通过多个序列注入活力,以防止花费的时间变得单调。当人们进入泗洪楼时,他们首先会遇到一扇像画一样勾勒出永南阿尔卑斯山的高窗,坐下来后,他们可以通过不同高度的窗户欣赏池塘和景观。因此,充足的日光进入,最大限度地减少了对人工照明的需求,在不直接照亮空间的情况下创造了一种身体舒适的状态。
The third is a variation of the sequence. Taking into account the heights of surrounding trees, Space Cha planned the varying heights of the walls of the enclosure, with slits where they meet. While in the Sihaon, one can enjoy a panoramic view of the mountains, and intentional sightlines beyond create diverse scenes. Inside, we wanted to inject vitality through multiple sequences to prevent the time spent from becoming monotonous. As people enter the Sihaon House, they first encounter a tall window framing the Yeongnam Alps like a painting, and upon sitting down, they can enjoy views of the pond and landscaping through windows of different heights. As a result, ample daylight enters, minimizing the need for artificial lighting, creating a physically comfortable state without directly illuminating the space.

© Kiwoong Hong