父亲与面包/工作室130
Father & Bun / Atelier130
项目概念的独特性与叙事性:项目巧妙地将场地限制转化为设计优势,充分利用了原有的结构元素,特别是具有历史感的石墙。设计者没有试图掩盖这堵墙,反而将其作为核心元素,赋予了空间独特的个性和深度。此外,项目强调真实性、怀旧感和故事叙述,这使得空间不仅仅是一个餐厅酒吧,更是一个承载着情感和记忆的场所。韦斯·安德森式的异想天开和高端美式餐厅的舒适感相结合,创造出了一种引人入胜的氛围,这种叙事性在建筑、品牌策略和氛围之间实现了完美的统一。
空间布局的巧妙与材料的运用:面对狭窄的场地限制,设计者通过巧妙的布局和材料运用,实现了空间的优化和视觉的和谐。木质镶板巧妙地隐藏了厨房,同时与石墙形成对比,丰富了空间的层次。天花板的原始状态保留,并与隔音泡沫板无缝集成,解决了功能需求,也保持了整体的美学统一性。此外,定制的家具和当地的生产,不仅支持了当地的工匠,也为空间注入了独特的风格,天鹅绒般的色彩搭配与不锈钢底座的运用,为空间奠定了折衷主义的基础,营造了舒适而精致的用餐体验。
灯光设计与细节的匠心:灯光设计是该项目的另一大亮点,PSLAB设计的照明系统,以其“看不见”的技术装置,为空间营造了独特的氛围。通过戏剧性的光束,突出了餐桌,强化了用餐体验的质感。此外,项目对细节的关注也值得称赞,例如入口处的下沉式设计,以及雕塑感的酒吧,都体现了设计师对空间利用和视觉效果的精心考量。壁画的运用更是画龙点睛之笔,将神圣的艺术与世俗的享乐相结合,为空间增添了文化内涵和视觉冲击力。这些细节共同构成了空间独特的魅力。

© Walid Rashid

© Walid Rashid
建筑师提供的文字描述。这家餐厅酒吧的灵感来自20世纪中叶曼哈顿的场所、韦斯·安德森异想天开的美学和高端美国食客的精致舒适。这个概念以真实性、怀旧和讲故事为中心,非常强调原材料和空间亲密感。
Text description provided by the architects. This restaurant bar draws its inspiration from a blend of mid-century Manhattan venues, Wes Anderson's whimsical aesthetics, and the refined comfort of high-end American diners. The concept centered around authenticity, nostalgia, and storytelling — with a strong emphasis on raw materials and spatial intimacy.

© Walid Rashid
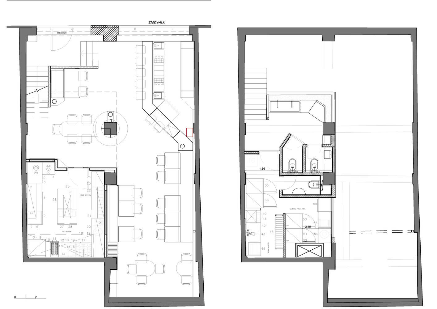
该场地早期存在几个限制:主要的结构柱、具有挑战性的夹层和楼梯布局,以及位于街道以下90厘米的主楼。此外,房东对改造现有的双层石墙施加了严格的限制,这是原始建筑中与家族遗产相关的珍贵元素。具有讽刺意味的是,正是这堵墙成为了设计的概念锚。我们没有隐藏它,而是赞美它的原始性,让它定义了项目的物质诚实和情感深度。
The site presented several constraints early on: a dominant structural column, a challenging mezzanine and stair layout, and a main floor that sat 90cm below street level. Additionally, the landlord placed strict limitations on altering the existing double-height stone wall — a cherished element from the original construction tied to the family's heritage. Ironically, this very wall became the conceptual anchor of the design. Rather than hide it, we celebrated its rawness, allowing it to define the project's material honesty and emotional depth.

© Walid Rashid

© Walid Rashid

Floor Plan

© Walid Rashid
为了支持形式和功能,天花板保持了原始状态,无缝集成了隔音泡沫板,以解决回声问题——这是一个重要但不可见的元素,设计、生产和安装了21dB。照明在定义空间氛围方面发挥了关键作用。该概念由PSLAB设计并在当地生产,侧重于看不见的技术装置——以演员为中心的戏剧梁,突出了餐桌,强化了用餐体验的美食性质。
To support both form and function, the ceiling was left raw, with acoustic foam panels seamlessly integrated to address the issue of echo — an essential yet invisible element designed, produced, and installed by 21dB. Lighting played a key role in defining the spatial atmosphere. Designed and locally produced by PSLAB, the concept focused on technical fixtures that remain unseen — casting focused, theatrical beams that highlight the table and reinforce the gourmet nature of the dining experience.

© Walid Rashid

Elevation

© Walid Rashid
覆层和布局的巧妙相互作用有助于解决狭窄空间的局限性。突出石墙的下半部分覆盖着木镶板,隐藏了厨房,在不影响功能的情况下保持了视觉和谐。舒适而精确的空间规划使紧凑的占地面积感觉宽敞舒适。
A clever interplay of cladding and layout helped resolve the limitations of the narrow space. The lower half of the prominent stone wall is clad in wooden paneling that conceals the kitchen, maintaining visual harmony without compromising functionality. Cozy yet precise spatial planning makes the compact footprint feel generous and comfortable.

© Walid Rashid

© Walid Rashid
家具是定制设计和当地生产的,这是在经济危机后支持黎巴嫩工匠的慎重选择。椅子以天鹅绒般的芥末黄和柔软的灰色为特色,而酒吧凳子则用棕色皮革包裹。桌子的顶部是浓郁的绿色,配有咖啡色的不锈钢底座,为色彩基调奠定了基础,并为折衷主义奠定了基础。
Furniture was custom-designed and locally produced, a deliberate choice to support Lebanese artisans in the wake of the economic crisis. Chairs feature a palette of velvety mustard yellow and soft greys, while the bar stools are wrapped in brown leather. Tables are topped in rich green with coffee-toned stainless steel bases, setting the chromatic tone and grounding the eclecticism.

© Walid Rashid
独特的场地条件——室内低于人行道——决定了空间布局。客人走下楼梯进入空间,迎接他们的是一个90厘米高的雕塑酒吧,与街道水平对齐。这家酒吧由钢制成,覆盖着垂直的木板,顶部有一个绿色的柜台,是一件温馨实用的艺术品。
The unique site condition — with the interior sitting lower than the sidewalk — informed the spatial configuration. Guests descend a staircase to enter the space, greeted by a sculptural bar set at 90cm, aligning with the street level. Built in steel, clad with vertical wood panels, and topped with a green counter, this bar acts as a welcoming, functional artwork.

© Walid Rashid

© Walid Rashid

Section

© Walid Rashid

© Walid Rashid
从那里,两个不同的用餐区展开。夹层下面是一个更休闲的酒吧区,可以喝饮料和吃点心。在内部深处,一个狭窄的餐厅区域提供了亲密感,座位沿着三堵墙排列。为了最大限度地提高空间效率,布局以连续的长凳排列在这些墙上为特色,在不过度拥挤的情况下提供舒适的公共体验。甚至在踏入教堂之前,抵抗之心就已经可见:一幅用传统教堂技术绘制的双层壁画,描绘了一个超现实、放荡的派对场景——神圣的艺术与世俗的放纵相遇。该项目由Atelier130设计,与品牌策略师兼创意总监Mo Al Ghossein密切合作,确保建筑、身份和氛围之间的连贯叙事。
From there, two distinct dining areas unfold. Under the mezzanine is a more casual bar zone for drinks and nibbles. Deeper inside, a narrow restaurant area offers intimacy, with seating arranged along three walls. To maximize space efficiency, the layout features continuous benches lining these walls, allowing for a cozy, communal experience without overcrowding. The pièce de résistance is visible even before stepping inside: a double-height mural painted in traditional church techniques, portraying a surreal, debauched party scene — where divine art meets earthly indulgence. The project was designed by Atelier130, in close collaboration with branding strategist and creative director Mo Al Ghossein, ensuring a cohesive narrative between architecture, identity, and atmosphere.

© Walid Rashid