小学勒克斯/EVA建筑师
Primary School Lux / EVA architecten
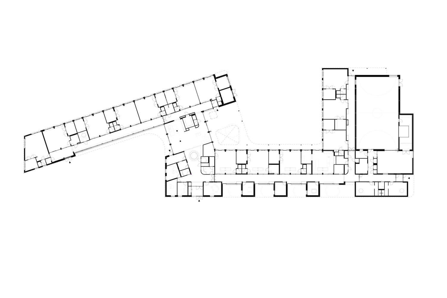
空间重塑与功能优化:从专业角度来看,该项目最突出的亮点在于对原有单层建筑的巧妙改造。设计师没有选择推倒重建,而是充分利用现有结构,通过重新组织空间布局和功能分区,赋予了学校新的生命力。将走廊区域下移,用于容纳新的设施和设备,这一策略既解决了现有建筑的局限性,又为建筑立面的改造提供了契机。小组室与长走廊之间的关系,以及“心”和会议空间的缺失,都得到了有效的解决。设计团队注重在有限的空间内,通过精心的规划,创造出更开放、更具互动性的学习环境,以满足特殊教育的需求。
立面设计与环境融合:项目的精髓在于其对立面设计的独到理解。设计师将立面处理成“松紧带”般环绕建筑的形式,不仅赋予了建筑独特的视觉效果,更巧妙地实现了遮阳、连接等多种功能。通过对原有建筑的改造,设计师将注意力转移到“中间空间”——露台上,这些空间成为了走廊和公共空间之间的重要过渡。屋顶天篷的设计,既连接了两个建筑翼,又创造了有遮蔽的室外活动空间。这种设计理念不仅提升了建筑的美观度,更增强了建筑与周围环境的融合,使学校成为了一个更具活力和吸引力的场所,强调了对户外空间和自然光的充分利用。
可持续设计与节能技术: 除了空间和外观上的革新,项目在可持续性和节能方面也展现出卓越的设计理念。建筑师采用了空气热泵和地暖系统,确保了学校的供暖需求。为了满足现行的2012年建筑法令(新建)的ENG标准,设计团队还优化了建筑的热工性能,这反映了对环境保护和资源节约的重视。这种可持续设计理念贯穿于整个项目,从材料的选择到技术的应用,都体现了对环境友好的承诺。通过这些举措,该项目不仅为特殊教育提供了一个理想的学习场所,也为未来的建筑设计树立了典范,将功能性、美观性和可持续性完美地结合在一起。

© Sebastian van Damme

© Sebastian van Damme
建筑师提供的文字描述。苏伦乌得勒支区Stauntonstraat上的SO Lux学校建筑于1973年建成,在空间和功能方面不再符合当前对特殊教育的期望。此外,这座建筑非常陈旧。已决定翻修这座建筑。目前的学校是一座单层建筑,在整个位置上延伸到两翼。由于这些低矮的建筑,建筑的功能很难辨认,入口也没有明确的标识。在学校里,小组室毗邻长长的走廊,没有“心”或会议空间。该设计是在现有横截面的基础上开发的。Stauntonstraat的走廊区域低于相邻的团体房间。通过在这里组织所有新的装置,我们可以到达走廊区域和小组室,这些区域的绝缘屏蔽创造了我们用于建筑的新立面。
Text description provided by the architects. The school building of SO Lux on the Stauntonstraat in the Utrecht district of Zuilen was realized in 1973 and no longer meets the current wishes for special education in terms of spatial and functional aspects. In addition, the building is very outdated. It has been decided to renovate the building. The current school is characterized as a single-storey building that extends over the entire location in two wings. Due to these low buildings, the function of the building is difficult to read, and there is no clear recognition of an entrance. In the school, the group rooms are adjacent to long corridors without a 'heart' or meeting space. The design was developed from the existing cross-section. The corridor zones on Stauntonstraat are lower than the adjacent group rooms. By organizing all the new installations here, we can reach both the corridor zones and the group rooms and the insulated shielding of these creates a new façade that we use for the architecture.

© Sebastian van Damme
立面像松紧带一样围绕着建筑,除了作为屋檐外,还起着雨棚或连接元件的作用。在Stauntonstraat,扩建部分占据了立面,现在人们的注意力转向了中间的空间,即露台,它们形成了走廊和公共空间之间的美丽过渡。在两个建筑翼相遇的地方,我们再次开辟了一个连接两个室外空间的美丽会议空间。在这个位置,天蓬将两翼连接成一所学校,形成了一个有盖的户外空间,用于干游戏和作为会议空间的延伸。当天棚以流畅的线条拉起时,我们隐藏了屋顶上的装置,并标记了新的主入口。在Stauntonstraat上引人注目、引人注目且引以为豪。
The façade is pulled around the building like elastic bands and, in addition to being eaves, also functions as a canopy or connecting element. Where on Stauntonstraat the extensions dominated the façade, attention now goes to the in-between spaces, the patios, which form a beautiful transition between corridor and public space. Where the two building wings meet, we open up the space again for a beautiful meeting space that connects the two outdoor spaces. At this location, the canopy literally connects both wings into one school and forms a covered outdoor space for dry play and as an extension of the meeting space. Where the canopy is pulled up in a flowing line, we hide the installations on the roof and mark the new main entrance. Prominent, visible and proud on the Stauntonstraat.

© Sebastian van Damme

New Floor Plan

© Sebastian van Damme

© Sebastian van Damme
学校的主要承重结构由砖石柱组成,每三个网格有一堵承重墙。在设计中,小组室被缩减为两个网格,用于教授课程的小组。第三网格形成与相邻组室的链接,并包括侧室和与组室直接相邻的卫生间。这样,老师就可以保持对小组的全面了解。主入口周围是我们在现有扩建部分中提供更多专科护理的办公室,如言语治疗和游戏监督。球队的房间有点隐蔽,靠近新的心脏。
The main load-bearing structure of the school consists of masonry columns with a load-bearing wall every three grids. In the design, the group rooms are reduced to two grids for the small groups in which lessons are taught. The third grid forms the link with the adjacent group room and includes a side room and a toilet room that is directly adjacent to the group room. This way, the teacher maintains an overview of the group. Around the main entrance are the offices where we have housed the more specialist care, such as speech therapy and play supervision, in the existing extensions. The team room is somewhat sheltered, adjacent to the new heart.

© Sebastian van Damme

Canopy, Trees and Green Roof Diagram

© Sebastian van Damme
空气热泵被用来给学校供暖。团体间采用地暖供暖,并由中央空气处理系统提供额外的预热空气。对于健身房,Frenger天花板提供供暖/制冷,并配有单独的空气处理装置进行通风。结合隔热外壳的优化,学校符合现行2012年建筑法令(新建)的ENG标准。
An air heat pump is used to heat the school. The group rooms are heated by underfloor heating with additional preheated air from a central air treatment. For the gymnasium, a Frenger ceiling provides heating/cooling with a separate air treatment for ventilation. Together with the optimisation of the thermal shell, the school meets the ENG criteria in accordance with the current Building Decree 2012 (new construction).

© Sebastian van Damme