Pavillon A5艺术与人文学院/Saucier+Perrotte建筑事务所
Pavillon A5 Faculty of Arts and Humanities / Saucier + Perrotte architectes
空间组织与交流理念:Pavillon A5项目最突出的亮点在于其对“交流”这一核心理念的深刻解读与实践。建筑师巧妙地将不同功能空间,如会议室、休息室与研究人员办公室,进行差异化布局,促成了“向上运动”的视觉引导。这种设计不仅丰富了空间体验,更鼓励了使用者在不同楼层间、不同学科间的互动与交流。楼梯被赋予了非正式交流的功能,成为连接各部门的纽带。一楼的入口大厅则专为学生社区打造,营造了轻松愉快的氛围。这种设计理念将建筑不仅仅视为物理空间,更视为促进知识碰撞、激发思想火花的场所。
立面设计与景观互动:建筑师在立面设计上展现了精湛的技巧。全玻璃的公共空间如同点缀在立面上的宝石,不仅为室内提供了充足的自然光线,也让建筑与外部景观建立了紧密的联系。这些公共空间能够欣赏到壮丽的区域景观,使用户在思考和交流的同时,也能享受视觉上的愉悦。这种设计策略强化了建筑与环境的对话,使Pavillon A5不再是一个封闭的盒子,而是与周围环境和谐共生的有机体。南立面和西立面的设计也充分考虑了采光、遮阳等因素,体现了对可持续设计的关注。
无障碍设计与整体性:项目对“通用可达性”的重视体现了建筑师的社会责任感。主入口的设计充分利用了场地地形,确保了与现有校园人行道的无缝衔接,为所有使用者提供了便利。入口大厅向外延伸的设计,通过雨棚创造了室内外的过渡空间,模糊了内外边界。此外,相邻庭院融入了艺术家的作品,将建筑与艺术文化相结合,进一步丰富了建筑的内涵。这种整体性的设计理念,从空间布局到细节处理,都体现了对用户体验的极致追求,也使得Pavillon A5成为一个具有包容性和人文关怀的杰作。

© Olivier Blouin

© Olivier Blouin
建筑师提供的文字描述。舍布鲁克大学艺术与人文学院新的“Avilion A5”概念旨在促进各系教授和学生之间的思想交流。各种形式的知识交流是新建筑设计背后的核心思想之一,并成为其独特建筑形式的催化剂。
Text description provided by the architects. The concept for the new ''Pavilion A5'' of the Faculty of Arts and Humanities at the Université de Sherbrooke was developed to foster the exchange of ideas between professors and students across all departments. The exchange of knowledge in all its forms is one of the central ideas behind the design of the new building and becomes the catalyst for its unique architectural form.

© Olivier Blouin

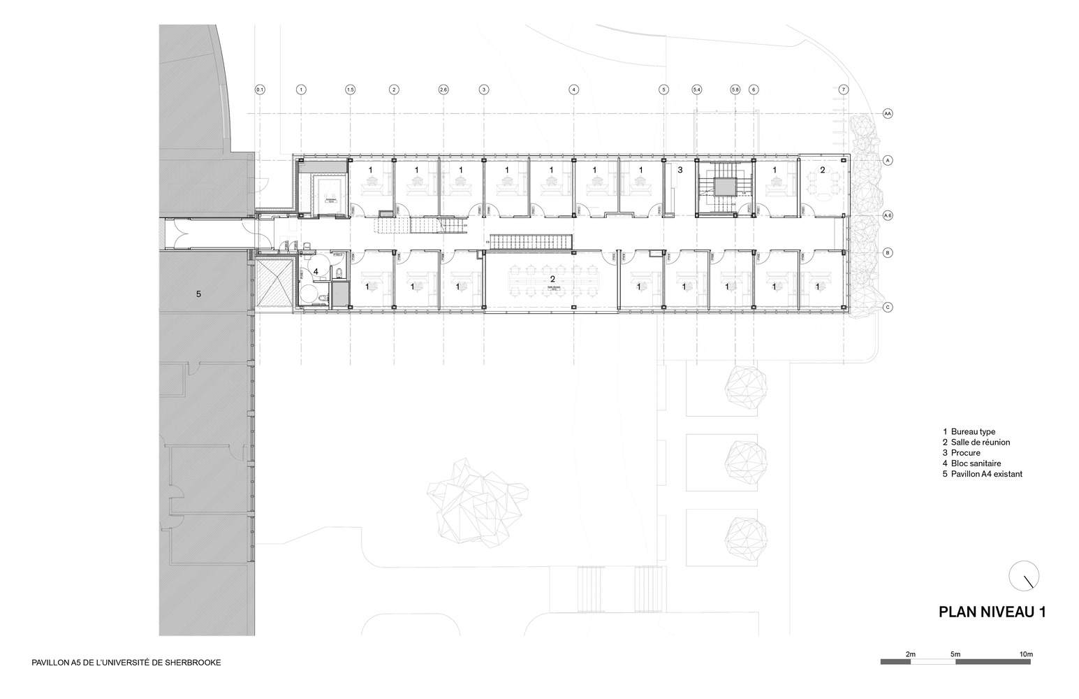
Plan - 1st Floor

© Olivier Blouin
新展馆包括艺术与人文学院的支持功能,如教授/研究员办公室、几个会议室和一个大型员工休息室。教授和研究人员的办公室沿着规则的网格分布,而会议室和员工休息室则沿着向上的方向分布在整个项目中。通过这种提升,用户被邀请从每一层楼思考区域景观,并互动和交流想法。这些全玻璃的公共空间在外观上很显眼,因为它们巧妙地点缀着立面。
The new pavilion includes support functions for the Faculty of Arts and Humanities, such as professor/researcher offices, several meeting and conference rooms, and a large staff lounge. The offices of the professors and researchers are distributed along a regular grid, while the meeting rooms and staff lounges are distributed throughout the project following an upward movement towards the landscape. Through this ascension, the users are invited to contemplate the regional landscape from each floor and to interact and exchange ideas. These fully glazed public spaces make their presence known on the exterior as they subtly punctuate the facades.

© Olivier Blouin

© Olivier Blouin

Section

© Olivier Blouin
展馆的主要流通区域包括部门之间的连接楼梯,这些楼梯的位置根据每层楼的会议空间而定。这些空间呈现了该地区山脉的壮丽景色,自然光无处不在。楼梯成为非正式接触的机会,同时为建筑的线性方面注入活力。位于大楼上层的新员工休息室很快成为用户最喜欢的聚会场所,可以欣赏到奥福德山的壮丽景色。在一楼的入口大厅设立了一个放松和工作区,主要供学生社区使用。
The main circulation areas of the pavilion incorporate connecting staircases between departments, which are located according to the meeting spaces on each floor. These spaces present striking views of the region's mountains and natural light is present everywhere. The staircases become opportunities for informal encounters while energizing the linear aspect of the building. The new staff lounge, located on the upper level of the building, quickly became a favorite gathering place for users, offering a breathtaking view of Mount Orford. A relaxation and workspace has been set up in the entrance hall on the ground floor, mainly used by the student community.

© Olivier Blouin

© Olivier Blouin

South Elevation

© Olivier Blouin

West Elevation
特别强调了普遍可及性。主入口的位置利用了场地的地形,确保进入展馆的通道与现有的校园人行道齐平。入口大厅在雨棚下向外延伸,形成了内外之间的平滑连接。相邻的庭院以艺术家Yann Pocreau的作品为特色,灵感来自艺术与人文学院教授的学科。
Special emphasis was placed on universal accessibility. The location of the main entrance takes advantage of the site's topography, ensuring that access to the pavilion is level with the existing campus footpaths. The entrance hall extends outside under a canopy creating a smooth connection between inside and outside. The adjacent courtyard features the work of artist Yann Pocreau inspired by the disciplines taught at the Faculty of Arts and Humanities.

© Olivier Blouin