石山画廊/CHIKARAISHI建筑工作室
Gallery in Ishiyama / CHIKARAISHI ARCHITECTS STUDIO
空间与功能的完美平衡: 这座石山画廊的设计展现了建筑师对空间和功能性的精湛把握。单间布局的最大化运用,灵活适应车间、产品展示和会议等多重用途。无固定分区的设计理念,使开放空间能轻松融入各种活动,包括季节性活动,赋予了建筑强大的适应性和生命力。二层空间的设计,兼顾了实用性和舒适性,通过日本柏木地板和中央中庭,营造出温馨、明亮且令人放松的商务会议环境。这种灵活的空间规划是项目的一大亮点,充分体现了建筑师对使用者需求的深刻理解。
材料与可持续性的和谐统一: 建筑对天然材料的积极运用是项目的一大亮点。特别是对日本扁柏(hinoki)的使用,不仅赋予了建筑独特的视觉质感和结构稳定性,更传达了对可持续发展理念的深刻理解。柱子1.82米的间隔,体现了结构的美学,内墙石膏的运用则营造出柔和的光线效果和宁静的氛围。项目还融入了“keinen bika”的概念,强调了建筑随着时间和使用而增值的特性。这种对材料和可持续性的关注,使得这座画廊成为一个能够不断积累记忆,与环境和谐共生的空间。
透明性与企业文化的完美融合: 项目的另一个重要特点是其开放性和透明性。建筑师通过大面积的玻璃幕墙,使产品和内部活动一览无余,将建筑打造成了展示企业文化的平台。这种透明的设计不仅满足了客户希望产品从外部可见的需求,还将建筑本身转化为街道景观中的一个标志性存在。这种设计策略体现了建筑师对企业形象的深刻理解,成功地将建筑与企业文化相结合。画廊不仅仅是展示产品的场所,更是企业理念与工艺的有力传播者,充分体现了建筑的社会价值。

© Takeshi Chikaraishi

© Takeshi Chikaraishi
建筑师提供的文字描述。这座位于滋贺县大津的两层木制画廊是一家专门从事电子设备的公司的品牌中心。该建筑不仅仅是一个功能性的设施,它被设想为一个向外界传达公司理念和工艺方法的平台。
Text description provided by the architects. This two-story wooden gallery, newly built in Ōtsu, Shiga Prefecture, serves as a brand hub for a company specializing in electronic devices. More than simply a functional facility, the building was envisioned as a platform to communicate the company's philosophy and approach to craftsmanship to the outside world.

© Takeshi Chikaraishi

© Takeshi Chikaraishi
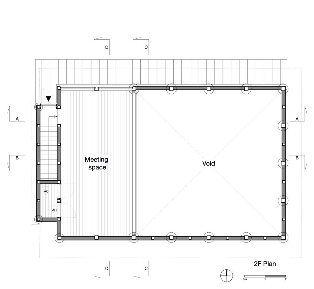
该建筑以7.28乘10.92米的单间布局为中心。它的设计可以灵活地适应各种用途,包括车间、产品展示区和会议空间。布局避免了固定的分区,使开放空间能够轻松适应各种用户活动和季节性事件。除了支持日常运营外,画廊还作为产品发布、客人招待会以及内部和外部沟通的场所。
The structure is centered around a single-room layout measuring 7.28 by 10.92 meters. It was designed to flexibly accommodate a variety of uses, including a workshop, product display area, and meeting space. The layout avoids fixed partitions, allowing the open space to adapt easily to various user activities and seasonal events. In addition to supporting daily operations, the gallery also serves as a venue for product launches, guest receptions, and both internal and external communication.

© Takeshi Chikaraishi

2F Floor Plan

Section

© Takeshi Chikaraishi
客户的主要要求之一是他们的产品从外部可见。为了满足这一需求,该建筑的立面采用了大型玻璃表面,让路人自然地看到产品和内部活动。这种对公司开放身份的透明表达也将建筑变成了街景中的象征性存在。
One of the client's primary requests was that their products be visible from the outside. To meet this need, the building's façade incorporates large glass surfaces, allowing passersby to naturally view the products and internal activities. This transparent expression of the company's open-minded identity also turns the architecture into a symbolic presence within the streetscape.

© Takeshi Chikaraishi
由于现场建筑面积的限制,部分结构被开发为二层,最大限度地利用了可用空间。一楼是一个开放的展览和工作区,而二楼可以脱鞋进入,为商务会议提供了轻松的氛围。上层铺有坚固的日本柏木地板,通过中央中庭与地面相连,营造出明亮舒适的环境。
Due to building area limitations on site, a portion of the structure was developed as a second story, maximizing the use of the available space. The first floor functions as an open exhibition and work area, while the second floor, accessible by removing shoes, offers a relaxed atmosphere for business meetings. Featuring solid Japanese cypress flooring and connected to the ground level through a central atrium, the upper floor offers a bright and comfortable environment.

© Takeshi Chikaraishi
结构框架由180平方毫米的扁柏(日本扁柏)柱组成,间隔1.82米。这种有规律的节奏给空间一种力量和稳定的感觉。内墙采用石膏装饰,可以柔化光线的反射,营造出一种平静的氛围,这种氛围会随着时间的推移而微妙地变化。
The structural framework consists of 180mm square hinoki (Japanese cypress) columns placed at intervals of 1.82 meters. This regular rhythm gives the space a sense of strength and stability. The interior walls are finished with plaster, which softens the reflection of light and creates a calm atmosphere that subtly shifts with the time of day.

© Takeshi Chikaraishi
可持续性也是该项目的一个关键主题。通过积极采用天然材料,该设计减少了对环境的影响,同时融入了keinen bika的概念——这种美丽随着年龄和使用而加深。为了与可持续发展目标保持一致,该建筑旨在随着公司自身的发展而变得更加丰富,成为一个随着时间的推移积累记忆和历史的空间。
Sustainability was also a key theme in the project. By actively incorporating natural materials, the design reduces environmental impact while embracing the concept of keinen-bika—the beauty that deepens with age and use. In alignment with the goals of the SDGs, the building is intended to grow richer in character alongside the company's own development, becoming a space where memories and history accumulate over time.

© Takeshi Chikaraishi