高公园的房子/Ian MacDonald建筑师股份有限公司。
House in High Park / Ian MacDonald Architect Inc.
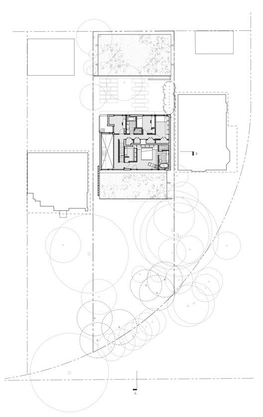
项目概述与场地回应:这栋位于高公园的住宅,体现了建筑师对场地特性的深刻理解。面对原住宅毁于火灾的特殊情况,建筑师巧妙地将“缺失的牙齿”转化为设计契机。项目着重恢复和自然化峡谷景观,这不仅为住户提供了视觉上的享受,也为公众创造了共享的景观资源。 这种设计策略充分利用了场地固有的优势,将原本的劣势转化为项目的核心特质。建筑师对场地限制的积极回应,以及对自然景观的尊重与利用,都展现出卓越的设计理念和对环境的敏感性。
空间序列与内外连接:住宅的空间组织极具特色,通过一系列精心设计的空间序列,营造出独特的居住体验。从后巷进入住宅的超大旋转门,到浮动的绿色屋顶结构,都预示着对内部空间的期待。封闭的庭院作为入口,既是宁静的花园,也是私密的室外起居空间,实现了内外空间的流畅过渡。内部,压缩的起居区天花板高度,营造出亲密氛围,并与峡谷景观形成视觉上的连接。这种内外空间的相互呼应,增强了居住者与自然的互动,体现了建筑师对居住体验的精心考量。
材料与细节的精巧运用:项目的材料选择和细节处理也极具亮点。水平的Kebony墙板,用半透明木炭染色,使建筑呈现出阴影般的质感,突出了周围的自然景观。室内,裸露的粗锯冷杉结构,不仅展现了材料的质感,也强化了室内外的视觉连续性。厨房的双层通高设计,引入充足的光线,并通过非典型连接,与二层空间相连。建筑师在设计中注重对细节的把控,例如在卧室和浴室设置观景框架,从而减少外界干扰,增强了与自然的互动。这些精巧的设计细节,共同构成了这座住宅的独特魅力。

© Tom Arban

© Tom Arban
建筑师提供的文字描述。我们一直对与特定现场条件相关的明显缺陷或责任成为项目基本特征的属性的方式感到惊讶,这栋房子就是这种情况。挑战在于如何利用原始住宅完全毁于火灾的不寻常的空置房产。我们的网站代表了一个独户住宅区的一颗缺失的牙齿。然而,该地点的异常之处在于,其南部边界没有延伸到公共街道,颠覆了人们不能从“正面”进入住宅的事实。无法进入峡谷景观,我们决定将其恢复/自然化作为我们的首要任务,因为这个峡谷景观将为印第安谷新月的公共领域、相邻的公园和房子的居民提供视觉上的便利。
Text description provided by the architects. We have always marveled at the way an apparent shortcoming or liability related to a given site condition turns out to be the attribute that informs the essential character of a project, and such is the case for this house. The challenge was to make something of the unusual vacant property where the original dwelling had been completely lost to fire. Our site represented a missing tooth in a single-family residential neighborhood. The anomaly that defined the site, however, was the fact that its southern boundary did not extend to the public street, subverting the fact that one could not enter the dwelling from the "front". Entry through the ravine landscape was not possible and we decided that its restoration/naturalization should be our priority as this ravine landscape would provide a visual amenity to the public realm on Indian Valley Crescent, the adjacent parkette, and to the residents of the house.

© Tom Arban

Plan - Ground Floor

© Tom Arban
从后巷道到达住宅的信号是,一个人穿过一个超大的枢轴门,在一个浮动的绿色屋顶结构下,该结构同时容纳了车库、存储和网关功能。这一序列创造了一种期待,当一个人进入封闭的私人庭院时,这种期待会得到回报。这个空间是一个入口庭院,一个在花园里阅读和用餐的安静休息场所,也是从房子里看到的私人景观。它的封闭创造了一定程度的隐私,使其能够作为一个室外房间,补充了从主要房间体验到的南峡谷景观的自然景观。
Arrival to the residence from the rear laneway is signaled by one's passage through an oversized pivot door and under a floating green roof structure that at once accommodates carport, storage, and gateway functions. This sequence creates a level of anticipation that is rewarded by one's arrival into the contained private courtyard. This space serves as an entry court, a quiet place of repose for reading and dining in the garden, and as a private view prospect from the house. Its containment creates a level of privacy that allows it to serve as an outdoor room, complementing the natural view of the south ravine landscape experienced from the principal rooms.

© Tom Arban

Section
一个凹进的入口建立了一个有盖的“前廊”,通往一个内部门厅,提供了一个暂停的时刻,从那里可以看到南峡谷的景色。人们可以选择穿过厨房或通过开放式学习区到达平面图中心的主要生活区。生活和用餐区位于一楼平面图的南面。居住区的压缩天花板高度在火周围建立了一个亲密的地方,并可以看到远处的峡谷。空间的分段开发,整个南立面上有一个连续的高架屋顶,屋顶上有裸露的粗锯冷杉结构,表明了内外的连续性,并加强了这个居住场所与自然之间的联系。
A recessed entrance establishes a covered "front porch" leading to an interior vestibule that provides a moment of pause, from which views to the south ravine are withheld. One has the option of passing through the kitchen or via an open study area to the principal living area in the center of the plan. The living and dining areas occupy the south face of the ground floor plan. The compressed ceiling height of the living area establishes a place of intimacy around the fire and opens out to a view of the ravine beyond. The sectional development of the space, with a continuous elevated roof of exposed rough-sawn fir structure across the entire south frontage suggests continuity between inside and out and reinforces a connection between this place of occupation and nature.

© Tom Arban

Plan

© Tom Arban
线性厨房是一个双层高的空间,吸引了充足的光线和非典型的连接,与二楼的更多私人空间相连。这种有机的姿态自然地将光线和视野引入室内。用餐区朝南,将厨房与起居区流畅地连接起来。在北面,一个前书房围绕着一个柴炉布置,为家人和朋友提供了一个休闲的连接点,并在视觉上将厨房与入口庭院融为一体。
The linear kitchen is a double-height volume inviting generous light and atypical connections to more private spaces on the second floor. This organic gesture naturally draws light and views into the interior. The dining area, facing south, fluidly connects the kitchen with the living area. To the north, an anterior den is arranged around a woodstove, providing a casual point of connection for family and friends, and visually engaging the kitchen with the entry courtyard.

© Tom Arban

Iso Section

© Tom Arban
在二楼,卧室和浴室的观景架将小巷和道路的中间景观编辑掉,从而增强了与自然的接触感。三楼是父母休息的圣地,远离家里其他活动的喧嚣,提供了一个工作、休息和享受桑拿体验的地方。悬挑屋顶和绿色屋顶景观构成了这里的景观,为峡谷森林的成熟林冠内的恢复提供了一个理想的境界。
On the second floor, view frames from the bedrooms and bathrooms edit out the middle-ground landscape of the lane and road so that the sense of engagement with nature is enhanced. The third floor is the parental sanctum place of repose, remote from the fray of the other activities in the house, providing a place to work, lounge, and enjoy the experience of sauna rounds in quiet repose. Views from here are framed by the cantilevered roof and the green roof landscaping to present an ideal realm for restoration embedded within the mature forest canopy of the ravine forest.

© Tom Arban
这所房子恢复了从公共道路上看到的街景。它的形式和适度的比例源于与邻近住宅的对齐,因此它在这个标准的街道类型框架内的存在是舒适的。随机宽度的水平Kebony墙板的雨幕覆盖层,用半透明的木炭染色,将建筑呈现为阴影,使周围的树叶优先于建筑,并定义了场地。相邻房屋的对齐和遮挡使景观的焦点保持在峡谷的自然景观上。一旦进入,没有人会怀疑这所房子在市中心。它代表了一个安静的插入,与更传统的邻居舒适地坐在一起,因为它提供了与历史悠久的High Park Ravine的本土景观的慷慨连接。
This house restores the streetscape as viewed from the public road. Its form and modest proportions are derived from alignments with neighboring dwellings so that its presence within this standard typological framework of the street sits comfortably. A rain screen cladding of random-width horizontal Kebony siding finished with a semi-transparent charcoal stain presents the building as a shadow, allowing the surrounding foliage to take precedence over the architecture and define the site. The alignment and screening of the neighboring houses allow the focus of the view to remain on the natural landscape of the ravine. Once inside no one would suspect this house was in the heart of the city. It represents a quiet insertion that sits comfortably with its more traditional neighbors as it provides generous connections to the native landscape of the historic High Park Ravine.

© Tom Arban