木混凝土房屋/庄园
Wood-Concrete House / mano
场地与城市文脉的巧妙融合: 项目最令人印象深刻的亮点在于其对场地条件的敏锐回应。在狭窄的不连续城市地块上,设计者巧妙地运用垂直延伸的方式,重新诠释了独立展馆的类型。这不仅最大化地利用了有限的空间,也在保持原有城市尺度和街道节奏的前提下,实现了建筑的体量感和空间感。建筑师在设计中充分考虑了与周围环境的和谐共生,这体现在对现有砖石结构的保留和利用上,以及对街道立面的低调处理上,使建筑既融入环境又不失个性。
材料的对话与空间的流动性: 建筑设计中对木材和混凝土的巧妙运用,是项目的一大亮点。木材的温暖质感与混凝土的原始质感形成了鲜明的对比,营造出丰富的视觉层次和触觉体验。特别是花园一侧的木立面,与郁郁葱葱的外部环境形成对话,突出了建筑的结构清晰度。在室内空间的设计上,开放式的平面布局强调了从街道到花园的视觉连续性,模糊了室内外的界限,使光线能够自由流动,创造出通透、开阔的空间感受,体现了设计对空间流动性和材料真实性的追求。
设计理念的深度与实践的智慧: 项目体现了MANO作为建筑机构和设计研究机构的专业性。它不仅仅是一个建筑设计,更是一种参与式和情境设计的探索。项目在应对复杂的空间和社会情况时,展现了建筑的清晰性和建设性的智慧。设计师在设计中避免了形式主义的表达,更注重材料、光线和功能的协调统一,营造出一种平静而舒适的居住氛围。这种设计理念超越了简单的形式美学,更关注建筑与居住者之间的互动,以及建筑对环境的积极影响,体现了设计师对建筑的深刻理解和实践能力。

© Antoine Duhamel

© Antoine Duhamel
建筑师提供的文字描述。该项目将一座20世纪30年代的普通郊区住宅改造成一座宽敞明亮的住宅。新结构位于不连续的城市结构中的一块狭窄地块上,重新诠释了独立展馆的类型,在保持城市规模和街道节奏的同时垂直延伸。
Text description provided by the architects. This project transforms a modest 1930s suburban house into a generous and light-filled dwelling. Located in a narrow plot within a discontinuous urban fabric, the new structure reinterprets the typology of the detached pavilion, extending vertically while preserving the urban scale and rhythm of the street.

© Antoine Duhamel

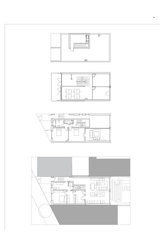
Plans

© Antoine Duhamel
在一个独立的街道立面后面,这座房子通向一个宽敞的三层建筑,完全用固定在现有砖石结构上的木框架结构重建。花园一侧的木立面与郁郁葱葱的外部形成了强烈的对话,并揭示了房屋的结构清晰度。在内部,两个开放式平面提供了从街道到花园的完整视觉连续性,强调了透明度、空间对比和材料的真实性。
Behind a discrete street façade, the house opens up into a spacious three-story volume, entirely rebuilt with a timber frame structure anchored to the existing masonry. The wooden façade on the garden side creates a strong dialogue with the lush exterior and reveals the house's structural clarity. Inside, two open-plan levels offer full visual continuity from the street to the garden, emphasizing transparency, spatial contrast, and material sincerity.

© Antoine Duhamel

Section AA
木材和原混凝土结构之间的相互作用——国内经验。日光流过大型窗户,为一系列模糊内部和外部边界的体积设置动画。建筑语言避免了正式的手势,有利于材料、光线和功能的平静表达。
The interplay between wood and raw concrete structures the domestic experience. Daylight flows through large-scale windows, animating a sequence of volumes that blur the boundaries between interior and exterior. The architectural language avoids formal gestures, favoring a calm articulation of material, light, and function.

© Antoine Duhamel

© Antoine Duhamel
该项目是MANO正在进行的参与式和情境设计探索的一部分。作为一家建筑机构和设计研究机构,MANO旨在以建筑清晰度和建设性智慧应对复杂的空间和社会情况。
The project is part of MANO's ongoing exploration of participatory and contextual design. As both an architectural agency and a design-research practice, MANO aims to respond to complex spatial and social situations with architectural clarity and constructive intelligence.

© Antoine Duhamel