Frid别墅/蒸汽庭院
Frid Villa / Vapor arquitetura
改造与更新的智慧: 该项目最令人印象深刻的亮点在于其对现有建筑的巧妙改造与更新。设计团队没有选择推倒重建,而是将一座450平方米的住宅改造成五个独立的住宅单元,这体现了对可持续发展理念的深刻理解。项目尊重原有建筑的结构和美学,保留了石墙、玻璃砖和粘土瓦屋顶等特色元素,并通过新建部分与原有建筑的对话,实现了新旧之间的和谐统一。这种策略不仅减少了资源浪费,也赋予了原有建筑新的生命力,使其适应了现代城市对居住空间多样化的需求,展现了建筑师对城市文脉和环境的尊重。
空间利用与功能融合: 该项目的精髓在于对空间的高效利用和功能的完美融合。设计团队通过创建共享的公共区域,如流通空间、花园和车库,为居民提供了社交和休闲的场所,同时,每个单元都拥有私人的花园和露台,保证了居住的私密性。这种设计策略巧妙地平衡了公共性和私密性,创造了一个宜人的居住环境。此外,通过在后部新建街区集中基础设施支持,既保留了原有建筑的物理特征,又满足了现代化生活的需求。这种功能布局的优化,使得整个住宅村在有限的空间内实现了多种功能的有机结合。
材料与细节的匠心: 在材料的选择和细节的处理上,该项目同样体现了建筑师的匠心独运。混凝土结构与金属梁的混合使用,兼顾了结构的稳定性和建筑的轻盈感。材料的选择也考虑到了与原有建筑的协调,新建区域采用了与原有建筑相似的材料,强化了建筑语言的统一性。内部空间中,玻璃砖的运用,巧妙地引入了自然光线,营造出通透明亮的空间感,与木质面板的结合,更增添了温馨舒适的氛围。项目在细节上的精雕细琢,使每个单元都充满了品质感和个性,提升了整体的居住体验,也展现了建筑师对材料和光线的敏感度。

Cortesia de Vapor Arquitetura

Cortesia de Vapor Arquitetura
建筑师提供的文字描述。该项目包括将圣保罗Alto de Pinheiros社区的一座450平方米的住宅改造成五个自治住宅单元,每个单元的面积从60平方米到100平方米不等。目标是确保新单元保持家庭的特色,始终具有扩展和整合内部空间的室外区域。
Text description provided by the architects. The project consists of transforming a 450 m² residence located in the Alto de Pinheiros neighborhood in São Paulo into five autonomous residential units, with areas ranging from 60 to 100 m² each. The goal is to ensure that the new units maintain the character of a home, always with outdoor areas that expand and integrate the internal spaces.

Cortesia de Vapor Arquitetura

Cortesia de Vapor Arquitetura

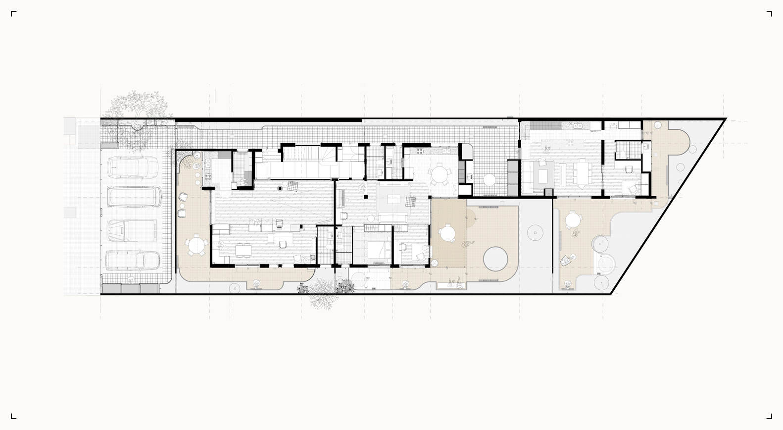
Plan - Ground Floor

Cortesia de Vapor Arquitetura
该提案旨在创建一个住宅村,其公共区域包括流通空间、花园、汽车和自行车车库,以及所有单元的私人花园和露台。改造重新定义了原始房屋,在不大幅改变建筑面积的情况下使其适应新的需求,反映了当前城市对修改其用途和密度的需求,而不一定需要建造新建筑。
The proposal is to create a residential village with common areas that include circulation spaces, gardens, and garages for cars and bicycles, as well as private gardens and terraces for all units. The transformation redefines the original house, adapting it to new demands without significantly altering its built area, reflecting a current city demand for revising its uses and densities without necessarily resorting to the construction of new buildings.

Cortesia de Vapor Arquitetura

Cortesia de Vapor Arquitetura
该项目的概念是与原有建筑的存在相结合,保护和更新其美学。旧住宅的石墙、玻璃砖和粘土瓦屋顶与新的干预措施保持了对话。
The project concept is to work with the pre-existence, preserving and updating the aesthetics of the original building. The masonry walls, glass bricks, and clay tile roof of the previous residence are maintained in dialogue with the new interventions.

Model

Model
为了保留现有主楼的物理特征,综合体的所有基础设施支持都集中在位于地块后面的新建街区。该街区设有一个住宅单元和一块技术板,以满足村庄的运营需求。新街区和现有街区之间使用类似的材料加强了建筑语言的连续性,从而形成了一套由具有相同美学和功能质量的单元组成的建筑,这些单元之间没有层次。
To preserve the physical characteristics of the existing main building, all the infrastructure support for the complex has been concentrated in a newly constructed block located at the back of the lot. This block houses one of the residential units and also a technical slab to meet the operational needs of the village. The use of similar materials between the new block and the existing one reinforces the continuity of the architectural language, resulting in a set composed of units with the same aesthetic and functional quality, without hierarchy among them.

Cortesia de Vapor Arquitetura
对于新建区域的建设和现有建筑中的结构加固,采用了混凝土结构和金属梁的混合系统,用于封闭、传统砌体、铝框架和单元之间的外部混凝土墙。在内部区域,玻璃砖与木板和封闭物相结合,增强了自然光进入单元的效果。次要结构,包括花盆、外部封闭和轻质屋顶,均由金属结构制成。
For the construction of the new built areas and the structural reinforcements in the existing building, a mixed system using concrete structure with metallic beams was employed, for the closures, traditional masonry, aluminum frames, and external concrete walls between the units. In the internal areas, glass bricks enhance the entry of natural light into the units, in combination with wood panels and closures. The secondary structures, including planters, external closures, and lightweight roofs, are made with a metallic structure.

Cortesia de Vapor Arquitetura