马德里/UNIA ARQUITECTOS+FAU ARQUITECTOS的116套公共住房
116 Public Housing Units in Madrid / UNIA ARQUITECTOS + FAU ARQUITECTOS
空间布局与功能优化:该项目在有限的场地条件下,巧妙地平衡了住房的可用面积与公共空间和流通空间的占比。设计师深入研究了H型体块的结构特性,通过创新的9.5米结构网格,以及封闭侧面的设计,最大程度地优化了空间利用率,使建筑体量在紧凑的同时保持了良好的居住体验。此外,通过在一、二层将部分三居室单元替换为两居室单元,创造了三层通高的室外空间,不仅改善了室内庭院的采光和通风,也为建筑带来了独特的空间体验,展现了设计师对空间布局的精湛掌控。
立面设计与材料选择:项目立面设计是其突出的亮点之一。设计师巧妙地运用了透明度和运动感,打破了传统H型建筑的单调和僵硬。不透明的墙板与微穿孔钢板滑动面板的结合,不仅赋予了建筑立面丰富的视觉层次,更兼顾了太阳能和声学保护功能,充分考虑了用户的实际需求。这种设计不仅创造了独特的视觉效果,也使建筑能够根据环境变化和用户需求进行动态调整,展现了建筑的适应性和灵活性。材料的选择也体现了对可持续发展的重视,微穿孔钢板的使用既美观又环保。
预制化与可持续性:项目大量采用了预制和工业化建造系统,这不仅减轻了结构重量,减少了对钢材和基础的需求,降低了建筑垃圾的产生,也缩短了工期。楼梯核心筒在车间组装,通过采光井进行运输和安装,体现了高效的施工管理和对预制技术的熟练运用。此外,建筑在能源效率方面也达到了最高评级,这得益于高性能的围护结构(隔热和防水),以及与空气热系统相连的辐射地板供暖制冷系统。这些设计体现了对可持续发展的承诺,为居住者提供了舒适、节能的生活环境。

© Fernando Alda

© Fernando Alda
建筑师提供的文字描述。该提案旨在阐明场地条件以及该地块的城市特征、可建筑面积的最佳利用、所需的方案和房屋的空间质量。鉴于该计划的紧凑性,我们寻求房屋的可用面积与指定用于流通和公共空间的可用面积之间的最佳关系。
Text description provided by the architects. The proposal aims to articulate the site conditions alongside the urban character of the piece, the optimal use of buildable area, the required program, and the spatial quality of the homes. Given the tightness of the program, the best relationship between the usable area of the homes and that designated for circulation and common spaces is sought.

© Fernando Alda
地块的宽度、住房方案和可用的可建造性不可避免地允许建造一个有四个垂直核心的H型街区。然而,该提案试图通过一个9.5米的结构网格来解决这种类型的缺点,这个网格比平时稍大,并通过封闭侧面使最终的体积尽可能紧凑。同样,它通过采用具有透明度和运动性的立面,避免了这种类型的积木的构图刚性。因此,不透明的面板与由微穿孔钢板制成的滑动面板相结合,提供太阳能和声学保护,适应用户的需求,在周围环境中创造出标志性的形象。
The width of the plot, the housing program, and the available buildability inevitably allow for a type H block with four vertical cores. However, the proposal seeks to address the drawbacks of this typology through a structural grid of 9.5 meters, slightly larger than usual, and by enclosing the sides to make the resulting volume as compact as possible. Likewise, it avoids the compositional rigidity of this type of block by employing facades that play with transparency and movement. Thus, opaque panels are combined with sliding panels made of micro-perforated steel sheets that provide solar and acoustic protection, adaptable to the users' needs, creating an iconic image in its surroundings.

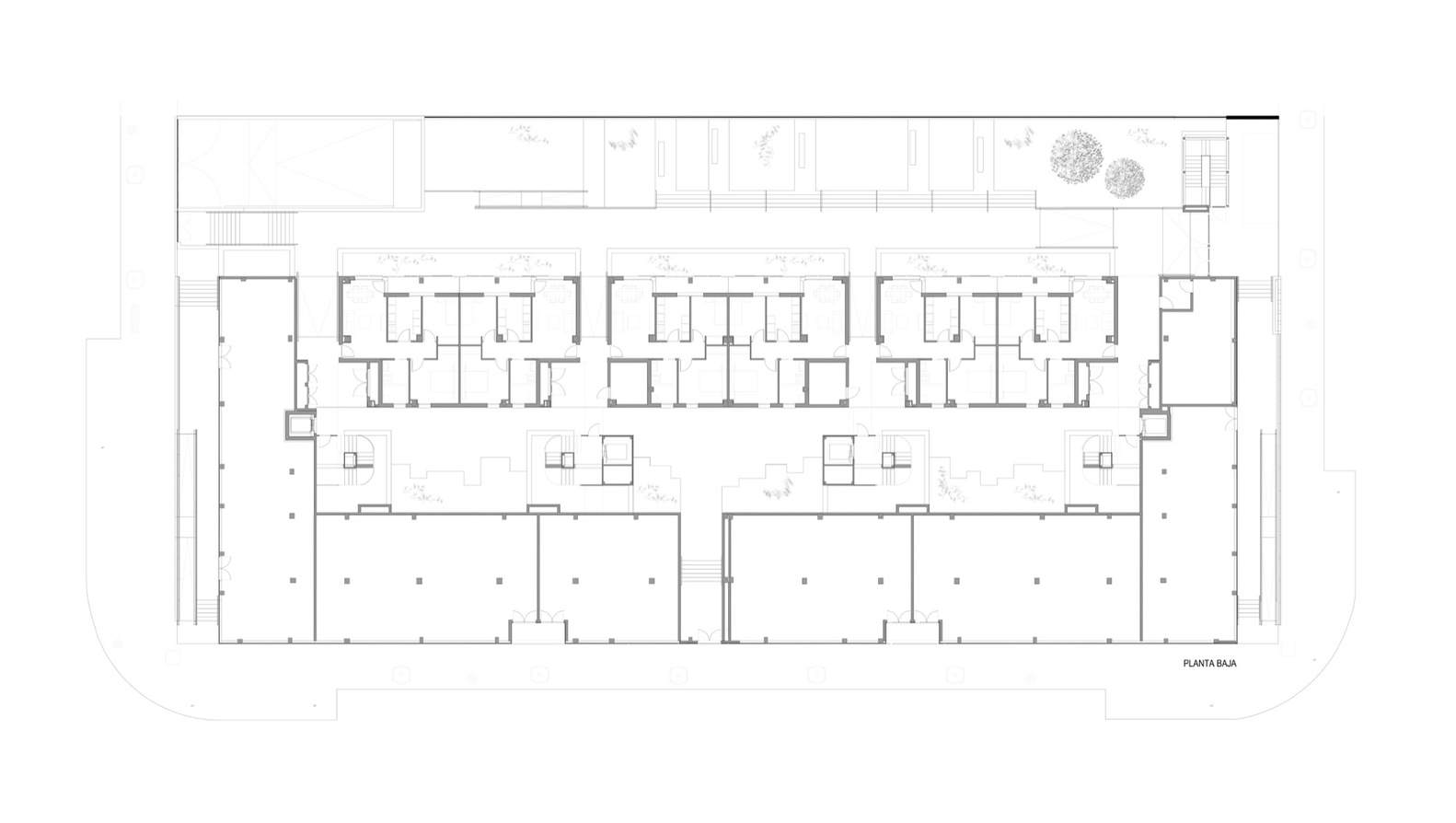
Plan - Ground Floor
一楼是商业区、改造后的住宅以及从后院花园到楼梯和电梯的通道。由于在一楼和二楼将四种类型的三居室单元换成了两居室,体量通过三层高的室外空间形成,从而改善了室内庭院的阳光和通风条件,减少了建筑面积,以适应最大的可用建筑能力。最后,阁楼层以独特类型的两居室单元完成了该提案,这些单元设有大型私人露台。
The ground floor houses the commercial area, the adapted homes, and the access passages from the backyard garden to the stairs and elevators. Thanks to the exchange of four types of 3-bedroom units for 2-bedroom types on the first and second floors, the volumetry is shaped through outdoor spaces of triple height, thus improving the sunlight and ventilation conditions of the interior courtyard and reducing the built area to fit the maximum available buildability. Finally, the attic level completes the proposal with unique types of 2-bedroom units that feature large private terraces.

© Fernando Alda
新的技术手段和劳动力结构使住房再次成为协调个人和职业生活的地方。因此,在入口附近有一个房间可以专门用于这项活动,甚至可以接待访客。四居室类型允许其中一个被指定用于此活动,因为它位于入口大厅附近。
The new technical means and labor structures make housing once again a place to reconcile personal and professional life. Therefore, it is appropriate to have a room near the entrance that can be dedicated to this activity, even serving to receive visitors. The 4-bedroom types allow one of them to be designated for this activity as it is located adjacent to the entrance hall.

© Fernando Alda
开放空间的设计旨在通过人们可以漫步、坐下和聊天的舒适空间,在安全的环境中协调游戏、步行和社交互动。根据这一规定,鼓励所谓的“中间空间”,即作为家庭和街道之间连贯直观过渡的半公共空间。
The design of the open spaces aims to reconcile play, walking, and social interaction in a safe environment through comfortable spaces where people can wander, sit, and chat. With this provision, the so-called "intermediate spaces" are encouraged, the semi-public space that serves as a coherent and intuitive transition between home and street.

© Fernando Alda
该建筑主要采用预制和工业化系统建造,重量轻,大大节省了结构和基础的钢材,减少了建筑垃圾。楼梯核心在车间组装,随后通过采光井运输并放置在现场。
The building has been largely constructed with prefabricated and industrialized systems of great lightness, which has allowed for significant savings in steel for the structure and foundation, as well as a reduction in construction waste. The stair cores were assembled in the workshop and subsequently transported and placed on-site through the light well.

© Fernando Alda

© Fernando Alda
从能源的角度来看,由于围护结构在隔热和防水方面的高性能,以及所选的与空气热系统相连的地板辐射供暖冷却系统,这些房屋具有最高的评级。
From an energy perspective, the homes have a maximum rating thanks to the high performance of the envelope in terms of insulation and waterproofing, as well as to the chosen cooling system of radiant floor heating connected to the aerothermal system.

© Fernando Alda