奥斯卡/扬·扎卢德克建筑事务所
House Oskar / Jan Zaloudek Architekt
对环境的巧妙回应:这座住宅最令人称道的地方在于它与周围环境的和谐共生。建筑师巧妙地利用了当地的地形、历史遗迹(如巴洛克谷仓的遗迹和石墙)以及现有的树木,将建筑融入到自然和历史文脉中。这种设计理念避免了对城堡的视觉干扰,同时赋予了住宅独特的个性和永恒感。穿孔砖石结构的设计既是对当地历史建筑的回应,也起到了遮阳的作用,这种细节处理展现了设计师对光线、通风和材料运用的独到见解,使得建筑本身成为环境的一部分,而非突兀的存在。
对光线与空间的神圣理解:奥斯卡住宅的设计体现了对光线和空间的深刻理解。设计师充分利用了自然光,通过大面积的开窗、穿孔墙面以及屋顶窗户,营造出室内外空间相互融合的氛围。室内高达7米的拱形天花板,以及圆形窗户的设计,不仅提升了空间的视觉冲击力,更赋予了空间神圣的意味。这种设计理念不仅满足了居住者的基本需求,更创造了一个可以沉思、冥想和激发创造力的场所。通过对光线、阴影的巧妙运用,住宅内部空间呈现出令人着迷的视觉效果,也突出了建筑与自然环境的互动。
细节之处的艺术与生活:奥斯卡住宅不仅是一座建筑,更是一个充满艺术氛围的生活空间。建筑师将艺术融入到每一个细节之中,从室内设计、家具选择到艺术品的陈列,无不体现着对美学的极致追求。定制的木制和石制家具、精美的艺术品、以及精心挑选的灯具,共同营造出一种和谐统一的视觉效果。这种设计理念不仅提升了居住的舒适度,更体现了建筑师对生活品质的理解。住宅不仅仅是居住的场所,更是艺术的载体和生活的舞台,每个细节都透露着居住者的品味和对美好生活的向往。

© BoysPlayNice

© BoysPlayNice
建筑师提供的文字描述。巴洛克花园中的现代住宅-由建筑师JanŽaloudek设计的奥斯卡住宅建在一个宽敞的花园里,这个花园最初属于南波希米亚村庄KamenáLhota的邻近城堡。该遗址引人注目的天才地点因巴洛克式谷仓的遗迹、数百年历史的成熟树木和一堵石墙而更加丰富,石墙将这片广阔的土地框起来,通往风景如画的乡村景观。
Text description provided by the architects. Modern House in a Baroque Garden-The House Oskar, designed by architect Jan Žaloudek, was built in a generous garden that originally belonged to the neighbouring chateau in the South Bohemian village of Kamenná Lhota. The site's remarkable genius loci is enriched by the remnants of a Baroque barn, centuries-old mature trees, and a stone wall that frames the expansive property, opening into the picturesque rural landscape.

© BoysPlayNice
沉思、灵感、娱乐——这座房子体现了沉思、灵感和娱乐的哲学,由建筑师为自己和家人建造。他们和他的妻子、艺术史学家和作家Jolanta Trojak一起,长期以来一直梦想着有一个地方,在那里人们可以与风景联系起来,或者向内撤退以恢复身心力量。他们设想了一个空间,不仅可以休息,还可以作为创造力和灵感的源泉——这些品质是他们日常生活中不可或缺的。他们一丝不苟地关注细节,创造了一个空间,在这个空间里,即使是最简单的日常活动也能转化为小而深刻的体验。奥斯卡之家是一个独特的缩影——一个和谐的庇护所,适合睡眠、阅读、用餐和创作,所有这些都与窗外的宇宙共生。
Contemplation, Inspiration, Recreation - The house, embodying the philosophy of contemplation, inspiration, and recreation, was built by the architect for himself and his family. Together with his wife, art historian and writer Jolanta Trojak, they long dreamed of a place where one could connect with the landscape or retreat inward to restore physical and mental strength. They envisioned a space that not only invites rest but also serves as a wellspring of creativity and inspiration—qualities integral to their everyday lives. With meticulous attention to detail, they created a space where even the simplest daily routines transform into small, profound experiences. The House Oskar is a unique microcosm—a harmonious sanctuary for sleeping, reading, dining, and creating, all in symbiosis with the universe outside its windows.

© BoysPlayNice

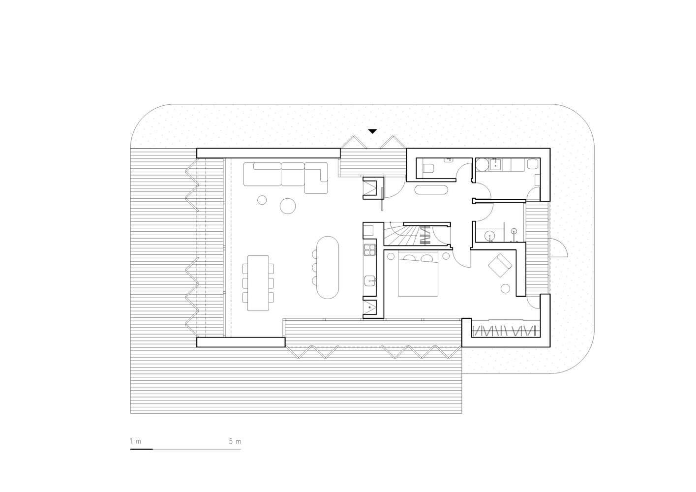
Ground Floor Plan

© BoysPlayNice
完美、不完美、永恒——这座房子的设计是由当地的地形和在文化保护区建造的限制因素决定的。建筑师精心地将建筑融入景观和历史背景中,确保它不会给城堡蒙上阴影,并散发出永恒的个性。受到村庄中缺乏的小教堂概念的启发,由此产生的建筑是对比的和谐融合:新旧、室内外、完美与不完美。该设计尊重了传统的山墙屋顶细长形房屋,借鉴了当地农业建筑的词汇。穿孔砖石结构是该建筑的标志性特征,附近的历史建筑中有采光和通风的开口。这一细节起到了南山墙遮阳的作用,并激发了其他立面上木制遮阳板的图案。房屋的紧凑形式在每个立面上都渗透着壁龛,这是对巴洛克形态的参考。这些壁龛形成入口门厅和凉廊,允许灵活遮阳。这座房子可以完全向景观开放,将居民与世界联系起来,也可以关闭以突出其冥想的特点。建筑材料尊重周围结构和景观的当地特色。承重结构由隔热陶瓷砌体和钢筋混凝土构件组成。白色灰泥立面与邻近建筑的色调和纹理相呼应。屋顶覆盖着烧制的瓷砖,遮阳板由粉刷过的捷克冷杉和云杉制成。
Perfection, Imperfection, Timelessness -The house's design was shaped by the local topography and the constraints of building on a culturally protected site. The architect carefully integrated the building into the landscape and historical context, ensuring it did not overshadow the château and exuded a timeless character. Inspired by the idea of a chapel, lacking in the village, the resulting architecture is a harmonious blend of contrasts: new and old, interior and exterior, perfection and imperfection. The design respects the traditional elongated form of houses with gabled roofs, drawing on the vocabulary of local agricultural buildings. Perforated masonry, with openings for light and air found in nearby historical structures, serves as the building's defining feature. This detail acts as a sunshade for the southern gable wall and inspires the pattern of wooden shading panels on the other façades. The compact form of the house is permeated by niches on each façade, references to Baroque morphology. These niches form entry vestibules and loggias, allowing flexible shading. The house can either fully open to the landscape, connecting its residents to the world, or close off to highlight its meditative character. The building materials honour the local character of the surrounding structures and landscape. The load-bearing structure consists of insulated ceramic masonry combined with reinforced concrete elements. The white stucco façade echoes the tone and texture of neighboring buildings. The roof is clad with fired ceramic tiles, and the shading panels are made from whitewashed Czech fir and spruce.

© BoysPlayNice
自然循环和光-房子里的生活与自然循环和日光的运动密切相关。从卧室和主生活空间可以看到果园的全景,居民可以观察日出和月出。南立面有穿孔的山墙和令人印象深刻的圆形窗户,将社交空间与庭院和谷仓废墟连接起来。宽敞的开口将内部与外部无缝融合,延伸到木制露台、郁郁葱葱的绿地和历史悠久的石墙的凉爽拥抱中。西立面及其入口壁龛使房子免受村庄景观的影响。北侧山墙中的拱形壁龛为卧室、浴室和公用设施空间带来了光线,与附近巴洛克城堡的弯曲形式相呼应。可以使用白色遮阳板全天调节阳光进入室内的程度。一个阳光明媚的房间可以很快变成一个神奇的封闭空间,在那里,光影会令人着迷。晚上,光线会改变方向,房子被发光的壁龛照亮,照进风景中。内部由极简主义的白色灯具照亮,辅以日本和纸灯笼和燃木炉的闪烁光芒。
Natural Cycles and Light - Life in the house is intimately connected to natural cycles and the movement of daylight. From the bedroom and the main living space, which opens onto a panoramic view of the orchard, residents can observe the sunrise and moonrise. The southern façade, with its perforated gable wall and impressive circular window, connects the social space with the courtyard and the barn ruins. Generous openings seamlessly merge the interior with the exterior, extending into wooden terraces, lush greenery, and the cool embrace of historic stone walls. The western façade, with its entry niche, shields the house from village views. A vaulted niche in the northern gable brings light into the bedroom, bathroom, and utility spaces, echoing the curved forms of the nearby Baroque château. The penetration of sunlight into the interior can be regulated throughout the day using white shading panels. A sunlit room can quickly transform into a magical, enclosed space where light and shadow play mesmerisingly. At night, the light reverses direction, and the house, illuminated by its glowing niches, shines into the landscape. The interior is illuminated by minimalist white fixtures, complemented by Japanese washi paper lanterns and the flickering glow of a wood-burning stove.

© BoysPlayNice

© BoysPlayNice
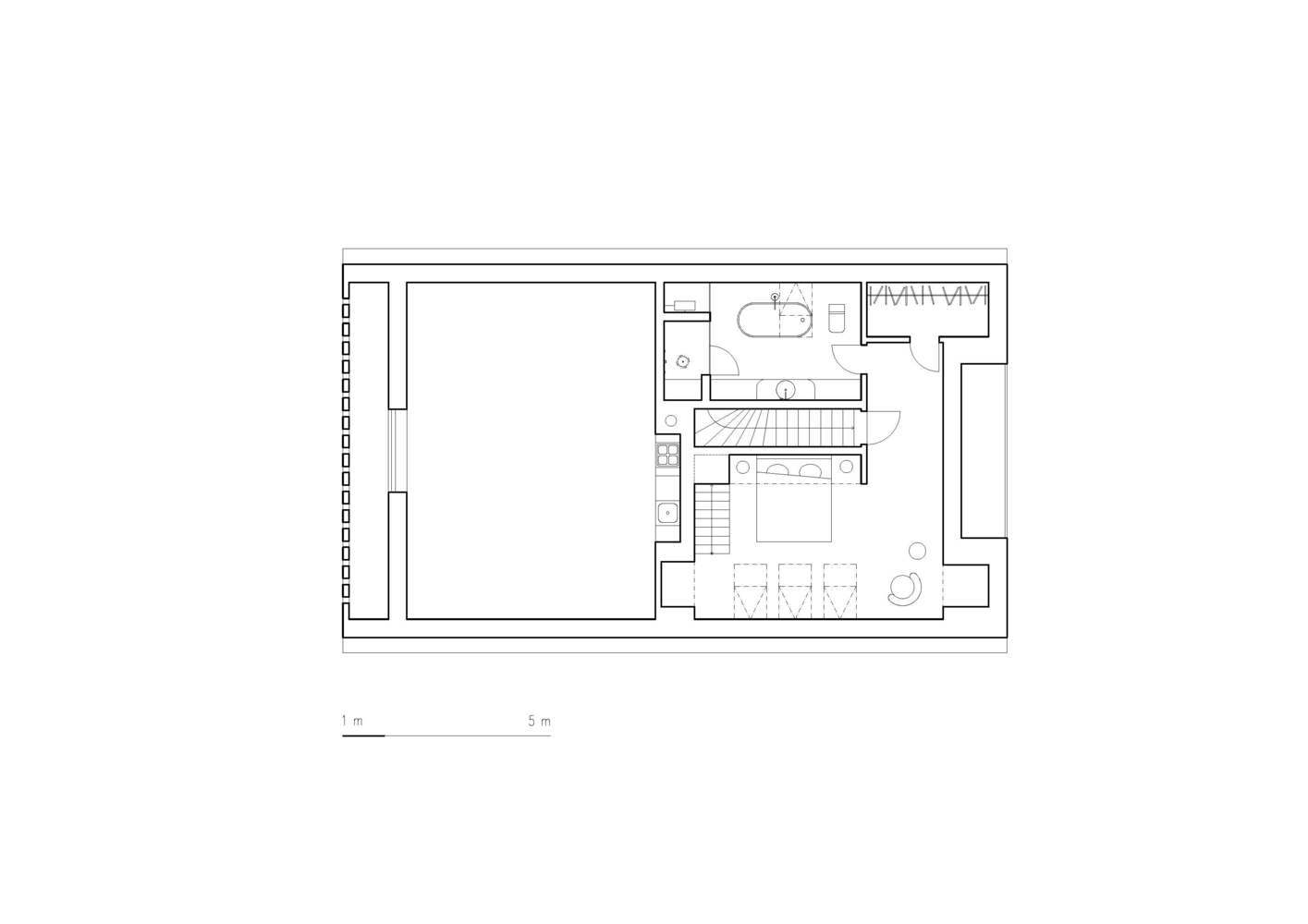
神圣的灵感-在房子传统形态的背后,是一个原始的内部。与白色的外观相比,内部温暖而圆润。主空间的惊喜之处在于,其拱形天花板高达七米,突显了其神圣的灵感。白色灰泥墙和大型铝框窗户进一步突显了空间的空灵特性。另一个对教会建筑的致敬是穿过房子南山墙的两米宽的圆形窗户。内部的焦点是一个弯曲的木制厨房,有一个由印度Shivakashi花岗岩制成的岛,让人联想到教堂的祭坛。这是所有日常仪式的核心。在空间的南部是一个用餐区,有一张橡木桌椅,俯瞰着19世纪圣母玛利亚的木雕。对面是一个休闲区,配有一张长沙发,可以欣赏到风景和庭院及其谷仓废墟。沙发的框架是一幅用未染色的羊毛制成的挂毯。除了主起居区外,一楼还包括浴室、卫生间、杂物间和一间卧室。在整个家里,建筑师设计的定制木制和石制家具创造了一种有凝聚力的美学。这包括实木床和衣柜、走廊上的黑色花岗岩长凳和配套的床头柜。上层被设想为一个独立的公寓,有卧室、浴室和工作室空间。与一楼保持与外界的开放连接不同,阁楼是一个封闭的茧状空间,是反思、阅读和创作的理想场所。小屋顶窗户照亮了白色紧凑的洞穴,洞穴里布满了壁龛和拱门。
Sacred Inspiration - Behind the house's traditional morphology lies an original interior. In contrast to the white exterior, the inside is warm and rounded. The main space surprise with a generously vaulted ceiling that rises to a height of seven meters, emphasising its sacred inspiration. White stucco walls and large aluminium-framed windows further highlight the ethereal character of the space. Another nod to ecclesiastical architecture is the two-meter-wide circular window piercing the southern gable of the house. The focal point of the interior is a curved wooden kitchen with an island made from Indian Shivakashi granite, reminiscent of a church altar. This is the centrepiece of all daily rituals. In the southern part of the space is a dining area with an oak table and chairs, overlooked by a 19th-century wooden carving of the Madonna. Across from this is a relaxation area featuring a long sofa offering views both of the landscape and the courtyard with its barn ruins. The sofa is framed by a tapestry made from undyed sheep's wool. In addition to the main living area, the ground floor includes a bathroom, toilet, utility room, and one of the bedrooms. Throughout the home, custom-made wooden and stone furniture designed by the architect creates a cohesive aesthetic. This includes solid wood beds and wardrobes, a black granite bench in the hallway, and matching bedside tables. The upper floor is conceived as a separate apartment with a bedroom, bathroom, and studio space. Unlike the ground floor, which maintains an open connection to the outside world, the attic is a closed, cocoon-like space ideal for reflection, reading, and creation. Small roof windows illuminate the white, compact cavern permeated by niches and arches.

© BoysPlayNice

Attic Floor Plan

© BoysPlayNice

© BoysPlayNice
每个细节的艺术-艺术在家庭生活中起着重要作用,其收藏涵盖了从捷克现代主义到当代作品。这种对艺术的热爱在他们的家中无处不在。卧室里有一幅19世纪的日本画板,旁边还有安东尼·斯坦诺娃的大幅当代画作和米哈尔·贾尼加的雕塑作品。Vanda Hvízdalová的石雕陈列在阁楼的洞石基座上。这个家族的策展方式反映在房子的每一个细节中。游客在入口大厅受到来自加蓬的木制仪式面具的欢迎,而主要的生活区则有一个由一块木头和马丁·哈努什的原始陶瓷雕刻而成的非洲凳子。卧室和阁楼由野口勇设计的雕塑Akari灯照亮。大量的艺术书籍收藏是家庭氛围中不可或缺的一部分。
Art in Every Detail - Art plays a significant role in the family's life, whose collection spans from Czech Modernism to contemporary works. This love of art is omnipresent in their home. The bedroom features a 19th-century panneau japonais, alongside a large-format contemporary painting by Antonie Stanová and sculptural pieces by Michal Janiga. Stone sculptures by Vanda Hvízdalová are displayed on travertine pedestals in the attic. The family's curatorial approach is reflected in every detail of the house. Visitors are greeted in the entry hall by a wooden ceremonial mask from Gabon, while the main living area features an African stool carved from a single piece of wood and original ceramics by Martin Hanuš. The bedrooms and attic are illuminated by sculptural Akari lamps designed by Isamu Noguchi. A large collection of art books is an integral part of the home's ambiance.

© BoysPlayNice
一个活生生的Gesamtkunstwerk-奥斯卡之家以国际作曲家奥斯卡·内德巴尔的名字命名,他在邻近的城堡创作了他的轻歌剧《波兰血统》,这是一个业主想与他人分享的空间。这个独特的Gesamtkunstwerk向公众开放,无论是通过传统租赁还是作为艺术家驻留、弹出式活动和研讨会的场所。业主期待着在房子周围培养一个充满活力的创意和鼓舞人心的社区。
A Living Gesamtkunstwerk -The House Oskar, named after cosmopolitan composer Oskar Nedbal, who composed his operetta Polish Blood at the neighboring château, is a space the owners want to share with others. This unique Gesamtkunstwerk is open to the public, whether through traditional rentals or as a venue for artist residencies, pop-up events, and workshops. The owners look forward to fostering a vibrant community of creative and inspiring individuals around the house.