平野/藤原町建筑师事务所的房子
House in Hirano / FujiwaraMuro Architects
场地与策略的巧妙结合:这个项目最令人印象深刻的是它对场地限制的巧妙应对。在大阪市的住宅区,四周建筑环绕,景观视野受限,设计师选择了“仰望天空”的策略,通过天窗引入光线,成为设计的核心。更令人惊叹的是,设计师巧妙利用了旗杆地块的特殊性,3米宽的杆段被大胆利用,成为了建筑的一部分。这种对狭小空间的高效利用,不仅满足了客户五口之家的居住需求,更赋予了住宅独特的个性。设计方案充分考虑了空间的功能性和趣味性,将场地劣势转化为设计优势,体现了设计师卓越的空间把握能力和创新思维。
室内空间的动态探索:项目另一个亮点在于室内空间的组织。设计师打破了传统房屋的单一楼层概念,创造了不同标高的楼层,营造出“自然地形逐步堆叠”的视觉效果。这种设计赋予了室内空间丰富的层次感和动态感,使居住者仿佛置身于户外自然之中,带来了开放和自由的感受。通过改变室内空间的高度、角度,模糊了室内外的界限,创造了意想不到的住宿地点,增加了居住的乐趣。这种设计手法不仅仅是空间的重塑,更是对居住体验的深刻理解和创新,激发了居住者对生活空间更多的探索和思考。
对客户需求的深度理解与实现:该项目成功地将客户的需求转化为具体的空间表达。在满足基本居住功能的基础上,设计师通过与客户的深入沟通,将客户对刺激性和独特性的需求融入设计中。地形般的空间配置不仅在视觉上令人印象深刻,更提供了多样化的活动区域,满足了家庭成员的不同需求。设计师并没有拘泥于传统的设计模式,而是积极探索,将客户的需求、场地的限制以及建筑师的设计理念完美结合,最终呈现出一个既实用又充满趣味的居住空间。这种以人为本的设计理念,是项目成功的关键,也是建筑设计中值得借鉴的宝贵经验。

© Toshiyuki Yano

© Toshiyuki Yano
建筑师提供的文字描述。该地点位于大阪市的一个住宅区。客户购买了一块土地 被细分为现成房屋的地块,项目开始了。所购地块为旗杆地块。然而,考虑到我们可以使用长达3米宽的杆段,我们有一些操作空间。
Text description provided by the architects. The site is in a residential area in Osaka City. The client purchased a plot of land subdivided into lots for ready-built houses, and the project began. The plot purchased was a flagpole lot. However, given that we could use up to 3 meters of the width of the pole section, we had some room to manipulate.

© Toshiyuki Yano

© Toshiyuki Yano
利用3米宽的杆部分,我们寻求一个方案,让房子的一部分侵占杆部分。客户的五口之家要求一栋足够紧凑但有足够空间容纳私人房间的房子,既能满足基本的居住需求,又具有刺激性和独特性。
Taking advantage of the 3-meter-wide pole portion, we sought a plan where a part of the house would encroach on the pole section. The client's family of five requested a house that was compact enough but with enough space for private rooms and that served the basic residential needs, but was also stimulating and unique.

© Toshiyuki Yano

© Toshiyuki Yano
该场地四面都是建筑物,从外墙的窗户很难看到任何景色。然而,抬头一看,可以看到天空。因此,我们首先创建了一个天窗,然后构思了一个以天窗的光线为中心的构图。
The site is surrounded by buildings on all four sides, making it difficult to have any view from the windows in the exterior walls. However, looking up, one can see the sky. Therefore, we first created a skylight and then conceived a composition centered around the light from that skylight.

© Toshiyuki Yano

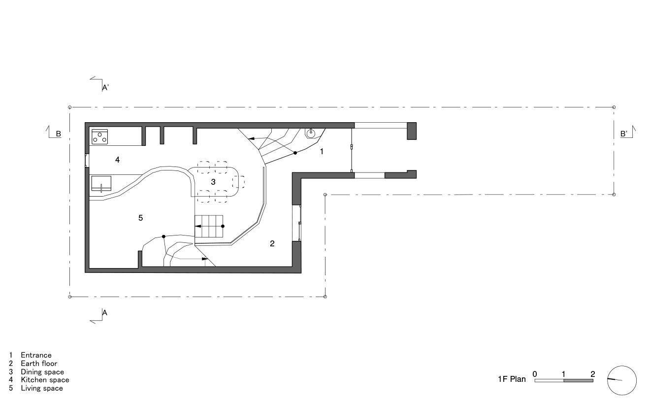
1F Floor Plan

© Toshiyuki Yano
我们设想这个计划是一个自然地形的逐步堆叠,给人一种在房子里的感觉。我们认为这种户外的感觉会提供一种开放和自由的感觉。为了打破传统房屋的感觉,我们首先设置了不同的楼层,并创建了各种住宿地点,让你感觉像坐在自然地形之上。
We envisioned the plan as a gradual stacking of natural terrain, which gives a feeling of being outside inside the house. We thought that this outdoor feeling would provide a sense of openness and freedom. To disrupt the feeling of a conventional house, we first set different floor levels and created various places to stay where you feel like sitting on top of a natural terrain.

© Toshiyuki Yano

© Toshiyuki Yano

2F Floor Plan

Section

© Toshiyuki Yano
通过与客户的一系列讨论,我们将地形般的不规则配置转化为图纸,最终将其变为现实。我们希望这个空间创造过程将为这个家庭提供从现在开始寻找意想不到的住宿地点的乐趣。
Through a series of discussions with the client, we converted the topography-like irregular configuration into drawings, eventually materializing it into reality. We hope that this space-making process will provide the family with the pleasure of finding unexpected places to stay from now on.

© Toshiyuki Yano