Rakuragu酒店/kooo建筑师
Hotel Rakuragu / kooo architects
空间缝隙的巧妙利用:Hotel Rakuragu 项目最令人印象深刻的在于其对东京市中心狭小地块的巧妙应对。建筑师充分利用了城市结构的“缝隙”,设计了九层楼高的酒店。项目并非简单地堆叠空间,而是通过有策略地设置阳台,创造了面向城市不同方向的景观视野。这种设计策略打破了传统酒店为了最大化房间面积而牺牲阳台的常规做法,为住客提供了独特的城市体验。这种对城市环境的敏感回应,以及对有限空间的创造性利用,体现了建筑师对场地特性的深刻理解和对设计创新的不懈追求。
阳台设计的精髓与建筑立面的韵律:酒店阳台设计的亮点在于其多样性和对不同房间类型的对应。每间客房都拥有独特的阳台设计,不仅为住客提供了不同的视野,更赋予了建筑立面丰富的节奏感。建筑师通过调整X4-X5轴的单跨结构,实现了三种不同的阳台风格。这种设计手法在功能需求和建筑表现之间取得了完美的平衡。建筑立面因此呈现出一种雕刻感,仿佛一个白色的长方体被不规则地镂空,形成了引人注目的视觉效果。这种对阳台的巧妙运用,不仅提升了酒店的居住体验,也塑造了独特的建筑形象,使其从周围的建筑环境中脱颖而出。
被动式设计与内部空间的舒适度:除了外部形态的创新,Hotel Rakuragu 在内部空间的舒适度上也下足了功夫。建筑师在设计中融入了被动式设计原则,例如通过Low-E玻璃实现自然通风和采光,从而平衡了开放性和热舒适性。室内空间的设计也极具匠心,弯曲的墙壁和硅藻土壁纸的使用,营造出柔和、漫射的光线环境,提高了视觉和心理舒适度。浴室的巧妙布局,以及洗脸盆的重新安置,都体现了建筑师对空间利用的精细考量。这种对细节的关注,以及对住客体验的重视,使得 Hotel Rakuragu 不仅是一座建筑,更是一个舒适宜人的居住场所。

© Horikoshi Keishin

© Horikoshi Keishin
建筑师提供的文字描述。在东京市中心一块84平方米的有限地块上,kooo Architects专注于城市结构中的“缝隙”,设计了Hotel Rakuragu——一座9层楼高的酒店,尽管场地紧凑,但视野开阔。露台:该地区周围环绕着东京市中心典型的混合用途建筑,缺乏风景或相邻结构在高度、宽度或材料上的统一设计规定。与典型的东京酒店不同,这些酒店为了最大限度地利用房间空间而省略了阳台,kooo Architects观察了周围的建筑,并将每层楼的开口朝向城市的缝隙,创造了不同方向的阳台。每间客房都设有独特的阳台设计,让客人可以从不同楼层欣赏到不同的景色。这种方法使建筑看起来像一个雕刻着不规则空隙的白色长方体,形成了一个有节奏的立面。
Text description provided by the architects. On a limited 84-square-meter plot in Tokyo's central district, kooo Architects focused on the "gaps" within the urban fabric to design Hotel Rakuragu — a 9-story hotel with open views despite its compact site. Terrace: The area is surrounded by typical mixed-use buildings in downtown Tokyo, lacking scenic vistas or uniform design regulations for neighboring structures in height, width, or materials. Unlike typical Tokyo hotels that omit balconies to maximize room space, kooo Architects observed the surrounding buildings and oriented each floor's openings toward urban gaps, creating balconies in varying directions. Each room features a unique balcony design, allowing guests to experience diverse views from different floors. This approach resulted in a building that appears as a white cuboid carved with irregular voids, forming a rhythmic façade.

© Horikoshi Keishin

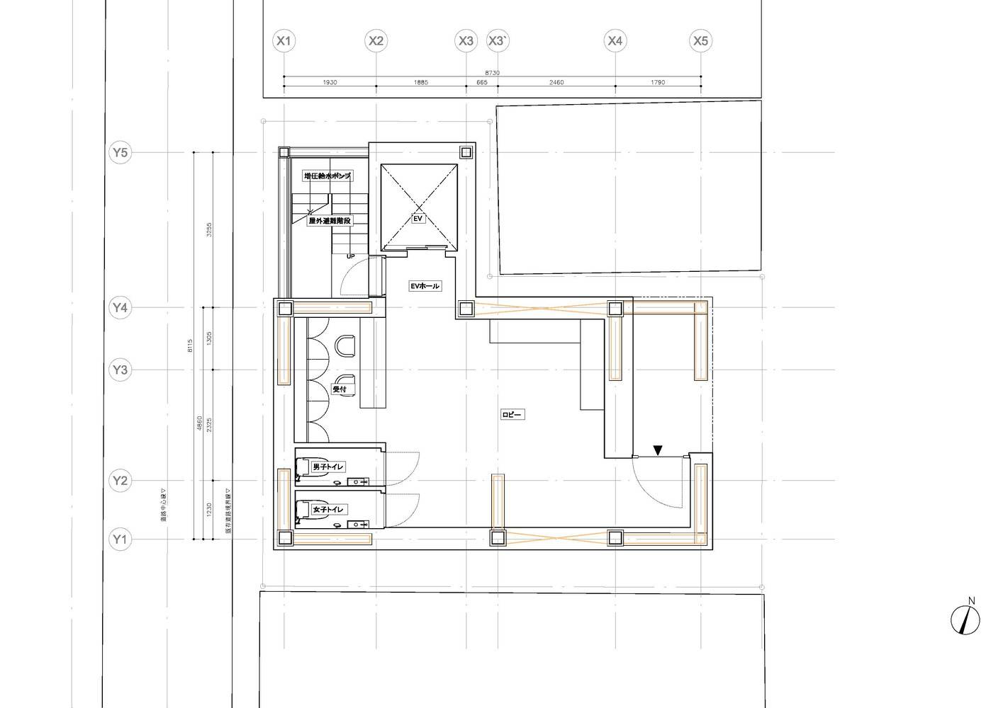
Plan - First floor

© Horikoshi Keishin
平面网格(X1-X4)垂直连接,以优化成本效益。通过修改X4-X5轴的单跨结构,实现了三种不同的阳台风格,平衡了功能需求和建筑表达。露台融合了被动式设计原则,通过Low-E玻璃实现自然通风和采光。这平衡了开放性与热舒适性,缓解了夏季炎热,提高了冬季供暖效率,这是新冠肺炎大流行设计阶段的关键考虑因素。结构:该建筑的标志性形式使用带斜撑的钢刚架结构,而不是传统的柱和梁系统。这允许灵活的柱子放置,并最大限度地减少阳台上的视觉障碍。立面设计富有节奏感,每层楼的左右两侧都有阳台。有些阳台是三角形的,而另一些则横跨整个海湾。为了实现这一设计,我们使用了带斜撑的刚架结构,而不是传统的柱和梁结构。这种方法使我们能够更灵活地排列柱子,创造出所需的空间。
The plan grid (X1-X4) was vertically connected to optimize cost efficiency. By modifying the single-span structure at the X4-X5 axis, three distinct balcony styles were achieved, balancing functional needs with architectural expression. The terrace integrates passive design principles, enabling natural ventilation and light through Low-E glass. This balances openness with thermal comfort, mitigating summer heat and improving winter heating efficiency—a critical consideration during the COVID-19 pandemic design phase. Structure: The building's iconic form uses a steel rigid-frame structure with diagonal braces instead of conventional column-and-beam systems. This allows flexible column placement and minimizes visual obstructions on balconies. The facade has a rhythmic design, with balconies on both the left and right sides of each floor. Some balconies are triangular, while others span the entire bay. To achieve this design, we used a rigid frame structure with diagonal braces instead of the traditional column-and-beam structure. This approach allowed us to arrange the columns more flexibly, creating the desired space.

© Horikoshi Keishin

© Horikoshi Keishin

Diagram

© Horikoshi Keishin
标志性的特色是一个可以欣赏到城市景色的阳台。该建筑还为客人提供了东京的独特视角,这是其他城市酒店通常无法提供的。柱和梁结构紧凑(梁深:300毫米;柱直径:150-200毫米),隐藏在墙内,以最大限度地利用自然光。客房的弧形墙壁将室内和室外空间融为一体,增强了空间的连续性。内部:无缝空间与弯曲的墙壁和硅藻土壁纸营造出柔和、漫射的光线环境。壁纸的微孔纹理和墙壁曲率增强了视觉和心理舒适度。浴室战略性地放置在远离开口的地方,以确保隐私(在中央区办公室密集的地区至关重要)。洗脸盆被重新安置在浴室外,在保持功能的同时减少了空间限制。Kooo Architects没有追求引人注目的美学,而是专注于“露台”概念来塑造酒店的形象。阳台设计的变化直接对应于房间类型,实现了平衡的混合。该项目体现了日本将空间限制转化为价值的独创性,提供了一种真实反映东京城市密度的住宿体验。
The signature feature is a balcony that offers a view of the city. The structure also provides guests with unique perspectives of Tokyo, which are not typically available in other city hotels. Columns and beams are compact (beam depth: 300 mm; column diameter: 150–200 mm), hidden within walls to maximize natural light penetration. Curved walls in guest rooms blend indoor and outdoor spaces, enhancing spatial continuity. Interior: Seamless spaces with curved walls and diatomaceous earth wallpaper create a soft, diffused light environment. The microporous texture of the wallpaper and wall curvature enhance both visual and psychological comfort. Bathrooms are strategically placed away from openings to ensure privacy (critical in Chuo Ward's office-dense area). The washbasin is relocated outside the bathroom, reducing spatial confinement while maintaining functionality. Rather than pursuing overtly striking aesthetics, Kooo Architects focused on the " Terrace " concept to shape the hotel's identity. Variations in balcony designs directly correspond to room types, achieving a balanced mix. This project exemplifies Japan's ingenuity in transforming spatial constraints into value, offering a stay experience that authentically reflects Tokyo's urban density.

© Horikoshi Keishin