CIMI餐厅/Jo Nagasaka+Schemata建筑师事务所
CIMI Restaurant / Jo Nagasaka + Schemata Architects
空间设计的巧妙与温馨:CIMI餐厅的设计展现了对空间利用的深刻理解和对细节的极致追求。 项目坐落于代代木一个僻静的住宅区,设计师充分利用了原有的场地特征,打造了一个低调而温馨的用餐环境。通过对红雪松原木的巧妙运用,设计出独特的长桌,不仅提供了充足的就餐空间,更促进了人与人之间的互动和交流。这种设计理念打破了传统餐厅的隔阂,营造出一种亲密、友好的氛围。餐厅的整体氛围舒适而放松,吸引人们在此驻足,享受美食,并与他人分享生活。这种设计手法体现了设计师对“共享”和“连接”的深刻思考。
材料选择与可持续理念:CIMI餐厅在材料选择上体现了对可持续发展的关注和对资源的尊重。 红雪松原木的选择并非偶然,它来自于两棵扭曲的树合并而成,经过设计师的巧妙处理,赋予了材料新的生命。 这种对非标准材料的再利用,不仅节约了资源,更赋予了餐厅独特的个性和故事。此外,餐厅的经营理念也与可持续发展紧密相连,菜单上不仅有素食选择,还融入了有助于解决日本环境问题的食材,如鹿肉和牡蛎。 这体现了设计师和经营者对环保理念的实践,以及对人类与地球健康关系的思考。这种设计理念与当代社会的可持续发展主题相呼应。
社交属性的强化与创新:CIMI餐厅的核心在于它对社交属性的强调。设计师通过独特的长桌设计,创造了一个鼓励互动和交流的场所。 这种设计打破了传统餐厅的孤立感,鼓励人们在用餐过程中与他人分享感受、交流思想。 长桌的边缘设计成凹凸不平的形状,方便人们形成小群体,促进了自发的对话。这种设计不仅体现在空间布局上,也体现在餐厅的整体氛围中,餐厅旨在将不同背景和想法的人聚集在一起。这种设计理念反映了设计师对社会性需求的关注和对创新社交方式的探索。CIMI餐厅不仅仅是一个用餐场所,更是一个促进人际交流、激发灵感的社交平台。

© Tetsuya Ito

© Tetsuya Ito
建筑师提供的文字描述代代木一个僻静的住宅区开了一家低调的餐厅。它位于我们之前设计的一家小咖啡馆和杂货店“FarmMart&;Friends”的所在地。在这个空间的一个新租的角落里,一个小而特别的地方诞生了,陌生人可以并排坐在那里吃饭。
Text description provided by the architects. A low-key restaurant has opened in a secluded residential area in Yoyogi. It is located where a small cafe and grocery store, "FarmMart & Friends," that we previously designed had been. In a newly rented corner of the space, a small, special place where strangers could sit side by side and enjoy a meal was born.

© Tetsuya Ito

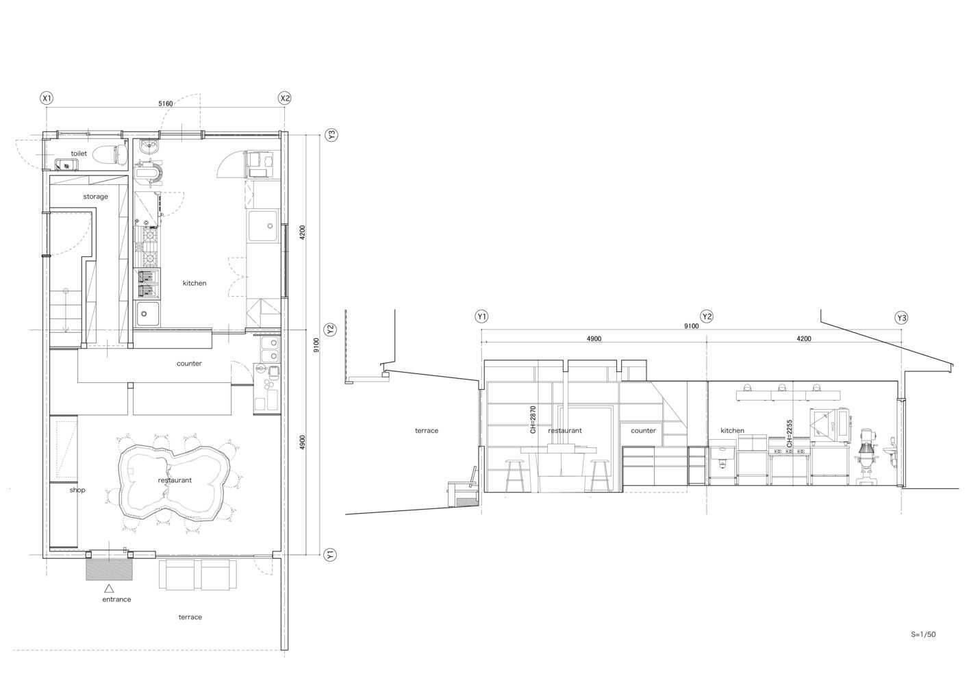
Plan and Section

© Tetsuya Ito
这个名字是“CIMI restorant”。“CIMI(或Jimi)”在日语中意味着土地的质量和生产力。该餐厅项目旨在思考和分享有助于人类和地球健康的食物。除了纯素菜单,食客还可以选择以鹿肉和牡蛎等食材为特色的菜肴,这些食材有助于解决日本的环境问题。目的是创造一个不同饮食方式的人可以聚在一起共享一顿饭的地方。这家餐厅旨在将不同背景和想法的人聚集在一起,让他们进行自发的对话。
The name is "CIMI restorant." "Cimi (or Jimi)" implies the quality and productivity of the land in Japanese. The restaurant project aims to think about and share food that will contribute to people's and the earth's health. In addition to the vegan menu, diners can choose from courses featuring ingredients such as venison and oysters that contribute to solving environmental issues in Japan. The aim is to create a place where people with different eating styles can come together and share a meal. The restaurant is designed to bring people with different backgrounds and ideas together and allow them to engage in spontaneous conversation.

© Tetsuya Ito

© Tetsuya Ito
人们并排坐着的桌子是由一根红雪松原木制成的,这根原木最初是从两棵扭曲的树上砍下来的,后来合并成了一棵。它被切成薄片,三根树桩被用作腿,五块较薄的原木被用作桌面,在下面提供了腿的空间。此外,边缘形成了四个圆形的凹凸形状,凸起的形状很容易松散地形成群体。起初,人们会独处,但不久之后,他们开始听到旁边人的声音,发现自己在谈论共同的话题,与他人分享同一个空间。用餐结束时,会形成一大群人,每个人都会聊天。
The table where people sit side by side is made of a red cedar log originally cut from two twisted trees merged into one. It was sliced up, and the three stumps were used as legs, with five thinner slabs of log used as the tabletop, providing leg room underneath it. In addition, four round concave and convex shapes form on the edges, and the convex shapes make it easy to loosely form groups. At first, people would keep to themselves, but before long, they start to hear the voices of the people next to them and find themselves chatting over common topics and sharing the same space with others. At the end of the meal, a big circle of people would form, and everyone would chat away.

© Tetsuya Ito

© Tetsuya Ito
首先,这种红雪松不是一个人能很快得到的。因为它不符合标准,它一直在新吉巴休眠。然而,在互联网时代,即使是这些非标准材料也可以进行一对一的销售,现在也开始出现了。抓住这个机会,当时CIMI的企业主Monosus与Takahiro lumber合作组织了“木材堆场”项目,出售死库存木材,并正在寻找买家。随着这家餐厅项目的启动,供应商和买家之间进行了适当的匹配,从而创建了一家人们围坐在一张大桌子旁的餐厅。
To begin with, this red cedar was not something one could quickly obtain. Because it was not up to the standards, it had been lying dormant in Shinkiba. In the Internet age, however, even these non-standard materials have become available for one-to-one sales and now see the light of day. Seizing this opportunity, Monosus, the business owner of CIMI at the time, organized the "WOOD STOCK YARD" project to sell dead-stock lumber in collaboration with Takahiro Lumber and was looking for buyers. With the launch of this restaurant project, a proper match was made between the supplier and the buyer, leading to the creation of a restaurant where people gather around a large table.

© Tetsuya Ito