信达南小学/WHDA
Syndal South Primary School / WHDA
情境化设计与社区融合:Syndal South小学项目的精髓在于其对周边环境的敏锐回应和对社区开放的姿态。建筑师巧妙地将“前廊”和“阳台”等熟悉的住宅元素融入设计中,使新建筑与郊区环境和谐共生。图书馆作为“客厅”的设计理念,在课余时间向社区开放,体现了学校对社区的积极融入和开放姿态。同时,建筑的体量控制得当,单屋顶的设计避免了对现有操场的遮挡,展现了对原有环境的尊重和对学生活动的关注。这种设计理念不仅体现了实用性,更强调了建筑与环境、社区之间的互动。
空间组织与功能融合:该项目在空间组织上展现了卓越的规划能力。建筑内部采用风车式布局,强调寻路性,确保访客能够直观地找到接待处、图书馆等重要区域。教室设计兼顾开放性和传统教学模式,灵活适应不同的教学需求。公共空间的设计也极具特色,Commons被打造为初级学习区的“街道”,为集体活动和小组协作提供了理想场所。教室入口被设计成“门廊”,为学生提供了存放物品、专注阅读的空间,同时也展示了学生作品,营造了温馨的学习氛围,这种功能与空间的融合体现了建筑师对教育场景的深刻理解。
材料与细节:虽然没有详尽的材料信息,但从图片中可以看出,该项目注重细节处理和对光的运用。室内空间光线充足,营造了舒适的学习环境。开放式的设计和灵活的教室布局,支持了多元的教学模式,鼓励互动和协作。户外学习区的设置,如配备游乐设备和泥厨房,更是将学习延伸至户外,激发了学生的探索欲和创造力。总体而言,该项目在建筑设计中融入了对教育的深刻理解,兼顾了功能性、美观性和社区互动,体现了建筑师对细节的关注和对教育的积极探索。

© Anthony Richardson

© Anthony Richardson
建筑师提供的文字描述Syndal South小学是库林民族Woi Wurrung Wurundjeri人土地上绿树成荫的韦弗利山城区的教育中心,Syndal小学的新A座建筑用新的行政办公室、初级教室和公共图书馆取代了老旧的石棉LTC建筑。设计方案旨在通过将熟悉的前廊和阳台的国内原型融入流通空间和门槛,使拟建的A区在郊区环境中具有情境化。大部分空间被整合在一个单一的屋顶下,该屋顶向北和向南倾斜,以尊重附近的街道,并避免遮蔽现有的硬地游乐区。
Text description provided by the architects. Syndal South Primary School is an educational hub in the leafy urban area of Mount Waverley on the lands of the Woi Wurrung Wurundjeri people of the Kulin Nation, the new Block A building of Syndal Primary School replaces an aging asbestos laden LTC building with new Administrative offices, Junior Classrooms, and a publicly accessible Library. The design proposal aims to contextualise the proposed Block A in its suburban setting by incorporating familiar domestic archetypes of the front porch and the verandah into circulation spaces and thresholds. The majority of the spaces are consolidated under a single roof which pitches north and south in deference to the neighbourhood street and to avoid overshadowing existing hardcourt play areas.

© Anthony Richardson

© Anthony Richardson

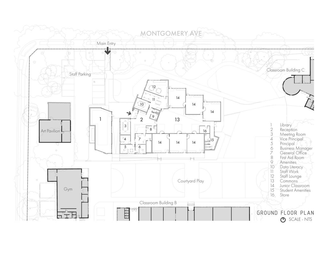
Ground Floor Plan

© Anthony Richardson
该建筑跨越了家庭和城市的尺度,将家庭和社区的基石重新诠释为教育类型,这样面向公众的区域就可以慷慨地用于社交聚会,而学习和工作区域则是多孔的,可以紧密地扩展以集中注意力。学校资助的图书馆馆位于入口前院,作为当地的“客厅”迎接游客,在上课时间作为一个安静的阅读空间,在放学后作为一个开放的社区中心,具有灵活性,双正面可欣赏到学校入口和内部体育庭院的景色。
The building straddles domestic and civic scales and re-interprets cornerstones from the home and the neighbourhood into an education typology, such that public facing areas are scaled generously for social gathering, while learning and working areas are porous and scaled intimately for focus. Bookending the entry forecourt, the school-funded Library pavilion greets visitors as a local 'Living Room' and is flexible for both its roles as a quiet reading space during school hours and an open community hub after, with dual frontage providing views towards the school entry and internally across the sports courtyard.

© Anthony Richardson

© Anthony Richardson
进入学校是以风车配置组织的,优先考虑的是寻路。新的家庭和游客需要能够在入口处直观地导航——接待处、图书馆、中央运动庭院、会议室。视图是精心编排的;图书馆通过大道与行政区和接待处相连,通往公共场所的天窗将人们的视线引向蒙哥马利大道旁的成熟树木。
Entry to the school is organised in a pinwheel configuration, with wayfinding as a priority. New families and visitors needed to be able to navigate intuitively at the entry point - to reception, to the library, to the central sports courtyard, to the meeting rooms. Views are choreographed; the Library is connected to the administrative areas and reception through the thoroughfare, and the clerestory window to the commons draws the eye up to the mature ring of trees bordering Montgomery Avenue.

© Anthony Richardson
初级教室被设想为开放式和传统定向课堂教学的混合模式,专用教学空间与公共空间相连,可直接进入户外学习和玩耍。这些户外学习区配备了游乐设备和泥厨房,是教室的延伸,也是年轻和年长学生之间的非正式“领地”,由学校安装的一个新的庭院圈调解。教室具有适应性,允许多种配置,以支持一系列教学模式、独立学习或小组讨论,交互式电视补充了艺术、数学游戏和识字技能的物理媒体。
The junior classrooms are conceived as a mixed model between open-plan and traditional directional classroom teaching, with dedicated teaching spaces connected to the commons and direct access to outdoor learning and play. These outdoor learning areas featuring play equipment and mud kitchens serve as an extension of the classroom and informal 'territory' between younger and older students, mediated by a new yarning circle installed by the school. The classrooms are adaptive to allow for a multitude of configurations to support a range of teaching modes, independent study, or group discussion, with interactive TVs supplementing physical media for art, math games, and literacy skills.

© Anthony Richardson

© Anthony Richardson
Commons是新建筑的核心,被视为初级学习基地的集体“街道”,足够大,可以在恶劣天气下举行集会,并允许小组协作。每个教室的入口门都被视为一个前“门廊”,有放袋子的橱柜、专注阅读的角落座位和展示学生作品的钉板。
The Commons is the heart of the new building and is treated as the collective 'street' of the junior learning base, large enough for assemblies to take place in bad weather and shaped to allow small group collaboration. The entry doors to each classroom are treated as a front 'porch' with cupboards for bags, nook seating for focused reading, and pinboards to showcase student work.

© Anthony Richardson