葡萄牙能源公司总部/EMENTAL
Energia de Portugal Headquarters / ELEMENTAL
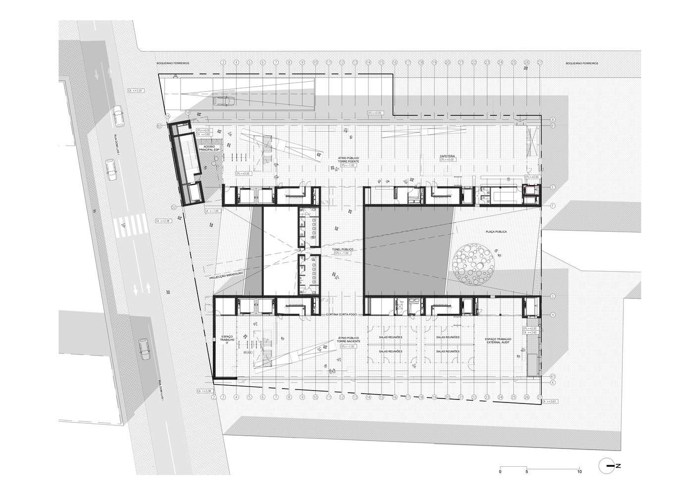
空间与功能的巧妙融合:该项目最引人注目的亮点在于其对场地限制和城市肌理的回应。建筑师巧妙地利用了场地高差,塑造了一个倾斜的公共广场,不仅解决了场地与河流之间的视觉阻隔问题,更创造了连续的公共空间。这种设计策略打破了传统建筑与城市之间的界限,将建筑体量与周围环境有机地结合起来。同时,通过将入口设置在广场的南侧,避免了将建筑过度商业化,保证了公共空间的开放性和可达性,体现了对公众的尊重和对城市环境的积极贡献。这种对空间和功能的精妙平衡是该项目成功的关键。
可持续性与建筑语言的统一:项目在可持续性方面展现了深度思考。建筑师将高效节能的建筑运营与建筑性格的塑造相结合,体现了对可持续发展理念的深刻理解。公共广场作为“雕刻的巨石”来确保热质量,外立面采用深线性元素网格,既表达了建筑的尺度感,又兼顾了遮阳功能,避免了阳光直射。此外,内部通过“邀请式楼梯”的设计,鼓励人们使用楼梯而非电梯,从而节约能源。这种对可持续性的实践不仅体现在技术层面,更融入了建筑语言之中,使可持续性成为建筑的重要组成部分。
以人为本的设计理念:该项目将“人本功能主义”理念贯穿始终。建筑师关注员工的工作环境,将工作场所视为可以提高生活质量的空间。通过提供不同类型的工作模式和休闲空间,如会议室、休息室、健身房和咖啡馆等,满足了不同员工的需求,促进了协作与交流。这种设计不仅关注功能性,更注重人的体验和感受,体现了对员工的关怀。这种以人为本的设计理念,将工作场所打造成为一个充满活力、舒适宜人的环境,是该项目最宝贵的精髓之一。

© Francisco Nogueira

© Francisco Nogueira
建筑师提供的文字描述这个项目必须解决一种悖论,两种力量朝着相反的方向拉动:一方面,它必须符合总体规划,该规划要求公共空间从山到河(南北方向)的连续性,从而将建筑的体量分成两个线性体积。另一方面,该建筑必须作为一个单一的实体运作;因此,这两个线性体量必须在东西方向上连接,威胁到公共空间的南北连续性。因此,为了同时应对这两种力,我们将公共空间的地面折叠成一个符合山河连续性的轻微坡度,然后在折叠地面的最高点下连接两个线性体积。
Text description provided by the architects. This project had to solve a kind of paradox, two forces pulling in opposite directions: on the one hand, it had to comply with a Masterplan that required continuity of the public space from the hills to the river (north-south direction) resulting in a splitting of the building's mass into two linear volumes. On the other hand, the building had to function as one single entity; so the 2 linear volumes had to be connected in the east-west direction threatening the north-south continuity of the public space. So, to respond to both forces simultaneously, we folded the ground of the public space with a slight slope that complied with the hill-river continuity and then connected the two linear volumes under the highest point of the folded ground.

© Francisco Nogueira

© Francisco Nogueira
这个人工斜坡为解决地块的另一个问题提供了机会:由于位于里斯本城市网格的第二排,朝向河流的视觉连续性更多的是理论上的,而不是现实中的。街对面的EDP大楼,尽管作为一个整体,符合南北连续性,但在行人层面,阻挡了人们对河流的任何感知。我们把一块石头放在斜坡上,悬挑向河边,获得了足够的高度,可以靠在相邻的建筑上,从而清晰地看到塔霍河。因此,综合体核心的广场是完全公共的。
This artificial sloping ground offered the opportunity to solve another issue of the lot: being on the second row of Lisbon's urban grid, the visual continuity towards the river was more theoretical than real. The building of EDP across the street, even though as a general mass complied with the north-south continuity, at the pedestrian level blocked any perception of the river. We laid a piece that rested on the slope, cantilevered towards the river, gaining enough height to lean over the adjacent building, achieving a clear view of the Tajo. So, the square at the core of the complex is exclusively public.

© Francisco Nogueira
这是一个深思熟虑的决定,不将大楼的入口放在这个广场上,这样公民就不会觉得公司“在帮助他或她”使用优质空间。广场上的人必须感觉到他或她有权使用它。因此,进入大楼的通道在南面,参与但不主导广场。我们还将公共停车通道放置在建筑的北端,以便它可以服务于街区的核心。咖啡馆位于地面层,可以用便利设施为公共空间增添活力,也有助于提升社区的公民特征。
It was a deliberate decision not to put the access of the building in this square so that a citizen does not feel that a company "is doing him or her the favor" of using a quality space. A person in the square has to feel that it's his or her right to use it. Consequently, the access to the building is on the south front, participating but not dominating the square. We also placed the public parking access on the north end of the building so that it could serve the core of the block. The position of a Café at the ground level that can animate the public space with an amenity also intends to contribute to the civic character of the neighborhood.

© Francisco Nogueira

© Francisco Nogueira
可持续性和;性格我们希望将高效节能的建筑运营与能够设置正确建筑特征的建筑运营相结合。例如,地块核心的公共广场被视为一块雕刻的巨石,以确保足够的热质量。同时,我们利用质量,通过消除地板的概念,实现了综合体的城市纪念性。相反,在外围立面上,我们希望为工作场所实现一定的家庭化,所以我们不仅表达了每层楼的规模,还选择了一个相当深的线性元素网格,这些元素能够像遮阳板一样使用嵌入式玻璃,以避免阳光直射,从而避免温室效应。
Sustainability & Character. We wanted to integrate the architectural operations that were the case for an efficient energy performance with those able to set the right character of the building. For example, the public square at the core of the lot was treated as if it were a carved monolith to ensure enough thermal mass. At the same time, we took advantage of the mass to achieve a civic monumentality of the complex by erasing the notion of floor. On the peripheral facades instead, we wanted to achieve a certain domesticity for the working place, so we not only expressed the scale of each floor but opted for a rather deep grid of linear elements able to work as brise-soleil with recessed glasses to avoid direct sun radiation and consequently the greenhouse effect.

© Francisco Nogueira
在大楼内,我们实施了另一项行动,将可持续性和个性融为一体。我们开发了一系列“吸引人的楼梯”,这意味着使用起来足够简单的元素,因此避免使用电梯是一种真实的选择,而不是理论上的选择。我们倾向于认为能源是在“某个地方”生产的东西,需要储存或来自可再生能源。但我们自己也有能量。楼梯使用人力。每次我们更喜欢步行而不是乘坐电梯时,我们都在节约能源,设计可以在这个意义上发挥作用。
Inside the building, we implemented another operation to integrate sustainability and character. We developed a series of "inviting stairs", meaning elements that are simple enough to use, so avoiding the use of elevators is a real and not a theoretical alternative. We tend to think that energy is something produced "somewhere" that needs to be saved or come from a renewable source. But we do have energy ourselves. A stair uses human energy. Every time we prefer walking to taking the elevator, we are saving energy and design can play a role in that sense.

© Francisco Nogueira

Plan
人本功能主义。最后,这座建筑的最终目的是为人们提供合适的工作环境。在工作场所,我们大部分时间都在工作,所以如果有一个地方可以提高生活质量(有时甚至比在家里还要高),那就是工作场所。我们建议核实建筑中的4种工作形式。一个复式矩阵,个人和集体使用在一列,正式和非正式使用在一行。
Humanistic Functionalism. Finally, the building's ultimate purpose is to provide the right environment for people to work. At the workspace, we spend most of our day, so if there is a place where quality of life can be improved (sometimes even more than at home), that is the workplace. We proposed to verify the 4 forms of work in the building. A double-entry matrix with individual and collective use in one column and formal and informal uses in one row.

© Francisco Nogueira
换句话说,从办公桌上的个人传统工作到会议室,从休息室到建筑内的休闲空间。我们为所有这些建筑提供了民主通道,距离计划的每个点都不超过1层。屋顶上的健身房和一楼的咖啡馆旨在为未来的办公室实施这种更人性化(而不仅仅是功能性)的理念。
In other words, from the individual conventional work in a desk to the meeting rooms, from lounges to leisure spaces within the building. We placed all of them with democratic access, not more than 1 floor away from every point of the plan. The inclusion of a gym on the rooftop and a Café on the ground floor is aimed at implementing this more humanistic (and not merely functional) notion for the office of the future.

© Francisco Nogueira