396号住宅/建筑范式
House # 396 / Architecture Paradigm
光影与材质的和谐统一: 这座住宅最引人注目的特点在于对光线的巧妙运用和对材料的精湛把控。建筑师充分利用场地特征,通过精心设计的开口,使光线以多种形式进入室内,创造出丰富的光影效果,营造出沉思与生动的空间氛围。例如,南侧的树木投射到室内的阴影,与室内材料的质感相互映衬,构成独特的“明暗对比”效果。此外,设计师对混凝土、木材、黑色花岗岩等天然材料的运用,也体现了对材料质感和色彩的深入理解,这些材料的组合和搭配,共同营造出一种既现代又温馨的居住氛围。
空间组织的精妙之处: 住宅的空间布局极具创意,体现了建筑师对功能需求和空间体验的深刻理解。通过纵向和横向的区域划分,将私密空间和开放空间有机结合,满足了居住者的不同需求。例如,西侧的封闭空间保障了居住的隐私,而东侧的开放空间则促进了室内外的交流互动。此外,住宅的垂直空间也设计得颇具特色,二楼通过双层挑高空间与露台相连,地面层则通过下沉庭院与花园相连,这些设计手法都极大地丰富了空间层次,营造出引人入胜的居住体验。这种精心组织的空间,使居住者能够在不同层次中感受到空间的流动与变化。
与环境的深度对话: 建筑与环境的融合是该项目的另一大亮点。设计师充分考虑了场地条件,利用现有的两棵香肠树,巧妙地定位建筑,并将其融入周边绿树成荫的郊区环境。建筑的开口设计也与外部环境紧密呼应,比如,南侧的开口将室内的生活空间与树木和天空相连,增强了建筑与自然的联系。建筑材料的选择也体现了对环境的尊重,如模板完成的混凝土墙、ipe木甲板等,这些材料不仅与周围环境相协调,也传达了建筑师对可持续设计的理念。总之,该项目通过对光线、空间和材料的精湛运用,实现了建筑与环境的和谐统一,打造出一个充满诗意和个性的居住空间。

© Shamanth Patil

© Shamanth Patil
建筑师提供的文字描述房子的设计纲要来自客户对光线充足的房子的需求,因为他们以前住在光线昏暗的房子里。这一因素,再加上他们对形状完成的混凝土的热爱,这种混凝土在不明显大声的情况下融入了环境,成为了设计的驱动力。
Text description provided by the architects. The design brief for the house came from the client's need for a light-filled house as they previously lived in a dimly lit house. This factor along with their love for form-finished concrete that blends into the context without being overtly loud became the driving force for design.

© Shamanth Patil

Isometric Drawing

© Shamanth Patil
该地点位于班加罗尔一个绿树成荫的郊区,有独立式房屋,朝南,路旁有两棵香肠树。建筑物的定位及其内部分区是由这些树木和场地方向决定的。由于位于东部和西部的两个纵向空间区域,房屋内部和外部之间建立了直接关系。西侧的区域容纳了需要封闭和隐私的程序,而东侧的区域主要是开放的,允许从房屋后部到前部的轴向连接。东部区域被分段调整,以允许房屋各层之间的横向连接。
The site located in a leafy suburb with detached houses in Bangalore is south-facing with two sausage trees on the footpath abutting the road. The positioning of the building and its internal zoning were dictated by these trees and the site orientation. A direct relationship between the inside and outside of the house is established due to two longitudinal zones of spaces located in the east and west. The zone on the west houses the programs that need enclosure and privacy while the zone on the east is predominantly open allowing for axial connection from the rear of the house to the front. The eastern zone is sectionally modulated to allow for lateral connection between various levels of the house.

© Shamanth Patil

Ground Floor Plan

Section

© Shamanth Patil

© Shamanth Patil
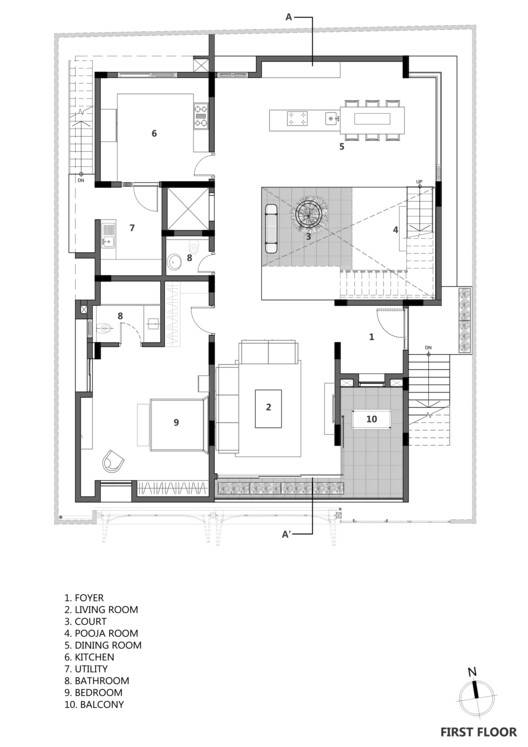
房子的主要区域分为两层:第一层和第二层。这种升高的条件允许次要程序隐藏在主楼的体积之下或之上。前两层设有客厅、餐厅、开放式厨房、3间卧室和一个庭院。三个大开口,其中两个朝南,另一个面向天空,定义了房子与周围环境的关系。房子的二楼通过一个双层空间连接到露台,而房子的一楼是独立的,只能通过内部电梯通道连接。地面上的下沉区域和花园突显了房子与周围环境的紧密联系。这一举措还允许对更大的程序空间的天花板高度进行调节。凹陷区和花园周围的黑色花岗岩墙和黑色卡达帕地板,加上凉棚衬里的缝隙,增加了居住在挖掘出的洞穴空间的想法。从停车侧封闭该区域的大型滑动折叠门允许根据客户的要求打开或限制空间。
The main areas of the house operate in two levels: the first and the second. This elevated condition allows for secondary programs to be tucked beneath or occupied above the volume of the main house. The first two levels house the living, dining, open kitchen, 3 bedrooms, and a courtyard. Three large apertures, two of them facing south and the other facing the sky define the relationship of the house to its surroundings. The second floor of the house connects to the terrace level through a double-height space while the ground floor of the house is detached and connected only through an internal lift access. The rootedness of the house to the context is accentuated by a sunken area and garden on the ground. This move also allows for modulation in the ceiling height for larger programmatic spaces. Black-clad granite walls and black kadapa flooring in the perimeter of the sunken zone and garden with pergola-lined slits add to the idea of inhabiting an excavated cavernous space. Large sliding folding doors enclosing this area from the parking side allow for the space to open up or be limited based on the client's requirement.

© Shamanth Patil

First Floor Plan

© Shamanth Patil
一楼的客厅是通过一组悬挑的酒吧进入的,这些酒吧就像楼梯一样,在东南部狭窄的角落里提供了一种放松和绿色的视觉效果。这座房子的设计是为了展现一系列紧凑和宽敞的空间。从封闭的门厅,一个人被带到一个巨大的木板墙空间,这个空间将西区与东区隔开。在左边,客厅有一个朝南的大开口,由两棵香肠树环绕。右边是庭院,其开口朝向天空,允许持续的光线深入房屋,不受方向变化的影响。黑色地板与半光滑的混凝土结构、光滑的木板墙和白色表面一起吸收和反射来自这些孔的光线,以诗意的方式创造出Chiaroscuro效果。南面的树木在室内投下俏皮的阴影。
The living room on the first floor is accessed through a set of cantilevered bars acting as stairs that provide relief and a green visual in the tight-bounded corner in the southeast. The house is designed to reveal a sequence of spaces combining compactness and expansiveness. From the confined foyer, one is led towards a large wood-paneled walled space that limits the western zone from the east. On the left, the living room is situated with a large aperture towards the south framed by the two sausage trees. Onto the right is the courtyard with the aperture towards the sky that allows for constant light deep into the house independent of the vagaries of direction. Mat black floor along with a semi-smooth texture of form-finished concrete, smooth wood-paneled walls, and white surfaces absorb and reflect light from these apertures to create a Chiaroscuro effect in a poetic way. The trees on the south cast playful shadows onto the interiors.

© Shamanth Patil
光以各种形式移动;由于这些光圈,它们会在光线中斑驳或反射到房子的另一端,从而成为既沉思又生动的抽象风景。朝向东北角的另一个大开口被故意放置,以反射来自东部相邻房屋白色表面的光线,并由于对角线轴而连接到周围的小开放空间。环绕庭院的L形墙壁被漆成白色,以反射天空的光线。
Light moves in various forms; dappled, in beams or reflected across the house due to these apertures thus becoming abstract scenery at once contemplative and vivid. Another large opening towards the northeast corner is deliberately placed to reflect light from the white surface of the neighboring house on the east and connect to small open spaces around owing to the diagonal axis. The L-shaped wall enclosing the court has been painted white to reflect light from the sky.

© Shamanth Patil

© Shamanth Patil
二楼有一个用木头包裹的金属楼梯。木地板延伸到二楼的整个空间,提供了一个与混凝土墙和木镶板墙的自然材料相呼应的触觉基础。这层楼的南面有一个巨大的双层高的光圈,将两棵树和天空形成的郁郁葱葱的树叶框起来。这个广阔的空间与螺旋楼梯形成对比,螺旋楼梯上雕刻着可居住的空隙。从露台层溢出到下面地板的红色氧化物地板进一步加剧了对比。在宽敞空间的北侧,是连接下方地板的庭院空隙和连接上方露台的可步行天窗玻璃。向东的另一个开口将家庭活动室与下面的街道对角线连接起来。
The second floor is accessed by a metal staircase wrapped in wood. The wood floor expands throughout the spaces on the second floor which provides a tactile base sympathetic to the natural materiality of the concrete wall and the wood-paneled walls. This level has a large double-height aperture on the south framing the lush foliage formed by the 2 trees and the sky. This expansive space is contrasted by a spiral staircase with habitable voids carved in poche. The contrast is further heightened by the red oxide flooring that spills over from the terrace level to the floor below. Towards the northern side of the expansive space is the courtyard void connecting to the floor below and a walkable skylight glass connecting to the terrace above. Another aperture towards the east diagonally connects the family room to the street below.

© Shamanth Patil
露台空间主要是为休闲和娱乐而设计的。其中一个香肠树檐前有一个升高的甲板,另一个露天甲板在北侧;两者都有半覆盖的凉棚和安装在顶部的太阳能屋顶。这些空间的物质性主要由ipe木甲板、氧化地板、模板完成的混凝土墙和涂漆的耐候表面组成。
The terrace spaces are primarily designed for leisure and recreation. There is a raised deck fronting one of the sausage tree canopies and the other open deck is on the north side; Both are semi-covered with pergolas and a solar roof mounted on top. The materiality of these spaces is predominated by the ipe wooden deck, oxide floor, form finished concrete walls and painted corten surfaces.

© Shamanth Patil

© Shamanth Patil
总之,这座房子试图在给定的环境中最大限度地利用它的位置,同时将各种天然材料融合成一种连贯而个性化的方式。空间的程序化定义表现为外部各种完成的盒子,类似于内部的物质游戏。房子内部的联系使居民们相互了解,外部的联系将房子与周围环境紧密相连。
In summary, the house seeks to maximize its location within the given context while blending various natural materials into a sort of coherent yet individualistic way. The programmatic definition of the spaces expressed as variously finished boxes on the exterior is akin to the material play within. The connections within the house make the inhabitants aware of each other and the external connections link the house strongly to its context.

© Shamanth Patil