Nightingale Village Leftfield/Kennedy Nolan建筑师事务所
Nightingale Village Leftfield / Kennedy Nolan Architects
可持续发展的先锋:Nightingale Village Leftfield项目,由Kennedy Nolan建筑事务所设计,是三重底线发展的典范。它不仅仅是一个建筑项目,更是一个可持续发展的社会实验。项目秉持着环境、社会和经济三方面的可持续性原则,致力于提供高价值的住房。设计师们巧妙地将道德投资者和最佳设计实践相结合,简化了开发流程,从而降低了建筑成本,使住房更易于被大众接受。这种以建筑师为主导的模式,也体现了对未来建筑开发模式的积极探索和尝试。
色彩与材质的和谐:在设计语言上,该项目展现了独特的色彩和材料运用。设计师巧妙地运用暖赭色预制混凝土,并以此为基调,构建了橙红色的窗户、门和金属制品,以及赤陶色涂料的FC板,与原始混凝土形成鲜明对比。建筑底部的墙面和地面则采用了19世纪墨尔本常见的红砖,与周围环境和谐相融。特别是西立面的设计,以其超大尺度的视觉构成,赋予了建筑友好的个性,在夕阳的照射下,散发出温暖而迷人的光芒,成为城市景观中一道亮丽的风景线。
社区与宜居的统一:项目强调了社区的营造,旨在打造一个多元化、有凝聚力且相互联系的居住环境。建筑包含27套公寓,户型多样,从小型工作室到宽敞的两居室,满足了不同人群的需求。更令人赞赏的是,项目在可持续性方面达到了卓越的标准,包括7.5星的NatHERS热评级、100%无化石燃料运行、零私人停车位以及共享汽车。此外,20%的公寓预先分配给经济适用房,优先考虑关键服务工作者、残疾人士及原住民,体现了建筑师对社会责任的担当和对社区建设的关注。

© Tom Ross

© Tom Ross
建筑师提供的文字描述南丁格尔是三重底线发展的典范。该开发项目由建筑师领导,旨在生产环境、社会和财务可持续的中密度住房。结合道德投资者和设计最佳实践,南丁格尔的最终目标是通过简化开发过程和建筑本身来提供高价值的住房。
Text description provided by the architects. Nightingale is a model for triple-bottom-line developments. This development was led by the Architect to produce medium-density housing that is environmentally, socially, and financially sustainable. Combining ethical investors and best practices in design, the ultimate goal of Nightingale is to provide great-value housing by simplifying both the development process and the building itself.

© Tom Ross

© Tom Ross

© Tom Ross
Kennedy Nolan在单户和多户住宅项目中的工作;我们对室内和景观的探索;我们提供传统开发产品的经验,以及我们自己对其他南丁格尔项目的投资,使我们在2016年获得了南丁格尔许可证。第二年,我们在与其他六位建筑师共享的区域购买了一块地。与我们同时代的专业人士一起,我们正在为墨尔本内北部布伦瑞克Upfieldtrain线旁的一个令人兴奋的城市村庄做出贡献。
Kennedy Nolan's work in single and multi-residential projects; our exploration of interiors and landscape; our experience delivering a conventional development product, and our own investment in other Nightingale projects, led us to a Nightingale License in 2016. The following year, we purchased a site in a precinct shared with six other Architects. Alongside our professional contemporaries, we are contributing to an exciting urban village beside the Upfieldtrain line in Brunswick, in the inner north of Melbourne.

© Tom Ross

© Tom Ross

© Tom Ross
一种生成性的姿态是将灰色预铸物染成暖赭色,我们从中构建了橙红色的窗户、门、金属制品和赤陶漆FC板的色调,所有这些都与生混凝土相抵消。建筑底部的墙壁和地面是街道上密切互动的主要点,覆盖着19世纪墨尔本熟悉的压制红砖。所有元素都以俏皮的方式排列,特别是在我们的西立面,其超大规模的缩放构图产生了友好的个性。从布伦瑞克上空很远的地方就可以看到这座西立面,当西方的太阳在下午照射到它时,它会发出温暖而友好的光芒。
A generative gesture was to tint the grey pre-cast a warm ochre from which we built a tonal palette of orange-red windows, doors and metalwork and terra-cotta painted FC sheet all offset against raw concrete. The walls and ground plane at the base of the building, the principal point of close interaction on the street, are clad in the familiar pressed-red bricks of 19th-century Melbourne. All elements are arranged with a playful approach, particularly on our west façadewhich has a friendly personality generated by its mega-scale zoomorphic composition. This western façade is visible from a great distance over Brunswick and as the western sun hits it in the afternoon, it glows warm and friendly.

© Tom Ross

© Tom Ross

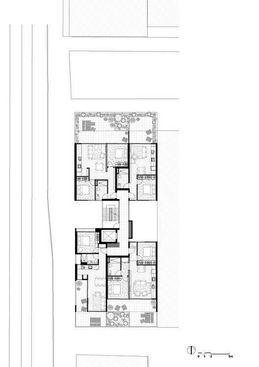
Floor Plan LVL3

© Tom Ross
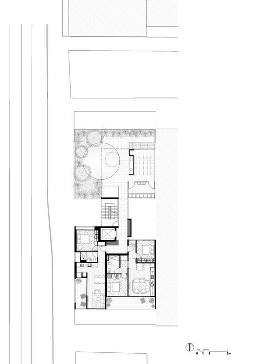
该建筑由27套公寓组成,从34平方米的小型“teilhaus”(一室公寓)公寓到80平方米的宽敞两居室公寓。该建筑是可持续设计的典范(包括7.5星级的NatHERS热评级、100%无化石燃料运行、零私人停车场和15辆共享汽车)。
The building consists of 27 apartments, ranging from small 34 sqm 'teilhaus' (studio) apartments to generous 80 sqm 2-bedroom apartments. The building is an exemplar in sustainable design (including a 7.5-star NatHERS thermal rating, 100% fossil fuel free in operation, zero private car parking, and access to 15 car share vehicles).

© Tom Ross

Floor Plan LVL6

© Tom Ross
20%的公寓已自愿预先分配给经济适用房提供商,购买者优先考虑关键服务工作者、残疾人以及土著居民和托雷斯海峡岛民。
Twenty percent of the apartments have been voluntarily pre-allocated to an affordable housing provider and purchaser priority is given to key service workers, individuals with a disability, and Aboriginal and Torres Straight Islanders.

© Tom Ross
这是一座以社区为设计理念的建筑,一个多样化、有凝聚力和相互联系的社区。我们很自豪地交付了27套舒适、愉悦和功能齐全的房屋,我们的做法是众所周知的。
This is a building designed with community in mind, a community that is diverse, cohesive, and connected. We are proud to have delivered 27 homes that have the comfort, delight, and function for which our practice is known.

© Tom Ross