Hermitage Drive Home/Somner Macdonald建筑事务所
Hermitage Drive Home / Somner Macdonald Architects
历史与现代的对话:Hermitage Drive Home项目最令人印象深刻之处在于其对历史建筑的尊重与创新设计的完美结合。建筑师没有简单地复制旧建筑的风格,而是通过与原建筑的对话,创造了一个既现代又与历史文脉相协调的扩建部分。高耸的不对称屋顶结构不仅赋予了建筑独特的视觉冲击力,还在内部形成了一个六米高的画廊式空间,这是一种大胆的尝试,同时也巧妙地平衡了新旧之间的关系。这种设计手法体现了对原有建筑的尊重,也展现了建筑师对现代生活方式的理解和追求。
空间与光线的巧妙运用:项目在空间规划和光线运用方面展现出极高的专业水准。建筑师通过精心的空间布局,在厨房、起居室和用餐区之间实现了流畅的过渡,同时通过微妙的区域划分和水平变化来定义不同的功能区域。此外,设计师巧妙地利用了天窗,将自然光引入室内,既保证了充足的采光,又避免了室内过热的问题。落地玻璃窗的设计更是将室内与室外景观融为一体,创造出了一种开放、通透的空间感受,实现了室内外环境的无缝连接,让居住者能够亲近自然。
材料与细节的精致呈现:Hermitage Drive Home项目在材料选择和细节处理方面同样体现了建筑师的专业素养。建筑师选用了浅色砖、赤陶瓦、暖色调混凝土和橡木等材料,这些材料既呼应了原始住宅的风格,又为新建筑增添了温馨、现代的氛围。这种材料的巧妙运用,使得新旧建筑在视觉上形成了一种和谐的统一。项目中的每一个细节都经过精心推敲,从屋顶的造型到天窗的设置,再到落地玻璃窗的运用,都体现了建筑师对设计精髓的深刻理解和对建筑品质的极致追求。

© Jim Stephenson

© Jim Stephenson
建筑师提供的文字描述Somner Macdonald Architects为1910年位于苏格兰爱丁堡的一座工艺美术馆重新注入了活力,将其历史悠久的宏伟与戏剧性的现代扩建相匹配。Hermitage以高耸的不对称屋顶形式为特色,转化为一个六米高的画廊式室内空间。
Text description provided by the architects. Somner Macdonald Architects has reinvigorated a 1910 Arts and Crafts home in Edinburgh, Scotland, matching its historic grandeur with a dramatic, modern extension. Hermitage features soaring asymmetric roof forms that translate into a commanding, six-metre, gallery-like interior volume.

© Jim Stephenson

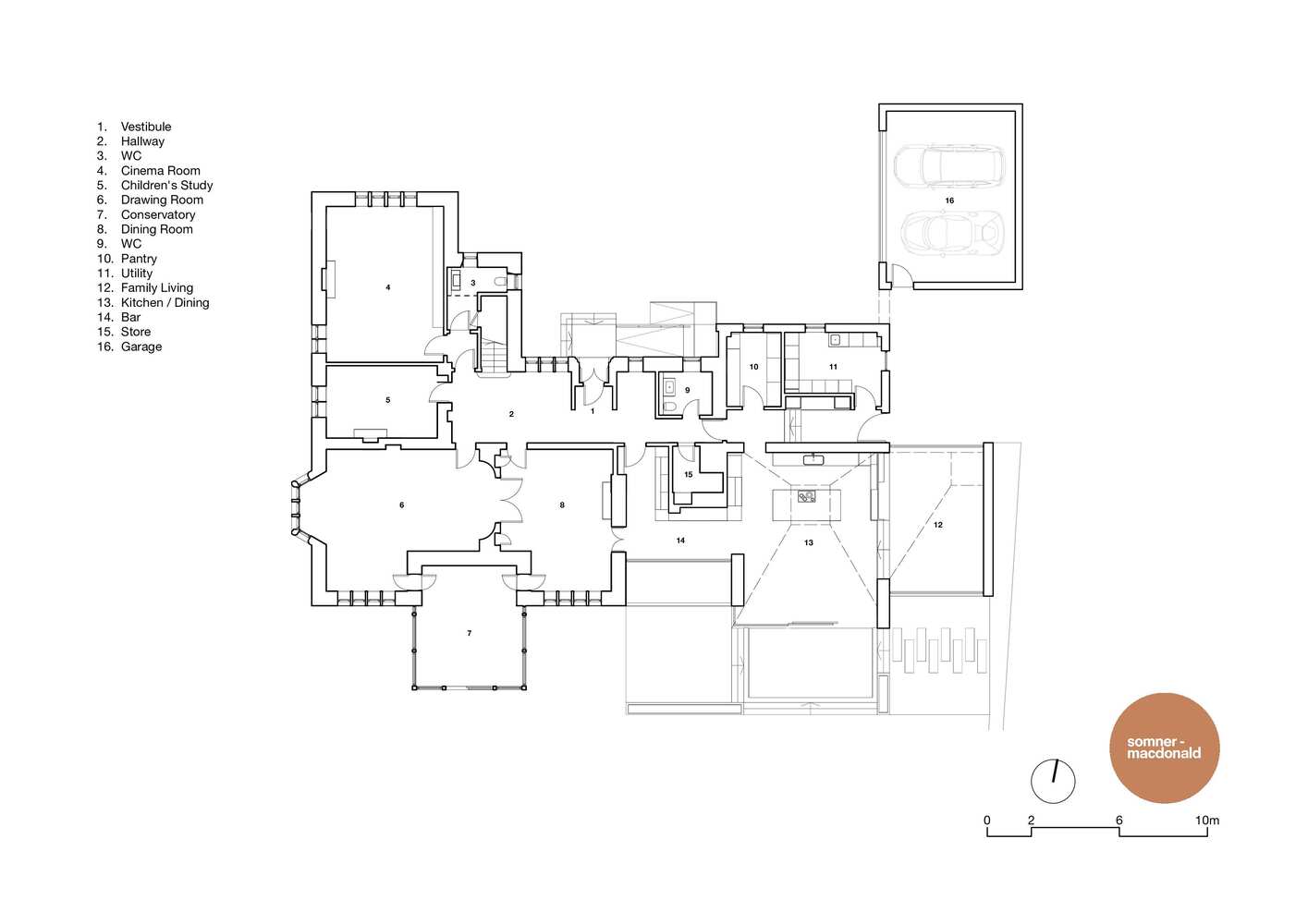
Ground Floor Plan

© Jim Stephenson
Somner Macdonald Architects的建筑师兼总监Seán Gaule说:“房子的旧部分很丰富,新增加的部分需要与之对话,而不是简单地复制它。”。该团队利用物理和数字模型仔细研究了规模和比例,确保新的扩建部分感觉完美平衡。设置在屋顶顶部的天窗可以将光线引导到内部,同时防止过热。
"There's a richness to the old part of the house, and the new addition needed to speak to it – without simply replicating it," says Seán Gaule, architect and director of Somner Macdonald Architects. The team utilised both physical and digital models to carefully study scale and proportion, ensuring the new extension would feel perfectly balanced. Skylights set within the apex of the roof are positioned to direct light into the interior while preventing overheating.

© Jim Stephenson

Sections

© Jim Stephenson
Gaule指出:“主要的驱动力是创造一个令人惊叹的厨房、生活和用餐空间,从房子的旧部分毫不费力地流入新的部分,再到花园。”。空间规划引入了微妙的划分和水平变化来划分区域,而远景则保持了与后院的开放和联系感。落地玻璃为新的露台、池塘和郁郁葱葱的环境增添了更多亮点。“你不在户外,但你很清楚大自然是多么亲密,”Gaule说。
"The main driver was to create a stunning kitchen, living and dining space that flowed effortlessly from the old part of the house into the new and out to the garden," Gaule notes. The spatial planning introduces subtle divisions and level changes to demarcate zones, while long sightlines maintain a sense of openness and connection to the backyard. Floor-to-ceiling glass adds further emphasis to a new terrace, pond and lush surroundings. "You're not outdoors, but you're so aware of how close nature is," Gaule says.

© Jim Stephenson
浅色砖、赤陶瓦、暖色调混凝土和橡木等材料既呼应了原始住宅的元素,也体现了对温馨家庭住所的渴望。Hermitage在其工艺美术遗产和对大胆、现代住宅的需求之间找到了平衡。Gaule总结道:“这是一个独特的转变,但它平衡并丰富了原有的房子”。
Materials such as pale brick, terracotta roof tiles, warm-toned concrete, and oak echo both elements of the original home and the desire for an inviting family abode. Hermitage finds the equilibrium between its Arts and Crafts heritage and the need for a bold, contemporary home. Gaule summarises: "It's a distinct departure, but it balances and enriches the original house".