肯特之家/亚历山德拉·布坎南建筑
Kent House / Alexandra Buchanan Architecture
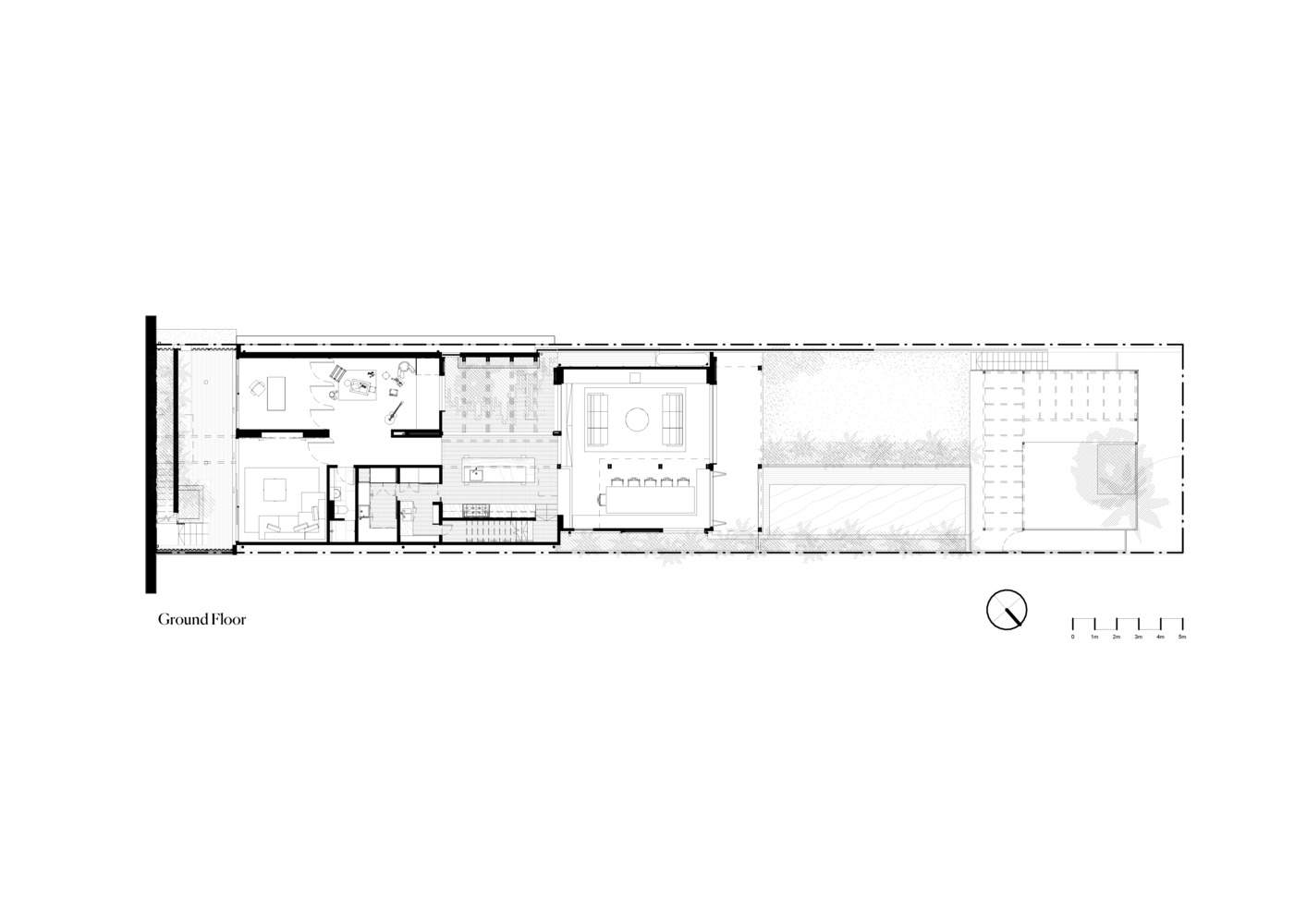
场地与环境的巧妙融合:肯特之家最引人注目的亮点之一在于其对场地条件的深刻理解和巧妙利用。项目巧妙地利用了布里斯班新农场河滨半岛的特纳里夫山的地形,房屋依山而建,与街道形成微妙的隔离。设计师通过桥的设计,将景观与街道分离,创造了独特的视觉层次。同时,项目充分考虑了周围环境的限制,例如与邻近房屋的距离。设计师通过精心设计的立面,实现了良好的交叉通风和景观视野,并在街道上呈现出一个低调、单层的小屋外观,掩盖了后部显著的延伸,这种低调的设计手法与环境完美融合。
中央庭院的创新设计:肯特之家的核心设计理念是围绕中央庭院展开的,这成为了整个项目的精髓所在。庭院不仅是建筑的视觉焦点,也起到了改善采光和通风的关键作用。在狭小的地块上,通过庭院的设计,设计师有效地解决了隐私和视野受限的问题。庭院作为分隔装置,既尊重并维护了原有小屋的完整性,又将景观引入并贯穿于整个房屋。这种设计手法不仅提升了居住的舒适度,也为建筑增添了独特的韵味。庭院的设计也巧妙地回应了昆士兰人“undercroft”的传统,创造了一个宁静的休憩之所,与周围环境形成和谐共鸣。
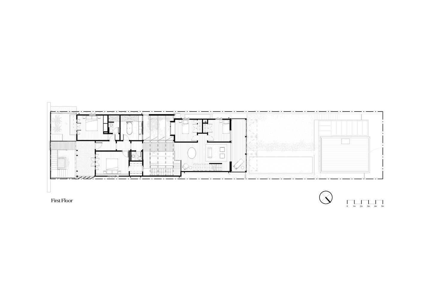
功能与热工的完美平衡:肯特之家在功能性和热工设计方面都展现出卓越的平衡。面对朝西的后花园,设计师通过巧妙的设计应对了热量增加的挑战。他们利用场地的高差,创造了更高的天花板、内部空隙以及可操作的墙体,从而捕捉微风,为原有小屋提供了凉爽的地下空间。这种设计既保证了房屋的灵活性和适应性,又兼顾了热舒适性。在炎热的夏季,建筑可以引导微风穿过房屋;而在凉爽的季节,又能提供温暖和亲密感。这种设计理念充分体现了设计师对气候和居住体验的深刻理解,实现了建筑与环境的和谐共生。

© Cieran Murphy

© Cieran Murphy
建筑师提供的文字描述Kent是1925年昆士兰号的现代补充。坐落在布里斯班新农场河滨半岛的特纳里夫山上,该地块向西陡峭倾斜,远离街道,通往一个令人惊讶的安静的绿树成荫的花园,周围环绕着棕榈树。小屋位于一小块土地上,靠近邻近的房屋(一侧约400毫米,另一侧约800毫米)。然而,该立面提供了从北部到南部的良好交叉通风,可以欣赏到地区山景,并为街道提供了一个低调的小规模(单层)小屋立面,这在一定程度上掩盖了后部的显著延伸。
Text description provided by the architects. Kent is a contemporary addition to a 1925 Queenslander. Nestled onto Teneriffe Hill, in the riverside peninsula of New Farm, Brisbane, the site slopes steeply to the west, away from the street, to a surprisingly quiet leafy garden, fringed with palms. Located on a small lot, the cottage is in close proximity to neighboring houses (some 400mm on one side and 800mm on the other). The elevation, however, affords excellent cross ventilation from the north, district hill views to the south, and presents a discreet, small-scale (single-storey) cottage façade to the street, which somewhat belies the significant extension to the rear.

© Cieran Murphy
随着山体的倒塌,地面与轮廓线相接,在昆士兰高地下方创造了令人惊讶的高度。一座桥将景观与街道隔开,景观从桥下消失。南部边界由现有的石砌罪犯墙界定,而西北边缘由一条私人巷道(5个邻居共享的地役权)和一丛现有的香蕉树界定。
Following the fall of the hill, the floor levels sit against the contours to create surprising height beneath the Queenslander. Separated from the street by a bridge, the landscape falls away beneath it. The southern boundary is defined by an existing stone convict wall whilst the north-western edge is defined by a private laneway (an easement shared by 5 neighbors) and an existing clump of banana trees.

© Cieran Murphy

© Cieran Murphy

Ground Floor Plan

© Cieran Murphy
简介是一个充满活力、充满自然光、质感和趣味的私人住宅。由于靠近邻近的房屋,隐私和视野仅限于北部和北部;南。我们的概念围绕着以中央庭院的形式创造一个迷人的内部焦点,这将改善日光和交叉通风,并有助于在面向西方的街区提供有遮蔽的休息场所。
The brief was for a dynamic, private home filled with natural light, texture, and interest. With close proximity to neighboring houses, privacy and outlook are limited to the north & south. Our concept centred around the creation of a captivating internal focus in the form of a central courtyard that would improve daylight and cross ventilation and assist in providing sheltered respite on the westerly facing block.

© Cieran Murphy

© Cieran Murphy
庭院起到了分隔装置的作用,以尊重和维护现有小屋的完整性,整个小屋清晰可辨。它还强化了昆士兰人“undercroft”的语言,将景观带入并穿过房子;为上方的街道提供了一个受欢迎的宁静休憩之所。
The courtyard acts as a separation device to respect and maintain the integrity of the existing cottage, which is legible throughout. It also reinforces the language of the queenslander "undercroft" bringing the landscape in and through the house & provides a welcome calm retreat to the street above.

© Cieran Murphy

© Cieran Murphy

First Floor Plan

© Cieran Murphy

© Cieran Murphy
朝西的后花园朝向可能会给管理热量增加带来挑战,但该计划的设计反应灵敏,在场地倒塌后,提供了更高的天花板、内部空隙和可操作的墙壁,以捕捉微风和阳光;为现有的小屋提供一个凉爽宽敞的地下室。从功能上讲,该建筑具有灵活性和响应性,在热方面也具有适应性。在炎热的夏天,Funnelling微风拂过山丘,穿过房屋,但在凉爽的月份里,它提供了温暖和亲密。
The west-facing rear garden orientation could provide a challenge for managing heat gain, but the design of the plan is responsive, following the fall of the site to provide higher ceilings, internal voids, and operable walls that capture breezes & provide a cool expansive undercroft to the existing cottage. Functionally, the building is flexible and responsive, thermally, it is adaptive also. Funnelling breezes up the hill and through the house on hot summer days but providing warmth and intimacy for the cooler months.

© Cieran Murphy