t.house/小川设计工作室
t.house / ogawaa design studio
项目总体评价:这座位于大阪的翻新住宅项目,其设计理念的核心在于对当地环境的深刻理解和回应。建筑师敏锐地捕捉到了大阪社区的特点:一种“非学术”的日常氛围,以及居民对社区的特殊情感连接。项目不仅仅是简单的建筑翻新,更像是一次对城市肌理的重新解读和回应。设计巧妙地融合了新与旧的元素,创造出一种独特的空间体验,既与周围环境和谐共生,又在细节上展现出居住者的个性化需求,使居住者在充满噪音的城市中找到一种安全感和归属感。
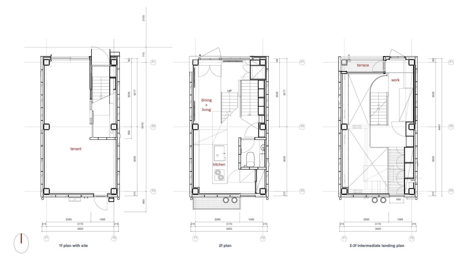
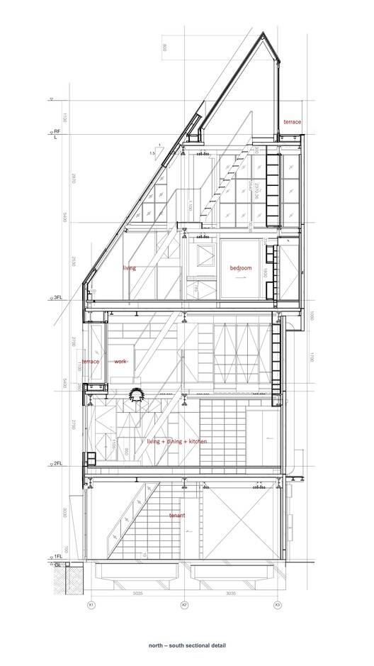
空间布局的亮点:项目最引人注目的特点之一是其对垂直空间的巧妙利用。考虑到楼梯作为生活空间的一部分,设计师将其置于住宅楼层中央,创造了灵活的流通路径。通过中庭和楼梯的连接,整个建筑呈现出一种松散的连贯性,同时兼顾了不同楼层的隐私需求。特别是,通过将二、三层改造成中庭,并设计可用于维护的露台,巧妙地在有限的空间内实现了多层建筑的视觉效果。这种设计策略不仅提升了空间感,也为建筑带来了多重可能性,如二楼的出租,进一步模糊了空间边界,增强了居民、商店与城镇之间的互动。
设计理念的精髓:该项目体现了对“场所精神”的深刻理解和尊重。设计师将建筑视为连接居民与城镇的桥梁,而非孤立的个体。通过对新旧材料的巧妙结合,以及对空间序列的精心安排,创造出一种独特的“秘密基地”体验。建筑鼓励居民与周围环境建立联系,同时又在内部创造出私密和安全感。设计师的目标是创造一种“呈现公共性”的建筑,通过对城镇的信任和依恋,在平凡中孕育出丰富的城市景观。这种设计理念强调了建筑与使用者、社区之间的情感连接,以及对场所历史的尊重和延续。

© Akira Ito

© Akira Ito
建筑师提供的文字描述在大阪,通常有杂乱而舒适的城镇。许多在那里出生和长大的居民都依附于自己的城镇。确切地说,他们不太喜欢这个城镇,但可能只是习惯了多年来重复的正常生活。这些城镇的日常场景没有学术价值,也包含许多非法元素,但居民们以一种自私的自我责任感推动事情向前发展的力量,创造了一种非凡的平凡感或被噪音包围的安全感,给这座城市一种奇怪的团结感。
Text description provided by the architects. In Osaka, there are usually cluttered and comfortable towns. Many of the residents who were born and raised there are attached to their own town. To be precise, they do not love the town very much, but may just be accustomed to the normal life there that has been repeated over the years. The daily scenes of these towns have no academic value and contain many illegal elements, but the strength of the residents who move things forward with a kind of selfish self-responsibility creates an extraordinary combination of ordinariness or a sense of security surrounded by noise, giving the city a strange sense of solidarity.

© Akira Ito
我们设计了一个在这样一个城镇生活了多年的人的家,将其翻修成一座带商店的房子。我们翻修了这座近50年历史的建筑的所有部分,除了基础、钢架和东西外墙,它们与两侧的房屋半集成。尽管该地点地理位置十分便利,但其面积仅略小于30平方米。它最初是一栋五层楼的建筑,但为了消除狭窄的空间并减轻与法律法规相关的负担,二楼和三楼被改造成两层中庭,使其成为一栋三层楼的建筑物。然而,我们在楼层之间创建了一个可用于维护的露台,使其看起来像一栋五层楼的建筑。
We designed the home of a person who had lived in such a town for many years to be renovated into a house with a store. We renovated everything about the nearly 50-year-old building except for the foundation, steel frame, and the east and west exterior walls, which are semi-integrated with the houses on both sides.Although the site is in a highly convenient location, it is only a little less than 30 square meters in area. It was originally a five-story building, but in order to eliminate the cramped space and reduce the burden associated with legal regulations, the second and third floors were made into two-story atriums, making it a three-story building. However, we created a terrace between the floors that can be used for maintenance, making it look like a five-story building.

© Akira Ito

© Akira Ito

Floor Plan 1F, 2F, and 2/3F

© Akira Ito
考虑到垂直移动所需的楼梯是生活空间的一部分,我们计划将其放置在住宅楼层的中间。整个建筑通过楼梯和中庭松散地连接在一起,但隐私从底层到上层逐渐增加,并在屋顶再次与城镇相连。如果居民有可以信任的关系,二楼可以出租。空间边界的模糊和综合立面设计在居民、商店和城镇之间创造了一种独特的关系。
Considering the stairs necessary for vertical movement to be part of the living space, we planned to place them in the middle of the residential floor. The entire building is loosely connected through stairs and atriums, but privacy gradually increases from the base to the upper floors, and it connects with the town again at the rooftop. The second floor can be rented out if the residents have a relationship they can trust. The blurring of spatial boundaries and the integrated facade design create a unique relationship between residents, stores, and the town.

© Akira Ito

© Akira Ito

Section

© Akira Ito
我们创造了一种奢华的开放感,与城镇建立了直接的关系,同时将这个新旧混合的城镇的混乱氛围带入了房子。这使得这所房子对居民来说很特别,就像一个秘密基地,尽管附近有路人经过。
We created a luxurious sense of openness and a direct relationship with the town while bringing the chaotic atmosphere of this town, with its mixture of old and new, into the house. This made the house feel special to the residents like a secret base, even though passers-by were passing in the immediate vicinity.

© Akira Ito
我们结合了具有老化感的材料和新材料,在楼梯周围创造了一个意想不到的序列,以及一个需要巧妙使用的空间。这使得真正的依恋和怀旧随着时间的推移而发展。我们相信,随着居民们继续享受收集物品和体验,这所房子将充满各种各样的噪音,并将更加熟悉这个城镇。
We combined materials that give a sense of aging and new materials to create an unexpected sequence around the stairs and a space that requires ingenuity in how to use it. This allows for real attachment and nostalgia to develop over time. We believe that as the residents continue to enjoy collecting the items and the experiences they will have, this house will be filled with a variety of noises and will become more familiar with the town.

© Akira Ito
即使只是房子在别人看来像垃圾,也有一个空间对用户来说是不可替代的。我们的目标是实现一种呈现公共性的建筑,通过与城镇松散连接的私人空间培养一种普通但丰富的城镇景观,并对其产生信任和依恋。
Even if it is just the house that looks like junk to others, there is a space that is irreplaceable to the user. We aimed to realize an architecture that presents publicness, fostering an ordinary but rich townscape through private spaces that are loosely connected with the town with trust and attachment to it.

© Akira Ito