波罗尼亚街的房子/加布里埃尔·科根+吉列尔梅·皮亚卡
House in Polônia Street / Gabriel Kogan + Guilherme Pianca
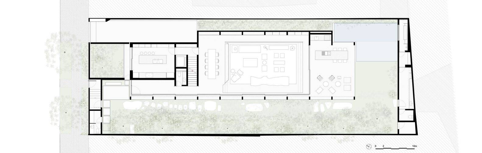
空间感知与框架视角:该项目最显著的亮点在于其对空间序列的精准掌控。设计师巧妙地利用了42米进深、15米宽的地块,将花园置于前方,住宅置于左侧,创造了一种独特的空间体验。建筑的初始视角被设计为“节点”,如同一个起始点,引导观者进入精心编排的空间之旅。通过一系列“框架视角”的设计,设计师成功地强调了空间的正面性和深度,巧妙地弱化了对角线的干扰,营造出一种秩序感和纵深感。这种对空间流线的控制和对视线的引导,是该项目在设计理念上的一大突破,赋予了建筑独特的叙事性和观赏性。
极简主义的热带演绎:该项目对“无限网格”概念的诠释极具特色,将极简主义与热带风格巧妙融合。设计师设想住宅为一个可以无限延伸的原型,采用2.9米宽、3米高的模块化结构,沿混凝土立面重复排列。这种重复性是极简主义的核心,但在此项目中,设计师并未简单复制,而是赋予其新的生命。盲端墙面的设置打破了这种连续性,预示着无限扩张的可能性,这种设计手法在视觉上富有张力,同时也暗示了建筑的可塑性。更重要的是,设计师通过暖色调和更具地域特色的材料,为极简主义注入了新的活力,使其更加贴近生活,而非冰冷刻板,体现了对现代建筑语言的创新性思考。
材料的本真与整体性:该项目在材料运用上展现出对“装饰性”的反思,并追求材料与功能的深度融合。设计师摒弃了多层重叠、与功能脱节的装饰趋势,而是将材料本身作为结构元素。例如,木板既是门,又是书架;水泥地面即是地板。这种对材料本真的尊重和对功能性的强调,使得建筑整体感更强,视觉上也更为纯粹。这种设计理念不仅体现在室内,也延伸到浴室和厨房等细节空间,通过选择易于维护、清洁和耐用的材料,最大限度地减少了随意性,确保了建筑的持久性和实用性,体现了设计师对建筑整体性的深刻理解,以及对建筑材料的精准把握。

© Pedro Kok

© Pedro Kok
建筑师提供的文字描述从节点看建筑-进入42米深、15米宽的地块后,花园在前面展开,而房子在左边,与5米的后退平行。房子的第一个视图被设计为空间感知的节点。从那里开始,穿过房子的旅程被结构化为一系列框架视图,强调空间的正面性和深度,尽量减少对角线视角。
Text description provided by the architects. Architecture Seen from Nodal Points - Upon entering the 42-meter-deep and 15-meter-wide plot, the garden unfolds at the front, while the house stands to the left, parallel to the 5-meters-setback. This first view of the house was designed as a nodal point for spatial perception. From there, the journey through the house is structured as a sequence of framed views that emphasize the space’s frontality and depth, minimizing diagonal perspectives.

© Pedro Kok
无限网格的一部分——我们设想这所房子是一种可以延伸到整个领土的原型职业。每个模块宽2.90米,高3.00米,在两层结构中沿着混凝土立面重复。前后的盲端墙突然中断了这种连续性,预示着无限扩张的可能性。重复是极简主义的核心,但在这里,我们提出了一个更热带、更温暖的版本来解释这个概念。
A Section of an Infinite Grid - We envisioned the house as a kind of prototypical occupation that could extend across the entire territory. Modules, each measuring 2.90 meters wide and 3.00 meters high, repeat along the concrete façade in a two-story structure. The blind end walls at the front and back create an abrupt interruption in this continuity, signaling the possibility of infinite expansion. Repetition is central to minimalism, but here, we propose an alternative interpretation of this concept in a more tropical and warm version.

© Pedro Kok

© Pedro Kok
饰面作为结构元素——我们试图朝着装饰趋势的相反方向发展,装饰趋势寻求多层重叠的材料,与建筑功能脱节。在这所房子里,我们的目标是融合功能、材料和装饰。例如,木板可以用作门或书架。水泥地板就是地板本身。窗框里的玻璃就是窗户本身。混凝土就是结构本身,等等。即使在浴室和厨房等空间,材料选择也优先考虑易于维护、清洁和耐用,最大限度地减少了随意的设计决策。
Finishes as Structural Elements - We sought to move in the opposite direction of decorative trends that seek for several layers of overlapping materials, disconnected from architectural function. In this house, we aimed to converge function, materials, and finishes. Wooden panels serve as doors or bookshelves, for example. The cementitious floor is simply the floor itself. The glass in the frame is the window itself. The concrete is the structure itself, and so on. Even in spaces such as the bathrooms and kitchen, material choices prioritized ease of maintenance, cleanliness, and durability, minimizing arbitrary design decisions.

© Pedro Kok

© Pedro Kok
花园以下——坐在客厅的沙发上,可以俯瞰地面的花园。这在内部和外部之间创造了一种不同寻常且令人惊讶的关系。此外,通过降低地板,我们在房子的社交区域实现了55厘米的天花板高度,增强了空间感,而不会改变立面模块或创建过高的结构。这既保持了建筑的整体水平比例,也保持了外部模块的方形比例。
Below the garden level - When seated on the sofa in the living room, one can look out at the garden at ground level. This creates an unusual and surprising relationship between interior and exterior. Additionally, by lowering the floor, we achieved a ceiling height 55 centimeters higher in the house’s social area, enhancing the sense of spaciousness—without altering the façade module or creating an overly elevated structure. This maintains both the overall horizontal proportions of the building and the square proportions of the external modules.

© Pedro Kok
木天花板建筑师经常在他们的项目中建立设计前提。对于这所房子来说,最复杂的无疑是保持客厅的木天花板完全一致——没有视觉噪音、穿孔、灯具或空调通风口。除了营造独特的氛围外,这种方法还鼓励间接反射照明,这总是更令人愉快和舒适。空气通过地板供应,并通过窗框上的一个隐蔽间隙返回。客厅变成了一个插在混凝土网格内的纯木箱。
The Wooden Ceiling - Architects often establish design premises in their projects. For this house, the most complex one was undoubtedly maintaining the wooden ceiling in the living room completely uniform — without visual noise, perforations, light fixtures, or air conditioning vents. Besides creating a unique atmosphere, this approach encourages indirect, reflected lighting, which is always more pleasant and cozy. Air is supplied through the floor and returned via a discreet gap along the window frame. The living room becomes a pure wooden box inserted within a concrete grid.

© Pedro Kok

© Pedro Kok
树木和石头的花园-客厅完全面向花园(由景观设计师罗德里戈·奥利维拉设计),在那里,未经雕琢的沉重石头在热带植被中雕刻出小径。从社交区域来看,绿色植物似乎向内投射,创造了一种内省、沉思的体验。混凝土结构与花园建立了张力与和谐的关系。我们将其设想为房子周围的一个受控围栏,一个能够精心策划视角的建筑长廊。
A Garden of Trees and Stones - The living room fully faces the garden (created by the landscape designer Rodrigo Oliveira) where raw heavy stones carve paths through the tropical vegetation. Viewed from the social area, the greenery appears to be projected inward, creating an introspective, contemplative experience. The concrete structure establishes a relationship of both tension and harmony with the garden. We conceived it as a controlled enclosure around the house, an architectural promenade that enables carefully curated perspectives.

© Pedro Kok
建筑影响的融合-我们从以前的项目中汲取经验,并从日本、英国、瑞士和葡萄牙等其他国家学习建筑。我们认为,该项目代表了不同建筑流派的交汇,这是巴西新一代建筑师,而不仅仅是我们,一直在努力发展的。这不再是几十年来人们所理解的圣保罗学派(也称为保利斯塔学派),它植根于现代主义大师的正式演变。
A Convergence of Architectural Influences - We brought our experience from previous projects and our studies of architecture from other countries, such as Japan, England, Switzerland, and Portugal. We believe the project represents a meeting of different architectural schools — something that the new generation of Brazilian architects, not just us, has been striving to develop. This is no longer the São Paulo School (also known as the Paulista School) as it was understood for decades, rooted in formal evolutions of modernist masters.

Planta - Pavimento térreo

Plan - First floor
多一层楼——在双层垂直混凝土网格之上,增加了一层楼。我们计算了视线,以确保从花园里看不到这个体积。其目的是保持立面的水平感,不受这一最终层次的干扰,这是为了满足客户的程序需求。一个换位
One More Floor - Above the double-layered vertical concrete grid, an additional floor was added. We calculated sightlines to ensure this volume remains imperceptible from the garden. The intention was to preserve the façade’s sense of horizontality, uninterrupted by this final level, which was included to meet the client’s programmatic needs. A Transposition of

© Pedro Kok

© Pedro Kok
结构系统-该项目的早期版本采用木结构设计。然而,由于客户的要求,我们转而使用混凝土。可以说,最初的木制概念已经体现了混凝土建筑固有的逻辑。然而,最初为木材设计的一些细节,如落地式立柱,在最终的建筑设计中保留了下来,作为对这一过程的记忆。
Structural Systems - The early versions of this project were designed with a wooden structure. However, due to a client request, we switched to concrete. One could say that the initial wooden concept already embodied a logic inherent to concrete construction. Nevertheless, some details initially conceived for wood, such as floor-detached columns, were retained in the final architectural design, as a memory of the process.

© Pedro Kok
材料调色板-在整个项目的开发过程中,我们策划了一个材料调色板。立面的混凝土中混合了少量的颜料,使其色调更加温暖。从这个起点开始,调色板演变成一种与深绿色外观形成对比的淡红色氛围。我们在现场制作了许多原型,以了解材料在实际空间中的表现,努力实现音调的细致衔接。
Material Palette - Throughout the project's development, we curated a material palette. The façade’s concrete was mixed with a small amount of pigment, giving it a warmer tone. From this starting point, the palette evolved into a reddish atmosphere that contrasts with the deep green exterior. We built numerous prototypes on-site to understand how the materials would behave in the actual space, striving for a meticulous articulation of tones.

© Pedro Kok