IEIE House/MASA建筑师事务所
IEIE House / MASA Architects
空间意境的营造:IEIE House最令人印象深刻之处在于其对空间意境的巧妙营造。设计师没有将住宅简单地视为一个封闭的个体,而是将其与周围的城镇环境联系起来。通过“房屋内的城镇”这一概念,设计师在建筑内部构建了多个“房屋”形状的组合,模糊了内外空间的界限。这种手法创造了一种模糊的感知,让居住者在室内也能感受到城镇的氛围。这种设计不仅丰富了居住体验,也赋予了建筑一种超越物理尺度的精神内涵,体现了设计师对空间关系的深刻理解和创新。
结构与功能的融合:该项目在结构设计上也展现了独到的见解。通过小房子形状的框架支撑大房子形状框架的结构方案,设计师不仅实现了建筑的稳固性,也为未来的空间变化提供了极大的灵活性。这种设计能够适应居住者不断变化的需求,而无需预先限定他们的生活方式。这种结构与功能的完美结合,使得建筑在满足居住需求的同时,也具备了很强的适应性和可持续性。这种对结构与功能之间关系的思考,体现了设计师对建筑的整体性把握。
材料与光线的运用:IEIE House在材料和光线的运用上堪称典范。外墙采用水平金属钢板,通过反射天空的光线,随着时间的推移,在侧接缝处形成了移动的阴影效果。这种设计不仅丰富了建筑的视觉层次,也让建筑与周围环境产生了互动。光影的变化赋予了建筑生命力,使其在不同的时间段呈现出不同的姿态。设计师对材料的特性以及光影效果的精准把握,使得建筑在简约的形态下,展现出丰富的细节和表现力,也强化了其与周围城镇环境的对话。

© Masao Nishikawa

© Masao Nishikawa
建筑师提供的文字描述在日语中,“IEIE”通常意味着“一排房子”。这座名为“IEIEIE”的房子是为一对上钢琴课的夫妇而建的,建在浦安的一个土地调整住宅区。这是一所房子,通常位于房子外面的功能,如钢琴学校和远程办公,都包含在房子里。这所房子不是直接向社区开放的,而是像大多数房子一样,它对社区关闭,我们试图设计一个空间,让人们可以感受到我们在房子里的形象,让城镇的形象不断联系在一起。
Text description provided by the architects. In Japanese, "IEIE" generally means "a row of houses." The house named "IEIE" is for a couple with piano lessons, built in a land readjustment residential area in Urayasu. This is a house in which functions normally located outside the house, such as a piano school and telework, are included within the house. The house is not directly open to the neighborhood, but rather, like most houses, it is closed to the neighborhood, and we attempted to design a space where people can feel the town as our image in the house, and where the image of the town is continuously connected.

© Masao Nishikawa

© Masao Nishikawa
在城镇中,除了房屋的形状外,街景还由颜色和光线、阳台、窗户和其他建筑元素构成。由于它们的复杂性,我们无法单独感知它们,只能模糊地感知它们。我们试图在“IEIE”中创造一种对整个城镇的模糊感知。
In a town, in addition to the shape of the house, the streetscape is created by color and light, balconies, windows, and other elements of buildings. Because of their complexity, we do not perceive them individually but only vaguely. We attempted to create such a vague perception of the town as a whole within the "IEIE".

© Masao Nishikawa

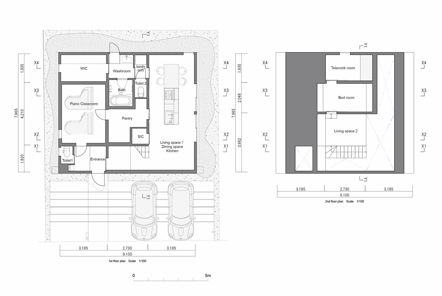
First Floor Plan

© Masao Nishikawa

© Masao Nishikawa
具体来说,我们创建了一个组合,其中一个大房子内有几个房子形状。我们试图通过边缘的光线和清晰的视线来不确定地感知房屋的形状,从而整体上创造波动现象。虽然人们住在房子里,但就像住在一个城镇里。外墙上还覆盖着水平的金属钢板,随着时间的推移,这些钢板以不同的方式反射来自天空的光线,在侧接缝上产生了移动阴影的外观。
Specifically, we created a composition in which several house shapes exist within one large house. We tried to create fluctuating phenomena as a whole by having the house shapes perceived uncertainly through the light from the edges and clear lines of sight. Although people live in the house, as if they live in a town. The exterior walls are also covered with horizontal metallic steel sheets, which reflect light from the sky in different ways over time, creating an appearance of shifting shadows on side joints.

© Masao Nishikawa

© Masao Nishikawa

© Masao Nishikawa

Cross-Section Perspective

© Masao Nishikawa
小户型框架支撑大户型框架的结构方案旨在满足居民不断变化的需求,而无需指定他们的生活方式。结构墙仅放置在形成小房子形状的周边和侧面,这样无论在哪里切割,我们都能获得类似的横截面。如果人们的生活方式在未来发生变化,这允许灵活的适应。
The structural plan that small house-shaped frames support large house-shaped frames is designed to accommodate the changing needs of the residents without specifying their lifestyle. Structural walls are placed only on the perimeter and on the sides that form a small house shape so that we acquire a similar cross-section no matter where they are cut. This allows for flexible adaptation if the way people live changes in the future.

© Masao Nishikawa