图尔瓦赫特豪斯/BÜRO MÜHLBAUER
Thürwachterhaus / BÜRO MÜHLBAUER
历史文脉的尊重与活化:该项目最引人注目的亮点在于其对历史建筑的尊重与活化。始建于16世纪的农场建筑,在经历了漫长的历史变迁后,被赋予了新的生命。设计师没有选择简单的推倒重建,而是通过与私人投资者和政府的合作,找到了可持续的利用方式。这不仅是对历史文脉的尊重,更是对城市记忆的延续。改造后的建筑,既保留了原有的历史风貌,又融入了现代生活的需求,实现了历史与现代的完美融合。这种对历史建筑的保护和再利用,是值得所有建筑师学习的典范。
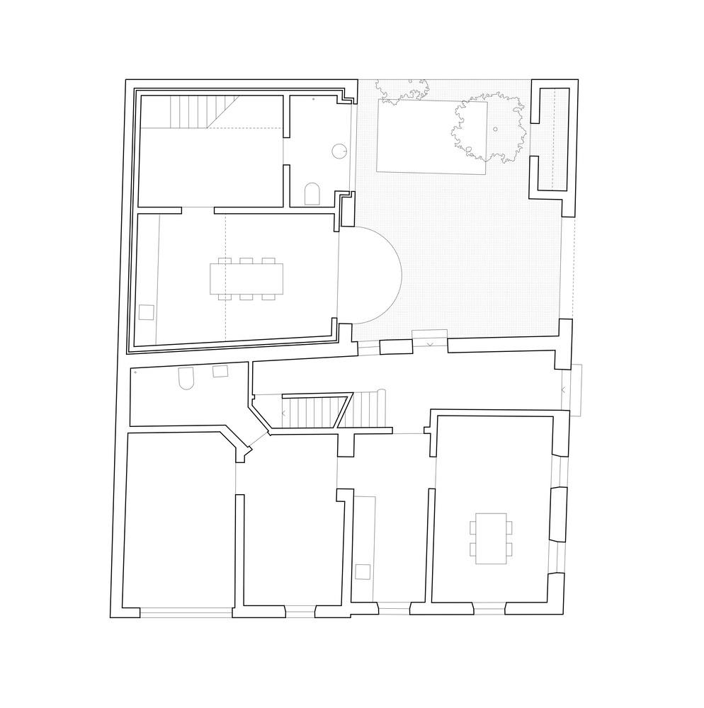
空间设计的巧妙与实用: 项目在空间设计上展现出巧妙的构思和实用性。通过对旧建筑的重新规划,将原本封闭的小庭院改造为所有居民共享的户外空间,提升了居住品质。对住宅和农场建筑的重新分配和改造,为居民提供了多样化的居住选择,满足了不同人群的需求。平面图和剖面图的展示,清晰地揭示了设计师对空间的精准把控。此外,公寓采用区域供暖系统,体现了对可持续发展的关注。整个设计在满足现代生活需求的同时,也注重了对历史建筑的保护和利用,实现了功能性与美观性的统一。
材料与细节的考究与传承:从提供的图片中,我们可以看到设计师对材料和细节的精心考量。虽然没有详细的材料清单,但从外观和内部空间来看,设计师很可能在保留原有建筑材料的基础上,进行了巧妙的修缮和补充。这种对原有材料的尊重,不仅节约了资源,也使得建筑更具历史韵味。例如,建筑师可能保留了原有的木结构,并巧妙地融入现代设计元素,使新旧材料完美融合。每一个细节都体现了设计师对建筑品质的极致追求。这不仅是对建筑技艺的传承,更是对文化遗产的尊重,是项目的重要精髓。

© Ralph Feiner

© Ralph Feiner
建筑师提供的文字描述这座前城镇农场的历史可以追溯到16世纪。直到20世纪中叶,该物业才完全用于住宅用途。
Text description provided by the architects. The former town farm dates back to the 16th century. It was not until the middle of the 20th century that the property was used purely for residential purposes.

© Ralph Feiner

Ground Floor Plan

© Ralph Feiner
由于其位于Taschentortum附近的角落位置,所列出的合奏在城市空间中具有特殊意义。
With its corner position in the immediate vicinity of the Taschentorturm, the listed ensemble has a special significance in the urban space.

Exploded Axonometry
Taschenturm建于14世纪因戈尔施塔特第二次扩建期间。最近,这座房子及其附属建筑空置了几十年。在私人投资者和建筑师的密切合作下,找到了一种可持续利用的方法。该项目得到了公共资金的补贴。
The Taschenturm was built during the second expansion of Ingolstadt in the 14th century. Most recently, the house and its outbuildings stood empty for decades. In close cooperation between the private investor and the architects, a way was found for a sustainable use. The project was subsidized with public funds.

© Ralph Feiner

Section

© Ralph Feiner
公寓由区域供暖系统供暖。翻修完成后,前住宅楼现在有三套公寓,总面积为180平方米,前农场楼是一座带马厩的谷仓,有一套三层公寓,居住面积为90平方米。
The apartments are heated by district heating. Following completion of the renovation, the former residential building now has three apartments with a total of 180 square meters of space and the former farm building - a barn with stables - has a three-storey apartment with 90 square meters of living space.

© Ralph Feiner

© Ralph Feiner
这个曾经封闭的小庭院现在成为所有居民不受干扰的户外空间。
The small courtyard, which used to be enclosed, now serves as an undisturbed outdoor space for all residents.

© Ralph Feiner