AUM小屋/亚瑟·卡里耶夫建筑师事务所
AUM Cabins / Arthur Kariev Architects
对自然的敬畏与尊重:项目最令人称道之处在于其对环境的深刻尊重。小屋的选址、建造方式以及材料的选择,都体现了建筑师对自然的敬畏。采用金属桩架起的木框架SIP板结构,最大限度地减少了对地面的破坏。设计者精心规划了通道和地下通信设施,以保护原始景观。水源来自附近的泉水井,确保了对环境的低影响。这种对自然的尊重贯穿于项目的始终,与客户追求在自然中享受生活的理念完美契合,也赋予了小屋独特的精神内涵。
材料的再利用与文化传承:项目的另一个亮点是对于旧材料的创新性运用。建筑师亲赴阿尔泰山,挑选来自破旧房屋的古老落叶松木板作为外立面材料。这些木材不仅具有独特的质感和历史痕迹,更重要的是,设计师在收集、分类和安装的过程中,赋予了这些材料新的生命,也延续了当地的文化记忆。这种对旧材料的再利用,不仅体现了环保理念,也反映了建筑师对当地文化的尊重和对传统价值的传承,使小屋拥有了独特的历史厚重感。
内外空间的和谐统一:项目在内外空间的设计上实现了和谐统一。小屋内部将现代舒适性与传统的游牧生活方式完美融合。未上漆的胶合板、民族图案的毡毯、手工制作的瓷砖,都营造出一种朴素、舒适、环保的氛围。落地窗的设计让室内空间可以最大限度地欣赏到周围的山景,模糊了室内外的界限,使居住者能够沉浸在自然之中。这种内外空间的和谐统一,既满足了现代生活的需求,又保留了当地的文化特色,体现了设计的人文关怀。

© Ilya Ivanov

© Ilya Ivanov
建筑师提供的文字描述这些小屋位于海拔1650米处,就在阿拉木图以南25公里的Ile Alatau国家公园外,位于哈萨克斯坦Trans Ili Alatau的北坡。客户的家人决定为他们的朋友建造两间客舱,以展示哈萨克天山壮丽的高原景观。该项目背后的想法是在保护自然的同时创造一个温暖温馨的地方。今天,全球趋势庆祝高端舒适,但这片中亚土地保留了古老的游牧传统。客户和建筑师Arthur Kariev认为,对于现代城市居民来说,真正的奢华在于创造一个在不干扰生态系统的情况下享受自然的机会,追溯自己在日常生活中的根源,并与亲近的人共度美好时光。
Text description provided by the architects. The cabins are located 1,650 metres above sea level, just outside the Ile Alatau National Park, 25 kilometres south of Almaty, on the northern slope of Trans-Ili Alatau in Kazakhstan. The client's family decided to build two guest cabins for their friends in order to showcase the magnificent highland landscapes of the Kazakh Tien Shan. The idea behind the project was to create a warm and welcoming place while safeguarding nature.Today, global trends celebrate high-end comforts, but this Central Asian land preserves ancient nomadic traditions. The clients and the architect, Arthur Kariev, believe that for the modern urban dweller, true luxury lies in creating an opportunity to enjoy nature without disturbing the ecosystem, retrace one's roots in everyday life, and spend quality time with the near and dear ones.

© Ilya Ivanov
外部材料的选择至关重要。立面上排列着在东哈萨克斯坦阿尔泰山脉发现的古老落叶松,这些落叶松与传说中的香巴拉有关,据说香巴拉是在白俄罗斯山附近进入的。木板来自破旧的旧房子。设计师和客户一起收集木材,以清理圣地,为遗产材料赋予新的生命。
The selection of exterior material was paramount. The façades are lined with old larchwood found in East Kazakhstan, in the Altai Mountains, which are associated with the legendary Shambhala, entered supposedly near Belukha Mountain. The planks come from old, dilapidated houses. The designer and the client together collected the timber in order to clean the sacred lands and give new life to heritage materials.

© Ilya Ivanov

© Ilya Ivanov
建筑师在阿尔泰山度过了两个夏天,亲自挑选了每块木板。他主要选择屋顶木材,因为它的质地更独特,封装了一个多世纪以来时间、苔藓和霉菌留下的各种痕迹。各种各样的木板被运到全国各地的新地点,连同旧钉子,然后分类并安装在外墙上。
The architect selected each plank personally, having spent two summers in the Altai Mountains. He picked mostly roof timber as its texture is more distinctive, encapsulating all manner of traces left by time, moss, and mold over a century. The sundry planks were transported across the country to their new location, complete with their old nails, then sorted and installed on façades.

© Ilya Ivanov

© Ilya Ivanov
小屋本身是由金属桩上的木框架SIP板制成的。这样,它们的建造就不需要深基础和其他积极的干预措施。未来,这些建筑可以拆除,材料可以重复使用。为小屋建造了一条通道,并在地下安装了通信设施,以保护原始的自然景观。清澈的水是从附近的泉水井里抽出来的。里面有热水器,所以客人可以在徒步旅行后洗个热水澡。
The cabins themselves are made of timber-framed SIP panels on metal piles. This way, their construction did not require deep foundations and other aggressive interventions. In the future, the buildings can be dismantled, and the materials reused.An access track was built for the cabins, and communications were installed underground in order to protect the original natural landscape. Clear water is drawn from a nearby spring well. There are water heaters inside, so the guests can take a hot shower after their hikes.

© Ilya Ivanov

© Ilya Ivanov

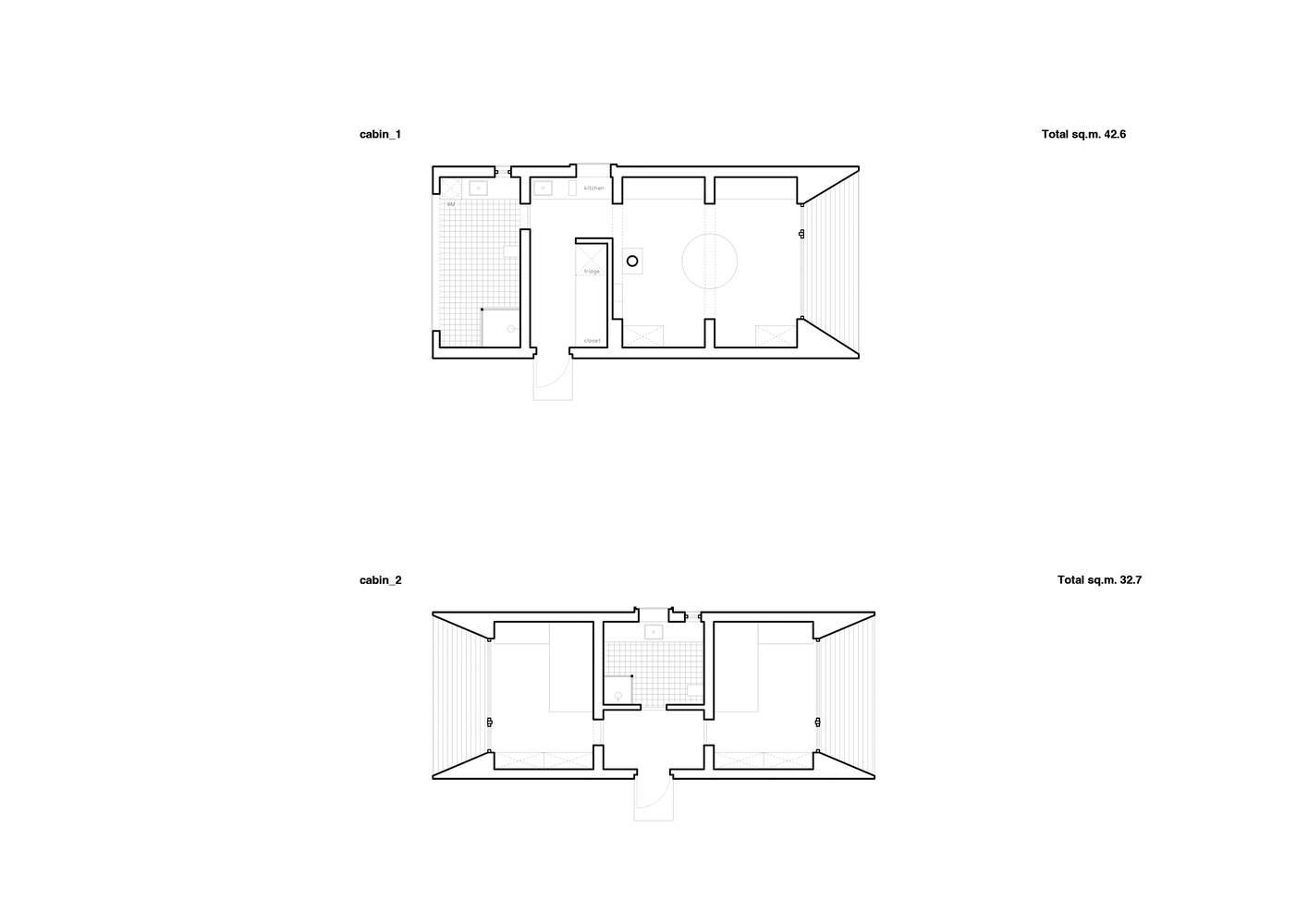
Floor Plan

© Ilya Ivanov

© Ilya Ivanov
这两个小屋有不同的布局,扮演着不同的角色。第一间卧室有两间独立的卧室,有朝东的落地窗,共用一间小浴室。第二间设有小厨房、带图书馆的客厅和通风的浴室,可欣赏到西侧山景的壮丽景色。客厅围绕着一个燃木金属炉旋转,周围是纹理丰富的祖母绿和深蓝色瓷砖。客人可以围坐在壁炉旁,一边坐在带有民族图案的传统毡毯syrmaq上,一边享用着他们的茶碗。瓷砖和地毯都是当地工匠手工制作的。
The two cabins have different layouts and play different roles. The first one has two separate bedrooms with floor-to-ceiling panoramic windows facing east that share a small bathroom. The second one features a kitchenette, a living room with a library, and an airy bathroom with stunning views of the west-side mountainscape.The living room revolves around a wood-burning metal stove surrounded by textured emerald and dark-blue tiles. The guests can gather around the fireplace, enjoying their chiny bowls of herbal tea while sitting down on the syrmaq, a traditional felt carpet with ethnic patterns. Both the tiles and the carpet are handmade by local craftsmen.

© Ilya Ivanov
内部将传统的游牧生活方式与现代设施融为一体:通风、灵活、朴素、环保、实用。除浴室外,其他房间均采用未上漆的胶合板进行防水和防火处理。没有装饰或严格的规则:主人可以通过添加个人珍宝,以任何方式让自己在家里。
The interior blends traditional nomadic lifestyle with modern amenities: it is airy, flexible, austere, eco-friendly, and functional. The rooms, except the bathrooms, are finished with unpainted plywood with water- and fireproof treatment. There are no decorations or strict rules: the owners can make themselves at home in any way they choose by adding their personal treasures.

© Ilya Ivanov