bofumil sendagaya咖啡馆/长坂乔+Schemata建筑师事务所
bofumil sendagaya Café / Jo Nagasaka + Schemata Architects
空间利用的创新与实验:该项目最引人注目的亮点在于其对有限空间的巧妙利用和实验精神。将一个废弃的停车场改造成咖啡馆,体现了对现有建筑的再利用和可持续设计的理念。这种“见缝插针”式的设计策略不仅节约了成本,也为咖啡馆赋予了独特的场所感和故事性。更重要的是,这不仅仅是一个临时的咖啡馆,而是一个进行设计实验的场所,在1:1的比例下研究家具、植物和标牌的布局,这种实践性的设计方法值得推崇。这种试验性质使得设计过程更加灵活,能够根据实际体验进行调整和优化,最终为首尔的旗舰店提供宝贵的经验。
反思与可持续的理念:Bohumil sendagaya项目体现了对咖啡馆发展趋势的反思,并倡导一种更可持续的经营模式。项目跳脱出“高档化”的循环,致力于创造一个“第四波”咖啡文化的空间,强调“随意光顾”的理念,这反映了设计者对社区和消费者的深刻理解。这种对现有建筑的改造,而非推倒重建,本身就蕴含了对环境的尊重和可持续发展的思考。此外,项目还强调了“在保持营业的同时不断被重建”的概念,这种持续改进、迭代更新的设计态度,也为项目注入了活力和生命力,使其更具韧性。
设计语言的简约与实用:该项目的设计风格延续了Schemata建筑师事务所一贯的简约而富有质感的风格。从图片中可以看出,咖啡馆的内部设计简洁明快,注重空间的功能性和实用性,没有过多的装饰,反而突出了材料本身的质感。这种设计手法不仅节省了成本,也营造出一种轻松、舒适的氛围,与“随意光顾”的理念相契合。这种“解构”式的设计理念,将原有建筑的结构、设备等元素直接暴露出来,形成一种独特的工业美学,体现了设计师对空间本质的探索和对材料的尊重,也为咖啡馆增添了独一无二的特色和魅力。

© Takeshi Abe

© Takeshi Abe
建筑师提供的文字描述Bohumil Coffee于2023年5月在韩国首尔开业。自2024年夏天以来,它还在东京Schemata Architect办公室的角落里以Bohumil sendagaya的名义运营。首尔的Bohumil Coffee位于成苏的一座旧钢筋混凝土建筑内,成苏曾是一个工厂区,现已转变为一个拥有咖啡馆、商店和画廊的时尚区。然而,该建筑计划拆除和重建,业主金正在寻找一个地方,在重建期间开设一家临时商店。
Text description provided by the architects. Bohumil Coffee opened in Seoul, South Korea, in May 2023. Since the summer of 2024, it has also operated as Bohumil sendagaya in the corner of Schemata Architect's office in Tokyo. Bohumil Coffee in Seoul is located in an old reinforced concrete building in Seongsu, a former factory district that has transformed into a trendy area with cafes, shops, and galleries. However, the building was slated for demolition and reconstruction, and the owner, Mr. Kim, was looking for a place to open a temporary shop while reconstruction was underway.

© Takeshi Abe

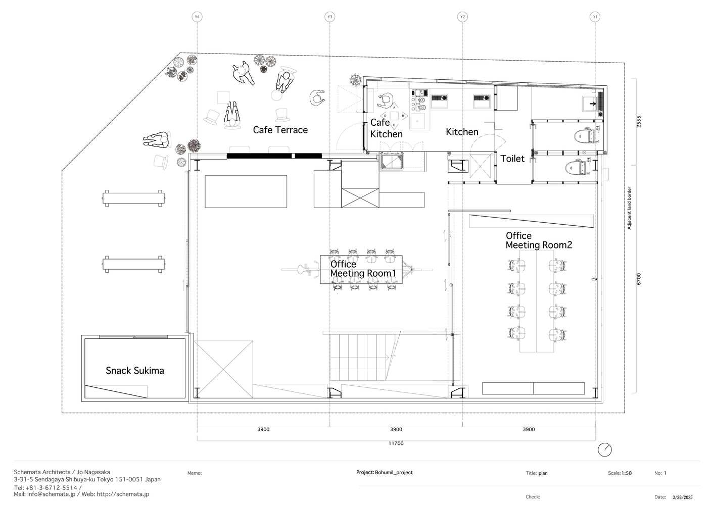
Plan

© Takeshi Abe

© Takeshi Abe
他把目光投向了负责设计成州新楼的Schemata Architects的办公室。Schemata Architects在拐角处的建筑以前是一个固定的批发商仓库。它有一个约3.3平方米的停车位,计划将其改建为咖啡馆,包括面向停车位的厨房。Bohumil商店,包括员工,搬到了大海对岸。
He set his eyes on the office of Schemata Architects, who was in charge of designing the new building in Seongsu. The building of Schemata Architects on the corner site was formerly a stationary wholesaler's warehouse. It has a parking space of about 3.3 m2, and the plan was to convert it into a cafe, including the kitchen that faces the parking space. The Bohumil shop, including the staff, moved here across the sea.

© Takeshi Abe

© Takeshi Abe
金是韩国一家颇受欢迎的咖啡馆Anthracite的创始人。无烟煤代表了第三波咖啡运动,通过翻新旧建筑(如前工厂)创造了时尚的空间。然而,在韩国,容纳时髦租户的建筑变得高档化,十年后价格飙升。Bohumil项目没有陷入这种循环,而是从创建一个“第四波”咖啡爱好者可以随意光顾的地方开始。
Mr. Kim is the founder of Anthracite, a popular cafe in South Korea. Anthracite represents the third-wave coffee movement, creating stylish spaces by renovating old buildings such as former factories. However, buildings that accommodate trendy tenants in Korea become gentrified, and their prices skyrocket after ten years. Instead of getting caught up in this cycle, the Bohumil project began with the idea of creating a "fourth wave" place where coffee lovers could drop in casually.

Sections

© Takeshi Abe

Elevations
Bohumil sendagaya就像一个模拟咖啡馆或为此目的进行研究的地方,在保持营业的同时不断被重建。在现场以1:1的比例研究家具、植物和标牌的布局时,我们正在对Bohumil旗舰咖啡馆进行反复的试验和错误,该咖啡馆最终将在首尔的一座新建筑中重建。我们的实验是将一家小店谨慎地插入现有空间,并将在这里继续一段时间,探索一家小型但可持续的咖啡馆会是什么样子。
Bohumil sendagaya is like a mock-up cafe or a place to conduct studies for this purpose, which is constantly being re-created while remaining open for business. While studying the layout of the furniture, plants, and signage on a 1:1 scale on-site, we are making repeated trials and errors for the Bohumil flagship cafe that will eventually be rebuilt in a new building in Seoul. Our experiment, which inserts a small shop discreetly into an existing space, will continue here for a little longer to explore what a small yet sustainable cafe will be like.

© Takeshi Abe