联排别墅扩建/LAC建筑
Townhouse Extension / LAC Architecture
外观与环境的和谐统一:这座巴黎郊区的联排别墅扩建项目,巧妙地将木制扩建部分融入了周围的环境中。设计师并没有追求突兀的视觉冲击,而是选择了一种低调而谦逊的设计手法。这种“沉默的建筑”在外观上与周围环境融为一体,体现了对原有建筑文脉的尊重。同时,建筑师又赋予了它独特的当代感,在整体和谐中突出了个性。通过对材料、形态、色彩的精心考量,这座扩建项目在不破坏原有氛围的前提下,实现了新与旧的对话,展现了建筑师对环境的深刻理解和对设计细节的精准把握。
空间重塑与功能创新:项目的核心在于对传统居住模式的颠覆。设计师打破了昼夜分明的空间界限,旨在创造一个充满乐趣、友善、开放且不断进化的居住环境。这种设计理念体现在对“去隔间化”和“视觉通透性”的强调。建筑师没有局限于平面上的分割,而是通过对立体空间的巧妙利用,激发了空间的多样性。例如,天窗变成阅读吊床、楼梯平台变身洗衣房和游戏室等,都体现了对空间使用方式的创新。这种设计手法极大地提升了居民的生活品质,赋予了居住空间更多的可能性,体现了建筑师对使用者需求的深刻理解。
材料的节俭与情感的丰富:该项目在材料的选择和运用上展现了建筑师的智慧。通过经济的手段,设计师将“必要”转化为“事件”。在生态友好的理念下,他们充分发挥材料的特性,减少材料的叠加,使楼板成为覆盖物,防水层成为饰面,结构也成为了一种“现代的自然”。这种节俭的材料选择与人际关系的慷慨形成了鲜明对比。建筑虽然显得简约、未完成,却为居住者留下了无限的可能性。这种设计理念既体现了对环境的尊重,也赋予了建筑更多的生命力,使得这座联排别墅扩建项目成为一个充满活力和情感的居住空间。

© Phillipe Billard

© Phillipe Billard
建筑师提供的文字描述该项目涉及巴黎郊区一栋联排别墅的木制扩建。从外面看,这座安静而朴素的建筑融入了周围的环境,同时呈现出一种独特的当代感。
Text description provided by the architects. The project involves a wooden extension of a townhouse on the outskirts of Paris. From the outside, the silent and modest architecture blends into its environment while presenting a singularity that asserts its contemporaneity.

© Phillipe Billard

Section 1

© Phillipe Billard
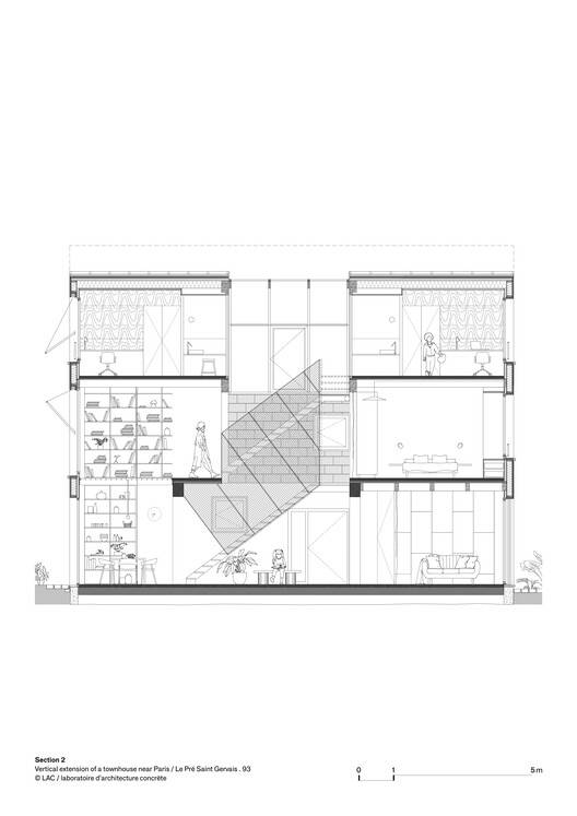
在内部,干预措施质疑了房子的传统程序,即昼夜区分,以提供一个有趣、友好、慷慨、不断发展和负责任的地方。这个想法是通过对去隔室化和视觉疏松的反思,在体积上而不是在地板上工作,以刺激、强化甚至发明用途,提高居民的生活质量。
Inside, the intervention questions the traditional program of the house made of the day/night distinction to offer a fun, friendly, generous, evolving and responsible place. The idea is to work in volume rather than in floors, by engaging in a reflection on the decompartmentalization and visual porosities, to stimulate, intensify or even invent uses and improve the quality of life of the inhabitants.

© Phillipe Billard

© Phillipe Billard
在这里,天窗变成了阅读吊床或投影室,楼梯平台变成了洗衣房和游戏室,客厅看起来像是主卧室的延伸……结构和家具融合在一起,构成了建筑装置。
Here, a skylight becomes a reading hammock or a projection room, the staircase landing becomes a laundry room and games room, the living room appears as an extension of the master bedroom… Structure and furniture then merge to constitute the architectural device.

© Phillipe Billard

Section 2

© Phillipe Billard
物质性是对用途多样性的回应。通过经济手段,它假设必要的东西并将其转化为事件。在生态学方法中,挑战在于最大限度地利用材料的特性来限制它们的叠加。楼板成为覆盖物,防水成为饰面,结构成为现代自然。在材料的节俭和人际关系的慷慨之间,这座建筑显得节俭、未完成,并为可能性留下了空间。
The materiality responds to the versatility of uses. Through an economy of means, it assumes what is necessary and transforms it into an event. In an ecological approach, the challenge is to exploit the properties of materials to the maximum to limit their superposition. A slab becomes a covering, a waterproofing becomes a finish, the structure becomes a modern nature. Between frugality of materials and generosity of relationships, the architecture seems frugal, unfinished and leaves room for possibilities.

© Phillipe Billard
面对特别密集的背景,开口看起来像是精确的切口。尽管开放空间很大,但它们的布局保留了亲密感,突出了用途,并为城市景观定义了框架。
Faced with a particularly dense context, the openings appear as precise incisions. Despite the generosity of the openings, their arrangements preserve intimacy, highlight uses, and define frames towards the urban landscape.

© Phillipe Billard