Roxborough House/gh3*
Roxborough House / gh3*
对历史的尊重与现代化的融合:Roxborough House 项目最引人注目之处在于它巧妙地平衡了对历史建筑的尊重与现代生活方式的需求。设计师gh3*在严格的遗产保护限制下,并未一味复古,而是通过极简主义的美学,巧妙地将新旧元素融合。例如,使用手工模制的砖来覆盖新的外部元素,与原有建筑外墙保持一致,这种对历史文脉的尊重体现在细节之中。同时,内部空间的改造,例如对卧室和起居空间的重新布局,旨在提升空间流动性,满足现代居住的需求。这种对“尊重”与“创新”的平衡把握,是该项目最为突出的亮点。
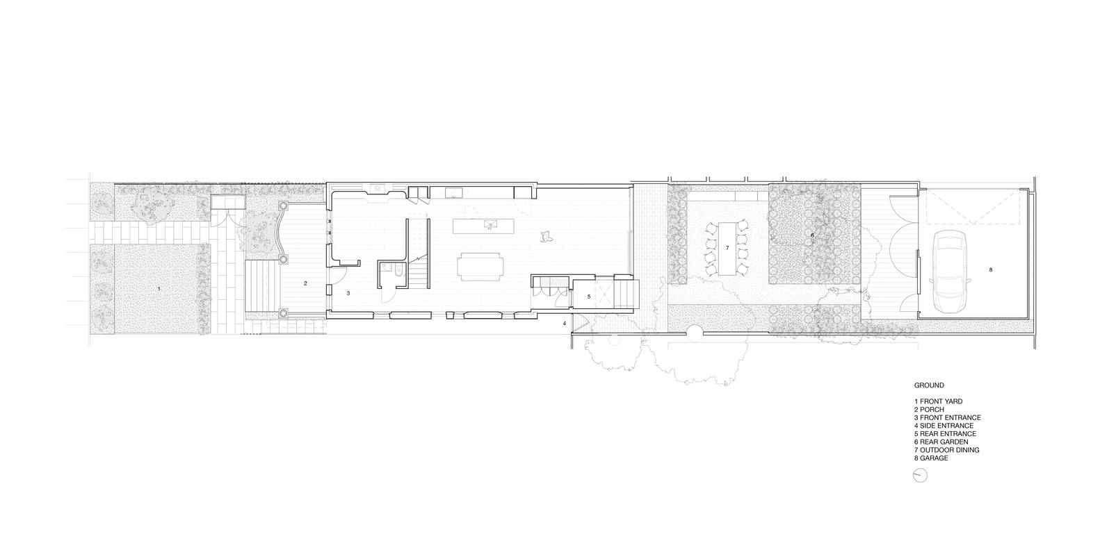
空间关系的精妙处理:该项目在空间关系的塑造上展现了高超的技巧。设计师通过庭院花园的创建,将新建的建筑与原有建筑巧妙地连接起来,形成了一种亲密而私密的空间氛围。车库的设计尤为出色,它不仅满足了功能需求,还通过使用原有房屋的回收材料,与主建筑建立了内在的联系。此外,一楼的重新组织,通过连续的大厅和雕塑般的壁龛,使得日光能够穿透空间,营造出丰富的光影效果,从而增强了空间的表现力。整体空间布局,体现了设计师对建筑、景观与使用者之间关系的深入思考。
材料与细节的卓越运用:在材料的选择和细节的刻画上,Roxborough House 同样体现了卓越的设计理念。设计者强调了简单与本质,例如,皂石厨房岛、拱形餐具室和通往主卧室的深拱形走廊等元素的运用,都体现了对形式和几何形状的统一。这种对材料的精妙运用,使得项目在整体上呈现出一种精致而优雅的质感。同时,对原有建筑元素的解读,例如将窗户从原来的位置解放出来,赋予其新的生命,也体现了设计师对细节的关注和创新。这些细节共同构成了项目独特的视觉语言,提升了建筑的整体品质。

© Raymond Chow

© Raymond Chow
建筑师提供的文字描述Roxborough House位于多伦多专门的遗产保护区之一南罗斯代尔,始建于20世纪20年代。在严格的保护限制下,这座爱德华风格的住宅的翻修带来了挑战,即通过极简主义美学平衡对遗产特征的尊重和客户对现代化的渴望。
Text description provided by the architects. Situated in South Rosedale, one of Toronto's dedicated heritage conservation districts, Roxborough House dates originally from the 1920's. Subject to stringent preservation restrictions, the renovation of this Edwardian style home posed the challenge of balancing deference for heritage character with the client's desire for modernization through a minimalist aesthetic.

© Raymond Chow

© Raymond Chow
手工模制的砖被用来覆盖所有新的外部元素——一栋两层楼的增建建筑和一个车库,都在房子的后面——以保持社区原有的砖石外墙。这两座建筑在体量和高度上都很相似,为新建的庭院花园增添了亮点,使其立即具有亲密感和私密性。使用现有房屋的回收托梁建造车库,在两个结构之间建立了进一步的协同作用。当客户需要时,车库兼作工作室和聚集空间。
Hand-molded brick is used to clad all new exterior elements - a two-story addition and a garage, both to the rear of the house - in keeping with the original masonry facades of the neighborhood. Both structures, similar in massing and height, bookend a newly created courtyard garden, lending it immediate intimacy and privacy. Using reclaimed joists from the existing house to construct the garage establishes a further synergy between both structures. The garage doubles as a studio and congregating space when needed by the client.

© Raymond Chow

Plan - Ground Level

© Raymond Chow
后部扩建扩大了一楼的厨房和起居区,并重新组织了上面的主卧室套房。庭院花园的新家庭入口由拱形结构遮蔽。这包括一个战略性地放置的天窗和窗户,在视觉上连接内外。
The rear addition expands the kitchen and living area on the ground floor and reorganizes the principal bedroom suite above. A new family entrance from the courtyard garden is sheltered by a vaulted structure. This includes a strategically placed skylight and window to visually connect between inside and out.

© Raymond Chow

Plan - Basement
设计纲要要求保持卧室和起居空间的原始数量,同时增强空间流动性。这是通过走廊和中央楼梯的微妙扩建、楼梯中战略性空隙的引入以及全高齐平门的使用来实现的。其结果是,gh3对类似设计挑战的概念反应发生了演变——材料连续性、协调比例和校准光线的内部交织并连接了一系列经过敏感修复、富有想象力地重新配置的遗产。
The design brief called for maintaining the original number of bedrooms and living spaces while enhancing spatial flow. This was achieved by the subtle expansion of hallways and central stairs, the incorporation of strategic voids in the staircase, and the use of full-height, flush doors. The result is an evolution of gh3's conceptual response to similar design challenges - interiors of material continuity, attuned proportions, and calibrated light weave through and connect a portfolio of sensitively restored, imaginatively reconfigured heritage properties.

© Raymond Chow

© Raymond Chow
一楼由一个前后环绕西墙的连续大厅重新组织。这面墙包含了不同基准和高度的原始铅窗,这些铅窗被设置在成形的雕塑壁龛中。其中一些窗户最初是现有楼梯的一部分,现在作为抽象作品从之前的环境中释放出来。通过这些不同的开口发出的日光使空间在一天中切分。
The ground floor is re-organized by a continuous hall that hugs its western wall from front to rear. This wall contains original leaded windows of differing datums and heights set into shaped, sculptural niches. Amongst these are windows that were originally part of the existing staircase, now released from their previous context as an abstract composition. Daylight emitted through these various openings syncopates the space throughout the day.
© Raymond Chow
对简单和基本的强调占主导地位,并在概念上将该项目与gh3的住宅装修工程组合联系起来——元素皂石厨房岛、拱形前厅餐具室、通往主卧室的深拱形走廊——所有元素形式和几何形状都统一了空间、程序和使用。
An emphasis on simple and essential prevails and connects this project conceptually to gh3's portfolio of residential renovation works - the elemental soapstone kitchen island, the arched ante-room pantry, the deep vaulted hallway leading to the principal bedroom - all elemental forms and geometries that unify between space, program and use.
© Raymond Chow
总的来说,这个项目反映了对多伦多历史悠久的住宅建筑的尊重。对历史元素的解读,包括将一些元素从最初的预期用途中解放出来,放大了空间的基本品质,同时保持了房屋、车库和花园之间的紧密联系。Roxborough House综合了gh3对内外方案和空间的抽象和升华的持久关注,与工作室对建筑和景观的综合实践相一致。
Overall, this project reflects a reverence for Toronto's historic residential architecture. The interpretation of historic elements, including the freeing of some from their original intended use, amplifies essential qualities of space while maintaining a strong connection between the house, garage, and garden. Roxborough House synthesizes gh3's enduring preoccupation with the abstraction and distillation of program and space, both inside and out, consistent with the studio's integrated practice of architecture and landscape.
© Raymond Chow