芝加哥艺术学院弗拉克斯曼图书馆翻修/邝冯·格利诺
School of the Art Institute of Chicago Flaxman Library Renovation / Kwong Von Glinow
空间重塑与连通性:这个翻修项目最突出的亮点在于其对图书馆空间的重新定义。通过连接原本独立的五楼和六楼,设计师打破了传统的封闭模式,创造了一个视觉和物理上都高度连通的“开放式图书”环境。中庭的开敞设计是项目的核心,它不仅增加了空间的通透感,更重要的是将图书馆员的工作和馆藏展示在公众视野之中,体现了对知识的开放和透明的态度。这种设计理念颠覆了图书馆作为储藏室的传统印象,使其成为一个更具活力和互动性的学习场所。
结构与光线的巧妙运用:该项目对原有建筑结构的尊重和再利用堪称典范。设计师充分利用了夏普大厦的芝加哥钢框架结构,通过拆除部分结构间的填充物,形成了一个引人注目的中庭空间。照明设计与原始结构巧妙结合,线性灯具强调了天花板内的钢架位置,倾斜放置的灯具则呼应了被拆除的粘土瓦。这种对原有结构的再诠释,不仅赋予了空间独特的工业美学,也体现了对历史建筑的尊重和再创造。此外,自然光线的引入也是该项目的一大亮点,通过南立面的大面积采光,将自然光渗透到Corridor+的最深处,营造出舒适宜人的阅读环境。
功能与美学的和谐统一:项目在功能性和美学之间取得了出色的平衡。新的Corridor+不仅增加了1000平方英尺的学习空间,还通过锯齿形墙壁和灵活的布局,为学生提供了多样化的学习环境。楼梯的设计则体现了对材料和工艺的极致追求,钢板和标准角钢的组合,展现了简洁而坚固的工业美学,而悬浮的视觉效果和橡木扶手的运用,则为空间增添了温暖的质感。整个项目在改造过程中既注重了实用性,又充分考虑了视觉效果,实现了功能和美学的完美融合,创造了一个既高效又令人愉悦的图书馆空间。

© Mikael Olsson

© Mikael Olsson
建筑师提供的文字描述芝加哥艺术学院弗拉克斯曼图书馆翻修项目从根本上提出了一种“开放式图书”的图书馆空间体验方法,通过连接两个以前孤立的楼层,创造一个视觉和物理上相互连接的空间,在这个空间里可以看到馆藏和保存这些馆藏的图书馆员的工作。
Text description provided by the architects. The School of the Art Institute of Chicago Flaxman Library renovation project radically proposes an "open book" approach to the spatial experience of the library by connecting two previously siloed floors to create one visually and physically connected space where the collections and the work of the librarians preserving those collections are on view.

© Mikael Olsson

Diagram

© Mikael Olsson
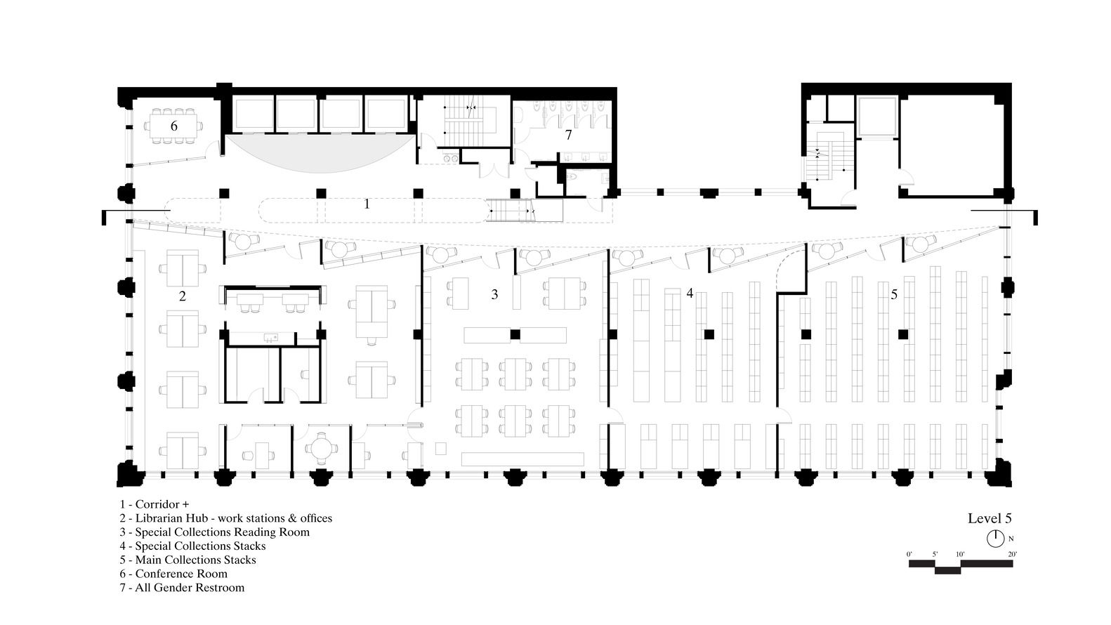
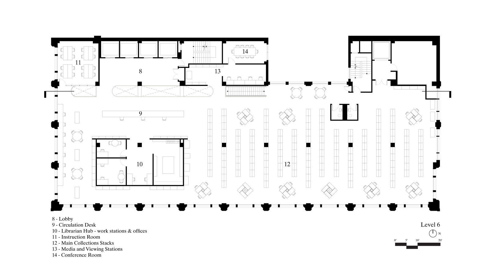
作为一所位于芝加哥市中心的艺术学校,学校的各种锚定课程必然位于整个学校城市校园高层建筑的不同楼层。在翻修之前,这座两层楼的图书馆的每一层都是独立运作的:五楼是特别收藏区和图书管理员区,位于一条不透明的蜿蜒走廊后面,没有自然光,而六楼是主要收藏区,除了电梯和出口楼梯外,没有通往下面楼层的通道。
As an art school located in the heart of Chicago, the various anchor programs of the school are necessarily located on different levels in tall buildings throughout the school's urban campus. Prior to the renovation, each floor of the two-story library operated independently from each other: the fifth floor housed Special Collections and librarian areas behind an opaque winding corridor with no natural light, while the sixth floor housed the Main Collection with no access to the floor below besides elevators and egress stairs.

© Mikael Olsson

Plan - Level 05
翻修项目是在Holabird&;amp;amp;NBSP;Ltd.于1902年建造的历史悠久的夏普大厦的给定楼板的限制下进行的;罗氏建筑师事务所通过展示原始芝加哥钢框架结构的独创性。在结构梁之间拆除了一个扁平的粘土瓦拱门,在5楼和6楼之间创造了一个狭窄而宽敞的中庭,宽5'-0“,长100'-0”,中间点缀着建筑的原始横梁。照明设计同样与原始结构有关:两排线性灯具突出了天花板夹层内钢架的位置,而中庭上方倾斜放置的灯具则参考了被拆除的钢架之间的粘土瓦。
The renovation project works with the constraints of the given floorplates in the historic 1902 Sharp Building by Holabird & Roche Architects by exposing the ingenuity of the original Chicago steel-frame structure. A flattened clay tile arch is removed between structural beams to create a narrow yet expansive atrium between the 5th and 6th floors that is 5'-0" wide and 100'-0" long, punctuated by the original cross beams of the building. The lighting design likewise relates to the original structure: two lines of linear fixtures highlight the location of the steel frame within the ceiling sandwich, while the obliquely placed fixtures above the atrium reference the clay tile between the steel frame that was removed.

© Mikael Olsson
在形成两层垂直连接的中庭下方是新形成的Corridor+:一个用于流通和出入的空间,以及半私人学生阅读角。平缓弯曲的Corridor+延伸了150英尺长的建筑,将所有安全的图书馆空间推到了地板的南面。在弯曲的横梁下面是锯齿形的墙壁,以适应灵活的学习空间。一侧的玻璃店面让学生可以看到图书馆的存储和工作区。与此同时,自然光从南立面照射到Corridor+的最深处。图书馆项目的透明度揭示了图书馆员和图书馆本身的重要工作。
Below the atrium that forms the vertical connection between the two levels is the newly formed Corridor +: a space for circulation and access as well as semi-private student reading nooks. The gently curving Corridor + runs the length of the 150-foot-long building, pushing all of the secured library spaces to the south of the floorplate. Underneath the curving transom are sawtooth walls to accommodate flexible study spaces. Glazed storefronts on one side allow students to see into the library storage and working areas. At the same time, natural light makes its way from the south facade to the deepest space of the Corridor +. This transparency of the library program sheds light on the important work of the librarians and the library itself.

© Mikael Olsson

Plan - Level 06

© Mikael Olsson

© Mikael Olsson
新的Corridor+增加了1000平方英尺的学生学习区,同时更有效地重新组织书架,同时增加了额外的书架。该项目的设计结合了走廊+横梁的扫掠曲线的柔软性和形成阅读角的三角锯齿。
The new Corridor + adds 1,000 square feet for student study areas, while re-organizing the stacks more efficiently to simultaneously gain additional bookshelves. The design of the project brings together the softness of the sweeping curve of the Corridor + transom and the triangle sawtooths that form the reading nooks.

© Mikael Olsson
由½英寸钢板和现成标准角钢制成的新楼梯将5层和6层物理连接在一起。楼梯表面涂有天然光泽和透明涂层,显示了简单楼梯的制造过程,包括所有焊接接头。楼梯由中心柱支撑离地½;英寸,看起来像是浮动的。白色橡木扶手排列在原本黑暗的楼梯内部。
A new stair made of ½" steel plate and off-the-shelf standard angles connects Level 5 and Level 6 together physically. The stair is finished with a natural patina and clear coat that shows the fabrication process, including all weld joints, of the simple stair. The stair is held off the ground by ½" by a central column to appear as if it is floating. White Oak handrails line the interior of the otherwise dark staircase.

© Mikael Olsson

© Mikael Olsson
该项目通过创造更多的社区空间、增加自然光、建立更大、更高效的存储空间、为班级和个人研究人员创建灵活的阅览室、增加容量,以及在图书馆楼层之间建立视觉和物理连接,改善了两层图书馆,使图书馆更容易导航,馆藏更容易访问。
The project improved the two-level library by creating more community space, increasing natural light, establishing larger and more efficient storage, creating a flexible Reading Room for classes and individual researchers, increasing capacity, and not least creating a visual and physical connection between the floors of the library, making the library easier to navigate and the collections more accessible.

© Mikael Olsson