Cuu办公室/Koyori
Cuu Office / Koyori
设计理念的革新:该项目最令人印象深刻的亮点在于其对设计理念的深刻反思。面对日益增长的建筑成本,项目没有选择传统的大规模翻新或新建,而是探索了更贴近生活、更易于实现的改造方式。这种对现有空间的重新利用,并融入多种功能,如室内设计咨询、餐饮体验、生活方式商品展示以及展览活动等,体现了设计师对“可持续设计”的深刻理解。它不仅仅是物理空间的设计,更是一种生活方式的提案,旨在激发人们对日常生活的发现与乐趣。这种以人为本的设计哲学是项目最为核心的精髓。
空间设计的精巧与和谐:项目的空间设计体现了对光线、材质和结构的巧妙运用。开放式的布局,配合窗帘的运用,使自然光得以柔和地漫射,营造出温馨舒适的氛围。精心准备的墙面、和纸的运用以及地毯的选择,都体现了对细节的关注,并赋予空间多功能性。更值得称道的是,设计师保留了建筑45年历史的结构,拥抱其自然老化和不完美,赋予了空间独特的个性和历史感。这种对“时间”和“记忆”的尊重,使得空间在现代设计中独树一帜,展现出一种永恒的魅力,创造出一种真实感和亲和力。
多重功能的融合与创新:项目将多种功能巧妙地融合在一个空间内,创造出一种充满活力和互动性的场所。这种“沙龙”式的设计,不仅满足了商业需求,更营造了一种社区感和社交氛围。通过提供多元化的服务,包括咨询、餐饮、商品展示和活动举办等,激发了访客对生活方式的探索和思考。这种多功能性的设计,打破了传统空间的界限,赋予了建筑更丰富的内涵和可能性。这体现了设计师对空间价值的深度挖掘,也为未来城市空间的设计提供了新的思路和启示。这种创新性的设计理念,是项目成功的关键。

© Junichi Usui

© Junichi Usui
建筑师提供的文字描述这个项目标志着我们京都办事处的更新,成为启动新企业的空间。随着近年来建筑成本的上升,除了少数人外,新建和大规模翻修对所有人来说都变得越来越困难。作为回应,我们试图探索更容易接近和平易近人的方式来丰富日常生活,从而发起了这一倡议。
Text description provided by the architects. This project marks the renewal of our Kyoto office as a space to launch new ventures. With rising construction costs in recent years, new builds and large-scale renovations have become increasingly difficult for all but a select few. In response, we sought to explore more accessible and approachable ways to enrich everyday living, leading to the launch of this initiative.

© Junichi Usui

© Junichi Usui
具体来说,该空间是一个沙龙,提供室内设计咨询、季节性餐饮体验和生活方式建议。它还精选了一系列生活方式商品、工艺品、艺术品、香水、书籍和相关待售商品。此外,它还可以作为展览和研讨会的活动空间。通过这种多样化的服务,我们的目标是激发游客在日常生活中的发现和快乐。
Specifically, the space serves as a salon offering interior design consultations, seasonal dining experiences, and lifestyle proposals. It also features a curated selection of lifestyle goods, crafts, artworks, fragrances, books, and related items for sale. Additionally, it functions as an event space for exhibitions and workshops. Through this diverse range of services, we aim to inspire discovery and joy in the daily lives of our visitors.

© Junichi Usui

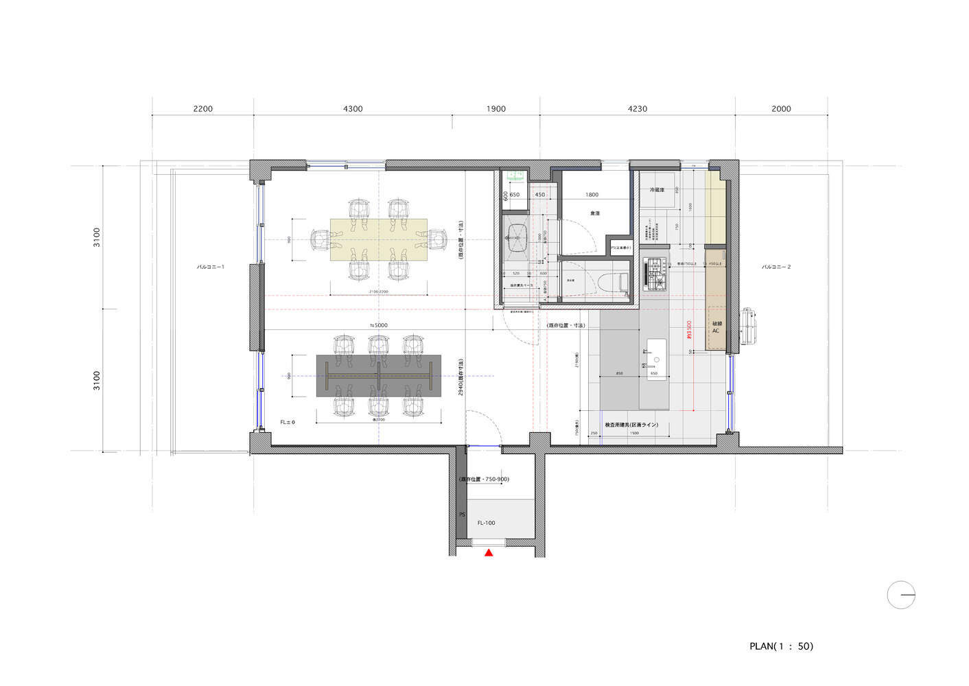
Plan

© Junichi Usui
空间设计避免了隔断,让自然光柔和地穿过窗帘,充满整个区域。为了方便展览和活动,墙壁经过精心准备,可供实际使用,而和纸则能温和地漫射光线,铺有地毯的地板能提供脚下的温暖。该建筑有45年历史的结构被有意保留下来,庆祝其自然老化和不完美作为设计的组成部分。我们没有掩盖时间的磨损,而是拥抱了它的光泽和质地,唤起了一种真实感和永恒的个性。我们希望这个空间能为所有来访者的生活和心灵增添新的色彩和丰富性。
The spatial design avoids partitions, allowing natural light to softly diffuse through curtains and fill the entire area. To facilitate exhibitions and events, the walls are thoughtfully prepared for practical use, while washi paper gently diffuses light, and carpeted floors provide warmth underfoot. The building's 45-year-old structure has been intentionally preserved, celebrating its natural aging and imperfections as integral elements of the design. Rather than concealing the wear of time, we embraced its patina and texture to evoke a sense of authenticity and timeless character. We hope this space will add new color and richness to the lives and hearts of all who visit.

© Junichi Usui