Ergon面包房/城市灵魂项目
Ergon Bakehouse / Urban Soul Project
设计理念与主题的深度融合:Ergon Bakehouse项目最令人印象深刻的亮点在于其对“面团生命周期”这一主题的深刻诠释。建筑师并未仅仅停留在表面装饰,而是将这一主题贯穿于整个空间的设计中,从材料的选择、空间的布局到功能的分区,都围绕着面团的制作过程和传统面包店的氛围展开。这种深度融合使得项目具有了独特的叙事性,让顾客在享受美食的同时,也能感受到一种关怀和传统的温暖。例如,耐火砖、亚麻布等材料的运用,营造出温馨质朴的氛围,与面包烘焙的主题相得益彰。
历史建筑的巧妙改造与传承:项目的另一个关键在于对历史建筑的尊重和改造。建筑师在保留原有建筑的结构和特征的基础上,巧妙地融入了现代设计元素。保留石膏装饰、楼梯、电梯等原始结构,是对历史的尊重和对建筑文脉的传承。同时,通过对空间的重新规划和功能分区的调整,赋予了建筑新的生命力,使之更好地适应了现代生活的需求。这种新旧融合的设计手法,不仅提升了项目的文化价值,也使得Ergon Bakehouse在众多现代建筑中脱颖而出,展现出独特的魅力。
多元功能与统一体验的平衡:Ergon Bakehouse成功地融合了面包房、零售空间、餐厅和酒店多种功能,但同时保持了整体的统一性。这种统一性得益于设计主题的明确和材料的统一运用。项目的视觉语言清晰,材质的选择呼应了烘焙的主题,营造出和谐统一的空间氛围。此外,酒店客房的设计也延续了这一主题,通过艺术品、家具的选择以及空间布局,将舒适的居住体验与烘焙工艺完美结合。这种对多元功能和统一体验的平衡,体现了设计师对空间规划和用户体验的深刻理解。

© Mirto Iatropoulou / Mia Dorier

© Mirto Iatropoulou / Mia Dorier
建筑师提供的文字描述一个制作和烘焙糕点的地方,一个零售空间,一家餐馆和住宿,都在雅典市中心。Ergon Bakehouse是一个多层次的酒店项目,由诱人的面团香气统一起来——这是一种关怀的符号象征。从入口到房间,Urban Soul Project建筑师的设计围绕面团的生命周期和传统面包店的氛围展开。
Text description provided by the architects. A place for making and baking pastries, a retail space, an eatery, and accommodation, all in the heart of Athens. Ergon Bakehouse is a multi-level hospitality project, unified by the enticing aroma of dough—a semiotic symbol of care. From the entrance to the rooms, the design by Urban Soul Project architects revolves around the life cycle of the dough and the ambiance of a traditional bakery.

© Mirto Iatropoulou / Mia Dorier

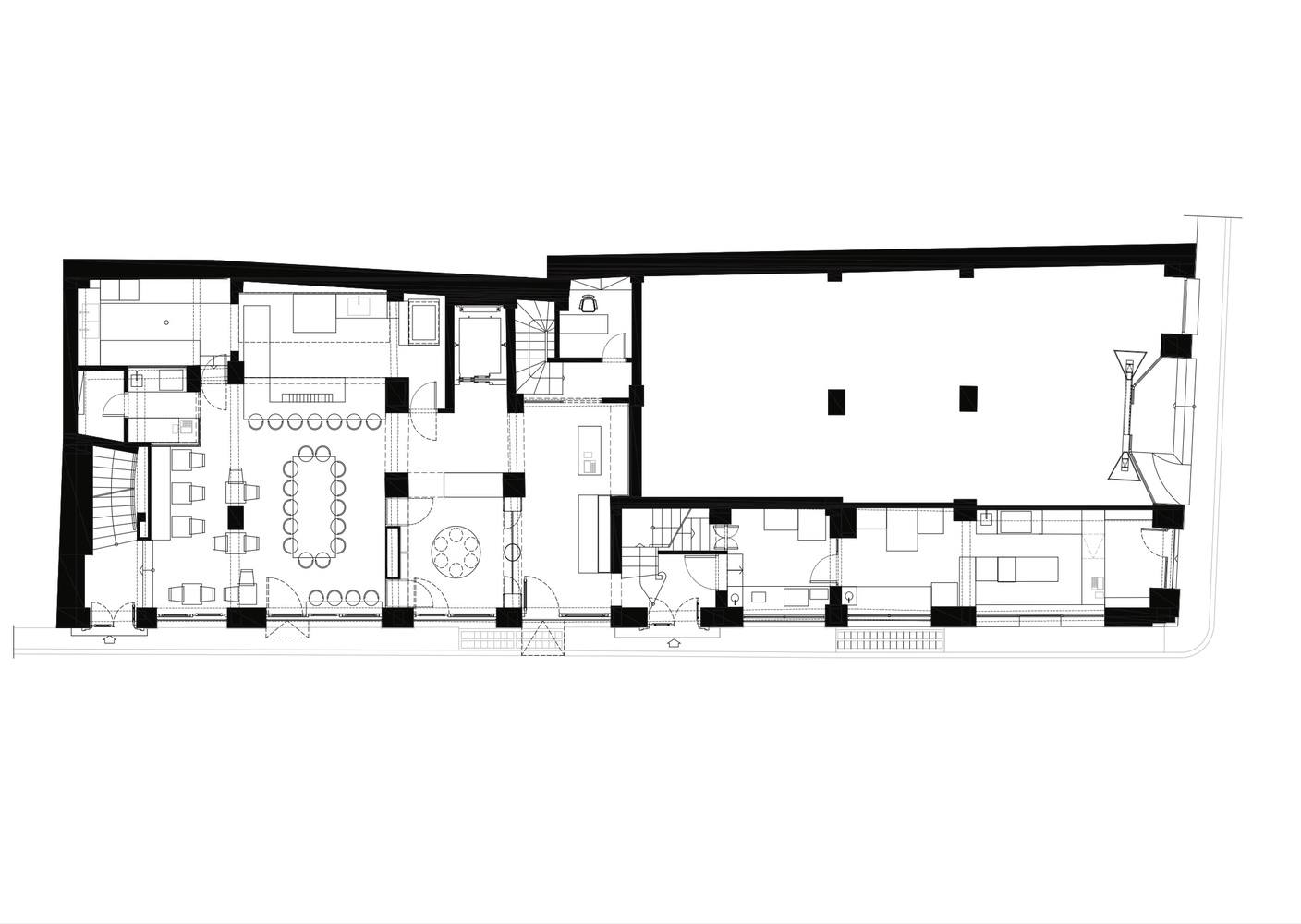
Ground Floor Plan - Restaurant I Bakery

© Mirto Iatropoulou / Mia Dorier
Ergon Bakehouse是雅典的一个多层次酒店项目,结合了面包房、零售空间、餐馆和酒店,所有这些都受到烘焙艺术和工艺的启发。
Ergon Bakehouse is a multi-level hospitality project in Athens that combines a bakery, a retail space, an eatery, and a hotel, all inspired by the art and process of baking.

© Mirto Iatropoulou / Mia Dorier
Ergon Bakerhouse的建筑和设计:Ergon Bakerouse位于20世纪初由Vassilis Tsagris设计并由Urban Soul Project建筑师改造的遗产建筑中。该设计保留了建筑的原始特征,如石膏装饰、楼梯和电梯,并添加了反映面团生命周期和传统面包店氛围的元素,如耐火砖、墙板、不锈钢柜台和亚麻布。
The architecture and design of Ergon Bakehouse: Ergon Bakehouse is located in a heritage building designed by Vassilis Tsagris in the early 20th century, and adapted by Urban Soul Project architects. The design preserves the original features of the building, such as the plaster decorations, the staircase, and the elevator, and adds elements that reflect the life cycle of the dough and the ambiance of a traditional bakery, such as firebrick, wall paneling, stainless steel counters, and linen fabrics.

© Mirto Iatropoulou / Mia Dorier

Floor Plan - Hotel Rooms

© Mirto Iatropoulou / Mia Dorier

© Mirto Iatropoulou / Mia Dorier
72H手工烘焙坊:72H手工面包坊是Ergon烘焙坊的核心,在这里,面包和糕点在休息72小时后被准备和烘焙。这家面包店由首席创意面包师Nikos Chandolias和糕点师Martin Kitan领导,他们创造了融合传统与现代的创新甜点。客人可以看到面包店的活动,他们可以在零售空间、烘焙区或72H Lab享用产品。
The 72H Artisanal Bakery: The 72H Artisanal Bakery is the core of Ergon Bakehouse, where bread and pastries are prepared and baked after resting for 72 hours. The bakery is led by head creative baker Nikos Chandolias and pastry chef Martin Kitan, who create innovative confections that blend tradition and modernity. The bakery's activities are visible to the guests, who can enjoy the products in the retail space, the baking area, or the 72H Lab.

© Mirto Iatropoulou / Mia Dorier
酒店的概念和客房:酒店的概念通过结合芳香气味的感官愉悦、29间设备齐全的客房的舒适性以及通过公共空间建立的文化和社会联系,为大都市生活提供了一种全新的方式。客房宽敞,配有一张名为“onda”的深凹沙发,既可作为额外的床,又可作为休息区。房间装饰着Stratis Tavlaridis和Nikos Handolias的艺术品,灵感来自烘焙工艺。
The hotel's concept and rooms: The hotel's concept offers a fresh take on metropolitan living, by combining the sensory pleasure of aromatic scents, the comfort of 29 well-appointed rooms, and the cultural and social connections through its public spaces. The rooms are spacious and feature a deep, recessed sofa called "onda", which serves as both an additional bed and a lounge area. The rooms are decorated with artwork by Stratis Tavlaridis and Nikos Handolias, inspired by the craft of baking.
© Mirto Iatropoulou / Mia Dorier