舞阳文化站/WAU设计
Wuyang Cultural Station / WAU Design
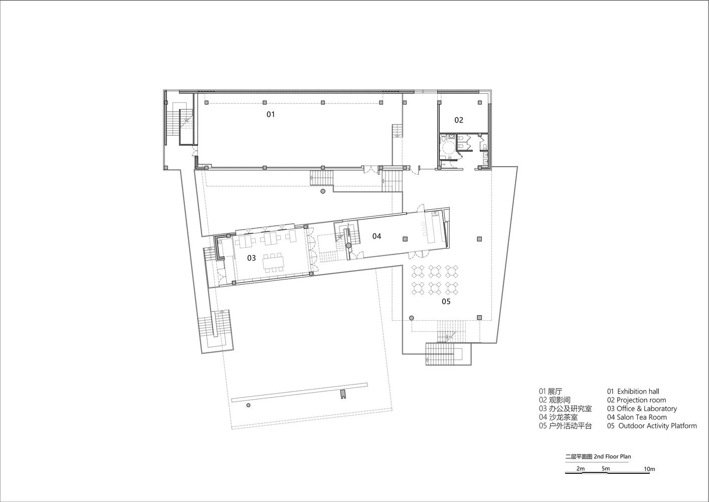
空间与功能的融合:舞阳文化站的设计巧妙地将功能与空间结合,通过紧凑的L形布局和双向单坡屋顶,创造出自然“风廊”,实现了高效通风并连接海岸线。这种设计不仅满足了文化中心的功能需求,还通过半室外走廊和共享屋檐下的空间,增强了建筑的连通性和互动性,为访客提供了独特的空间体验。
文化与历史的表达:项目通过空间原型和材料选择深刻地表达了文化记忆。低檐、上升的台阶和屋顶设计唤起了传统寺庙的情感空间,而入口屏风上的明代古砖和古城墙遗址则通过“考古展览”的叙事揭示了场地的历史层次。这种设计策略不仅展现了当地的历史文化底蕴,还为乡村振兴注入了文化认同。
经济与可持续性:在经济和可持续性方面,舞阳文化站采用了“低技术”建筑方法,如使用熟悉的材料和剩余材料,降低了建设成本。例如,压型镀锌钢板既用于天花板又作为屋顶表面,减少了脚手架成本。这种设计不仅保留了传统住宅的质感,还增强了当代农村生活的公共性,为乡村振兴提供了可持续的建筑范例。

© Siming WU

© Siming WU
建筑师提供的文字描述舞阳文化站位于广东湛江沿海小镇舞阳,有着千年悠久的历史,旨在庆祝该镇的历史和文化遗产,同时振兴当地文化认同——乡村振兴的中心主题。为了促进这一愿景,政府在镇政府庭院的北段指定了一块土地用于建设文化中心。该中心将配备各种设施,包括历史文化展览馆、临时展览空间、会议室和图书馆。该遗址本身形状不规则,西面和北面以村庄线为界,东面向该镇的主要街道舞阳第一街延伸。
Text description provided by the architects. Situated in Wuyang, a coastal town in Guangdong's Zhanjiang area with a rich history spanning over a thousand years, the Wuyang Cultural Station aims to celebrate the town's historical and cultural heritage while revitalizing local cultural identity—central themes in rural revitalization. To facilitate this vision, the government has designated a plot of land in the northern section of the town government courtyard for the construction of a cultural center. This center will feature diverse facilities, including a historical and cultural exhibition hall, temporary exhibition spaces, conference rooms, and a library. The site itself has an irregular shape, bordered by village lines to the west and north, and extending toward Wuyang First Street, the town's main thoroughfare, to the east.

© Siming WU

© Siming WU
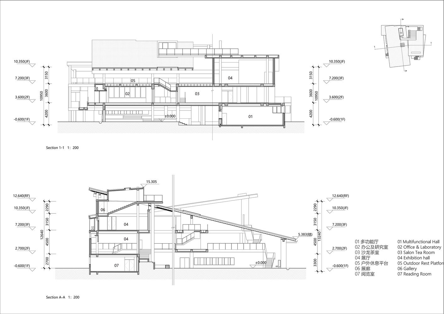
在建筑上,该设计采用了双向单坡屋顶,两个倾斜表面形成16度角,与东部和西部边界对齐。功能空间沿着村庄边界以紧凑的L形布局排列,创造了一个作为自然“风廊”的开放区域,促进了高效通风,并直接与海岸线相连。这些功能单元统一在一个共享屋檐下,天花板高度不同,半室外走廊增强了连通性。海风拂过屋檐,营造出一种清新的氛围,让人想起“打开窗户迎接微风”
Architecturally, the design incorporates a dual-direction single-slope roof, with the two inclined surfaces forming a 16-degree angle that aligns with the eastern and western boundaries. The functional spaces are arranged in a compact L-shaped layout along the village borders, creating an open area that acts as a natural "wind corridor," facilitating efficient ventilation and connecting directly to the coastline. These functional units are unified under a shared eave, with varying ceiling heights and semi-outdoor corridors enhancing connectivity. The sea breeze flows beneath the eaves, creating a refreshing ambiance reminiscent of "opening windows to welcome a gentle breeze."

© Siming WU

© Siming WU

© Siming WU
该项目采用了一种“将整体划分为部分”的设计策略,在应对气候条件的同时,减轻了更大体积可能引起的机构感觉。这种方法促进了文化站和周围自建房屋之间的和谐对话。宽敞的屋顶下的半室外空间让游客在室内和室外环境之间无缝流动,将日常生活与历史反思联系起来。天花板高度的细微变化提供了一种邀请探索的三维体验,被描述为“登上平台欣赏大海”。蜿蜒的小径在视觉上将自建房屋群与附近的南城门遗址连接起来,增强了该遗址的历史叙事。半室外走廊和高架广场共同构成了一个社区“文化站”,支持各种活动,如市场、茶会和展览,为当地的日常生活注入活力。
Employing a design strategy that "divides the whole into parts," the project responds to climatic conditions while mitigating the institutional feel that larger volumes might evoke. This approach fosters a harmonious dialogue between the cultural station and the surrounding self-built homes. The semi-outdoor spaces beneath the expansive roof allow visitors to flow seamlessly between indoor and outdoor environments, bridging everyday life with historical reflections. Subtle variations in ceiling height offer a three-dimensional experience that invites exploration, described as "ascending a platform to view the sea." Meandering pathways visually connect the cluster of self-built homes with the nearby South City Gate ruins, enhancing the site's historical narrative. Together, the semi-outdoor corridors and an elevated plaza form a community "cultural station" that supports a variety of activities, such as markets, tea gatherings, and exhibitions, invigorating the local daily life.

© Siming WU

© Siming WU
建筑师通过空间原型表达文化记忆:面向主街的低檐唤起了寺庙门廊的意象,而上升的台阶和升高的屋顶则反映了传统寺庙的情感空间技巧。屋顶的钢结构和混凝土主体之间的分离允许表达结构元素,巧妙地参考了祠堂的木结构。入口屏风上装饰着836块明代古砖,其下是古城墙遗址,通过“考古展览”的叙事揭示了遗址的历史层次。
The architects express cultural memory through spatial prototypes: the lowered eaves facing the main street evoke the imagery of a temple porch, while the ascending steps and elevated roof reflect the emotive spatial techniques of traditional temples. The separation between the steel structure of the roof and the concrete body allows for the expression of structural elements, subtly referencing the timber construction of ancestral halls. The entrance screen is adorned with 836 ancient Ming Dynasty bricks, beneath which lies the site of an old city wall, revealing the historical layers of the site through an "archaeological exhibition" narrative.

Floor Plan

Section
为了与当地环境保持和谐,建筑采用了熟悉的材料,如红砖、水洗水磨石、瓷砖和镀锌钢板。经济考虑是该项目不可或缺的一部分:天花板中使用的压型镀锌钢板也用作屋顶表面,降低了脚手架成本,而青石石板瓦则来自景观美化项目的剩余材料。这些“低技术”的建筑方法不仅保留了传统住宅的质感,还增强了当代农村生活的公共性。
To maintain harmony with the local environment, the construction employs familiar materials such as red brick, washed terrazzo, tiles, and galvanized steel plates. Economic considerations are integral to the project: the profiled galvanized steel plates used in the ceiling also serve as the roofing surface, reducing scaffolding costs, while the bluestone slate tiles come from leftover materials from landscaping projects. These "low-tech" construction methods not only preserve the texture of traditional dwellings but also enhance the public character of contemporary rural life.

© Siming WU

© Siming WU