Kimitsu House/ROOVICE
Kimitsu House / ROOVICE
项目亮点:该项目最引人注目的亮点在于其对历史建筑的尊重与现代生活需求的巧妙融合。设计师没有选择大刀阔斧的改造,而是深入研究了原有建筑的结构、材料和历史文化价值。例如,对库拉(kura)的修复和改造,不仅保留了其原有的结构和功能,还通过新的设计手法赋予其新的生命力,使其成为住宅的视觉焦点。同时,项目对天然材料(如木材、石头)的运用,也体现了对当地传统工艺的尊重,使得整个建筑散发出一种独特的历史韵味。这种在尊重历史的基础上进行适度更新的设计理念,是该项目最值得称道的亮点。
设计精髓:该项目的精髓在于其“最小干预”的设计策略。设计师避免了对原有建筑的大规模破坏,而是通过精心的细节处理来实现空间功能的提升和美学价值的升华。例如,通过拆除不必要的隔断,开放空间,引入光线,改善了室内布局的流畅性和通透性;对墙面、地板等细节的处理,也体现了设计师对材料质感和色彩搭配的精准把握。这种“以小见大”的设计手法,不仅节约了成本,也最大限度地保留了建筑的原有特色,使新与旧完美融合。此外,项目也体现了对可持续设计的关注,通过对旧建筑的修复和再利用,减少了资源浪费,符合可持续发展的理念。
空间创新:该项目在空间创新方面也展现出独到之处。设计师打破了传统住宅的布局限制,创造了更开放、灵活的生活空间。例如,将厨房与起居室相连,增强了互动性;在二层,通过对榻榻米的翻新和装饰壁龛的改造,赋予空间新的功能和活力。对库拉的改造也是一个亮点,通过改造入口、增加窗户,使其成为连接室内外空间的纽带,并与主建筑形成视觉上的呼应。这种空间创新不仅仅是功能的提升,更是一种生活方式的转变,体现了设计师对现代生活方式的深刻理解和对空间运用的独到见解。总而言之,该项目在空间创新方面,既尊重了传统,又融入了现代元素,实现了功能与美学的完美统一。

© Akira Nakamura

© Akira Nakamura
20世纪60年代Kimitsu木屋的翻修:用微妙的现代化拥抱历史-这座60年代的木屋位于千叶宁静的Kimitsu地区,在主人决定进行翻修之前已经空置了几年。起初,他亲自尝试这项工作,很快意识到这个项目需要比他所能管理的更多的时间和奉献精神。希望看到房子再次被使用和欣赏,他转向了Roovice的Kariage倡议,该倡议有助于在尊重空置房产历史的同时为其带来新的活力。通过免费振兴这些空间,该倡议为日本日益严重的空置住宅问题提供了切实可行的解决方案。
Renovation of a 1960s Wooden House in Kimitsu: Embracing History with Subtle Modernization – Located in the serene Kimitsu area of Chiba, this 1960s wooden house had been vacant for several years before its owner decided to take on its renovation. Initially attempting the work himself, he soon realized the project required more time and dedication than he could manage. Wanting to see the house used and appreciated again, he turned to Roovice's Kariage initiative, which helps bring new life to vacant properties while respecting their history. By revitalizing these spaces at no cost to owners, the initiative offers a practical solution to Japan's growing akiya (empty dwellings) problem.

© Akira Nakamura
一个有故事的地方——Kimitsu的房子反映了该地区的传统工艺,其结构强调木材和石头等天然材料。这座房子基本上没有被破坏,保留了许多原始特征,包括kura——一种传统的存储结构,通常用石砖或瓷砖建造,并用铁门加固,旨在保护贵重物品免受火灾。翻修的目标不是做出剧烈的改变,而是突出和保留这些特征,同时使空间更适合当代生活。
A Place with a Story – The Kimitsu house reflects the traditional craftsmanship of the region, with a structure that emphasizes natural materials such as wood and stone. The house had remained largely untouched, preserving many original features, including a kura—a traditional storage structure typically built with stone bricks or tiles and reinforced with iron doors, designed to protect valuables from fire. Rather than make drastic changes, the goal of the renovation was to highlight and preserve these features while making the space more adaptable for contemporary living.

© Akira Nakamura
振兴库拉和扩建工程——仓库大楼的入口部分被多年来建造的扩建工程所掩盖。为了突出其令人印象深刻的双门,扩建部分后来增加的滑动门被新墙所取代,立面上还切割了一扇2米×2米的固定窗。这为库拉及其重新粉刷的入口门提供了框架,使其成为引人注目的焦点和家庭的决定性元素。在里面,在原来的泥土地板上,我们安装了一块用灰色EP擦拭涂层完成的落叶松胶合板地板。kura扩建部分的侧壁上使用了透明的波纹聚碳酸酯板,允许更多的自然光进入,同时保持与周围环境的连接。
Revitalizing the Kura and Extension – The storage building had its entrance partially concealed by an extension built over the years. To highlight its impressive double doors, the later-added sliding doors of the extension were replaced with a new wall, and a 2m × 2m fixed window was cut into the facade. This frames the kura and its newly repainted entrance doors, making them a striking focal point and a defining element of the home. Inside, on top of the original soil floor, we installed a larch plywood flooring finished in a grey EP wipe-off coating. Clear corrugated polycarbonate sheets were used on the lateral wall of the kura's extension, allowing more natural light to filter in while maintaining a connection to the surrounding environment.

© Akira Nakamura
为了提高空间的功能性,库拉和主楼之间的原始分隔被拆除,创造了更灵活的布局。分隔库拉入口和主楼的墙壁被拆除,延伸入口的地板用砂浆粉刷。一楼起居区楼梯下的新开口将空间与主起居区连接起来,为kura的使用开辟了新的可能性。
To improve the functionality of the space, the original division between the kura and the main house was removed, creating a more flexible layout. The wall separating the entrances to the kura and the main house was taken down, and the floors of the extended entrance were finished with mortar. A new opening beneath the staircase in the living area on the first floor connected the space to the main living area, opening up new possibilities for the usage of the kura.

© Akira Nakamura

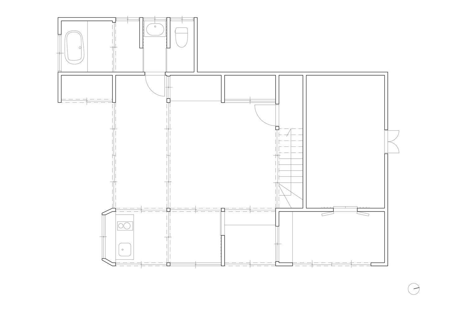
First Floor Plan (Before)

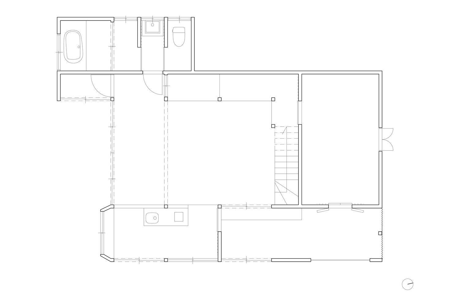
First Floor Plan (After)

© Akira Nakamura
现代生活的新布局——在一楼,隔断被拆除,以创造一个更开放的生活空间。曾经封闭的楼梯暴露在外,让整个空间有更多的光线和视觉连续性。厨房重新定位,面向客厅,改善了布局的流畅性。引入了一堵矮墙,巧妙地包围了这个区域,而不会让它感觉与房子的其他部分分开。在厨房以及前engawa(外部走廊)、内置衣柜和楼梯下,灰色PVC板被用来与主房间的原始木地板形成对比。
A New Layout for Modern Living –On the first floor, partitions were removed to create a more open-plan living space. The once-enclosed staircase was exposed, allowing more light and visual continuity throughout the space. The kitchen was repositioned to face the living room, improving the flow of the layout. A pony wall was introduced to subtly enclose the area without making it feel separate from the rest of the house. In the kitchen, as well as in the areas of the former engawa (external corridor), built-in wardrobe, and under the stairs, grey PVC sheets were applied to create a contrast with the original wooden flooring in the main room.

© Akira Nakamura
所有的墙都漆成了白色。拆除内置衣柜后,墙上留下了明显的标志,我们选择将其暴露在外,只在周围区域涂漆以突出这些标志。以前,洗衣房只能从外面进入。为了使它更实用,打开了一扇新门,允许进入内部。在浴室里,在现有的单元上安装了一个新的水槽,而镜子则直接安装在原来的装饰窗上。
All the walls were painted white. The removal of the built-in wardrobe left visible signs on the walls, which we chose to leave exposed, accentuating them by painting only the surrounding areas. Previously, the laundry room could only be accessed from the outside. To make it more practical, a new door was opened, allowing interior access. In the bathroom, a new sink was installed on the existing unit, while a mirror was installed directly on the original ornamental window.

© Akira Nakamura

© Akira Nakamura

© Akira Nakamura

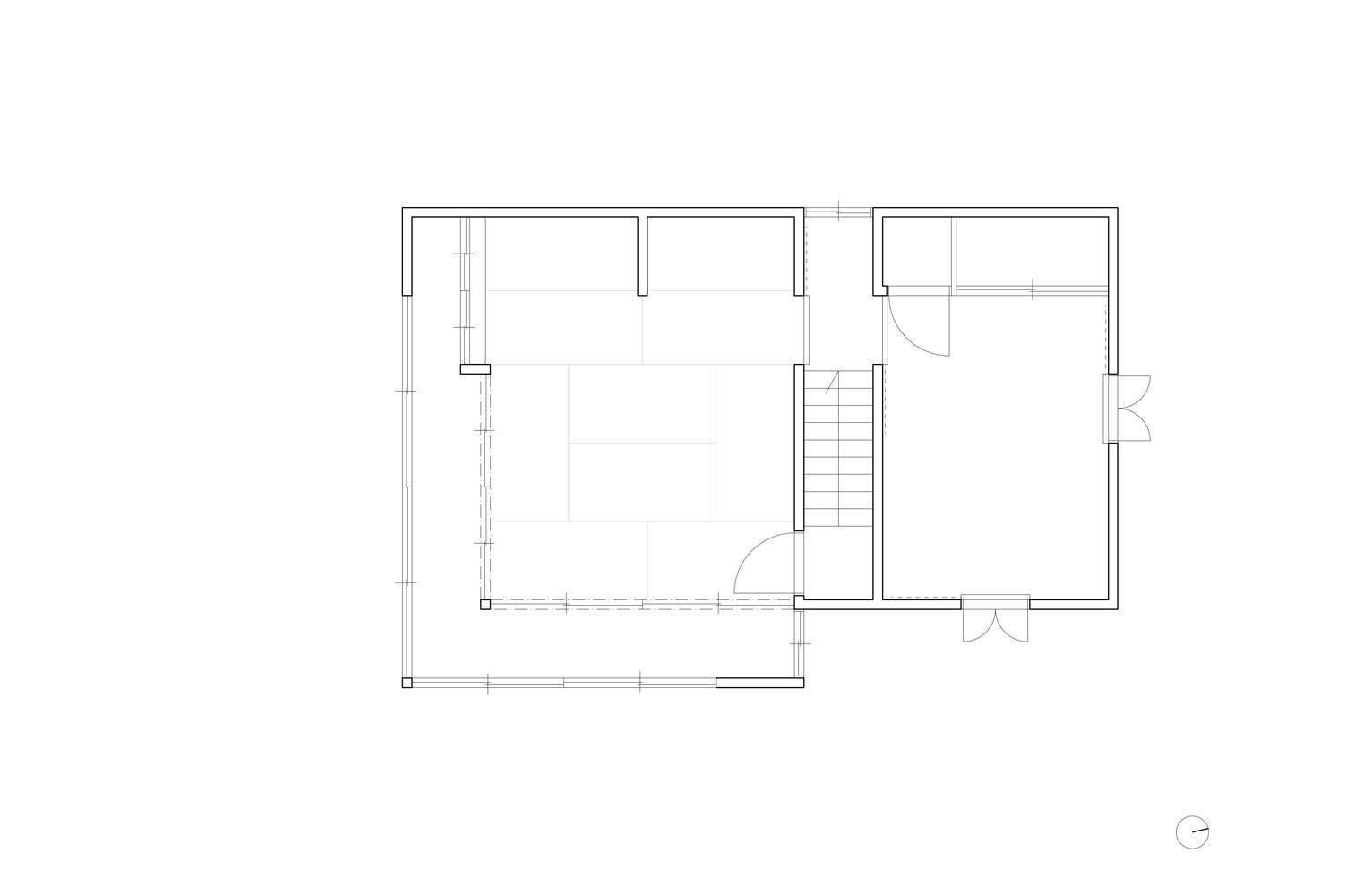
Second Floor Plan (After)

© Akira Nakamura
尊重二楼的传统——在二楼,为了保持空间的特色,进行了最小的改动。主房间的榻榻米被翻新,而房间的其他部分基本保持不变。在tokonoma(装饰壁龛)中,安装了一根不锈钢杆,穿过隔墙,创造了一个挂衣服的空间——在保持壁龛存在的同时引入了一种新功能。库拉储藏区也可从二楼进入,用落叶松胶合板地板进行了更新,地板上涂有红色强调EP擦拭涂层。天花板被拆除,露出了原始结构,暴露了建筑的历史层。这两扇传统窗户最初装有铁条,但在中心开了一个开口,稍作修改,既保留了它们的历史意义,又提供了更多的光线和视野。原来的滑动门和百叶窗被重新粉刷过。
Respecting Tradition on the Second Floor –On the second floor, minimal changes were made to retain the character of the space. The tatami in the main room was refurbished, while the rest of the room was left largely unchanged. In the tokonoma (decorative alcove), a stainless steel pole was installed, cutting through the partition wall to create a space for hanging clothes—introducing a new function while maintaining the alcove's presence. The kura storage area, also accessible from the second floor, was updated with larch plywood flooring finished in a red accent EP wipe-off coating. The ceiling boards were removed to reveal the original structure, exposing the building's layers of history. The two traditional windows, originally fitted with iron bars, were slightly modified by cutting an opening in the center—maintaining their historical significance while allowing more light and views. The original sliding doors and window shutters were repainted.

© Akira Nakamura
平衡传统和适应-这次翻修旨在尊重房屋的现有特征,同时进行周到的更新以增强其功能。通过突出关键的建筑元素并融入微妙的现代元素,这座房子保留了与过去的联系,同时成为一个更具适应性和多功能性的空间。该项目展示了如何通过谨慎、最小的干预措施来恢复长期空置的房屋,使其得到充分的欣赏和再次使用。
Balancing Tradition and Adaptation –This renovation sought to respect the home's existing character while making thoughtful updates to enhance its functionality. By highlighting key architectural elements and integrating subtle modern touches, the house retains its connection to the past while becoming a more adaptable and versatile space. The project demonstrates how careful, minimal interventions can revive a long-vacant home, allowing it to be fully appreciated and used once again.
© Akira Nakamura