阿尔法XXL地中海混合街区/Rémy MARCIANO建筑
Alpha XXL Mediterranean Mixed Block / Rémy MARCIANO architecte
地中海元素的巧妙运用:项目最突出的亮点在于其对地中海建筑语言的精准把握与创新演绎。白色混凝土结构网格的运用,不仅仅是外观上的美学呈现,更是对地中海地区特有的光影、阴影、通透性和节奏的深刻理解与具象化表达。这种网格结构与凉廊的结合,既增强了建筑的视觉深度,又营造出宜人的居住环境,将地中海的地域特色融入到建筑的每一个细节之中。同时,项目对材料的运用也十分考究,低碳白色混凝土的选用,不仅响应了环保可持续的理念,也进一步强化了建筑的地中海风格。
多尺度融合的和谐统一:项目的精髓在于对城市尺度与个体尺度之间的完美平衡。一方面,项目以宏伟的姿态融入城市肌理,与周边街区形成和谐的整体。另一方面,通过白色混凝土屋顶房屋和内部通道的设计,又营造出温馨、宜人的居住氛围,体现了对居住者生活体验的关注。这种对不同尺度的精妙把握,使得项目在宏观上具有标志性,在微观上又充满人情味。此外,项目还巧妙地利用了场地的地理优势,将周边环境的诗意景观引入街区内部,实现了建筑与自然的深度融合,增强了项目的整体活力。
可持续与社区意识的完美结合:项目不仅在建筑设计上匠心独运,更在可持续发展和社区营造方面体现出卓越的理念。景观设计是项目的重要组成部分,菜园、绿色露台和内花园的设置,不仅美化了环境,也为居民提供了休闲娱乐的场所,促进了社区的互动。同时,项目采用了低碳混凝土等环保材料,体现了对环境的责任感。多种功能空间的设置,如共享露台和共享房间,为居民提供了交流和互动的机会,增强了社区的凝聚力。这种可持续和社区意识的融合,使得阿尔法XXL项目不仅仅是一个建筑作品,更是一个充满活力和人情味的社区中心。

© Stéphane Aboudaram | WE ARE CONTENT(S)

© Stéphane Aboudaram | WE ARE CONTENT(S)
建筑师提供的文字描述该项目结合了三种建筑表达,与社区的城市挑战产生了共鸣。第一个是白色混凝土结构网格,代表了地中海的身份,并谈到了大型景观的厚度、阴影、孔隙度、节奏和框架。它补充了凉廊的厚度,成为建筑的语言。第二种是更加克制的构图,让该地区的诗意景观出现在街区的中心。最后一个表达是指国内规模,从白色混凝土屋顶的房屋和穿过项目的道路中可以看出。
Text description provided by the architects. The project combines three architectural expressions that resonate with the urban challenges of the neighborhood. The first, a structural grid in white concrete, represents a Mediterranean identity and speaks of the thickness, shadow, porosity, rhythm, and framing of the large landscape. It complements the thickness of the loggias and becomes the very language of the architecture. The second is a more restrained composition, allowing the poetic landscape of the area to emerge in the heart of the block. The last expression refers to a domestic scale, seen in the white concrete-roofed houses and the pathways through the project.

© Stéphane Aboudaram | WE ARE CONTENT(S)

Axonometry

© Stéphane Aboudaram | WE ARE CONTENT(S)

© Stéphane Aboudaram | WE ARE CONTENT(S)
入口通过三条通道突出显示,这些通道分布在大厅中,并与内部花园相连。景观工作(菜园、绿色露台、内花园)特别关注流通空间、边界,并融入商业区丰富的整体生态系统。低碳白色混凝土外壳使我们能够探索不同的生活顺序和方式。双重挑战:支撑立面,遮蔽凉廊,创造一种既有城市特色又有地中海特色的多孔节奏。现浇的白色混凝土格栅需要特定的实施和工艺,特别是在15层以上的阁楼地板上。这是一种低碳白色混凝土,现场浇筑。该项目西翼的上部是使用锯齿状矩阵创建的。
Entrances are highlighted through three passages distributing the halls and connecting to the interior garden. The landscape work (vegetable garden, green terraces, inner garden) allowed for special attention to circulation spaces, boundaries, and integration into the rich, holistic ecosystem of the commercial area. The low-carbon white concrete envelope allowed us to explore different sequences and ways of living. A dual challenge: to support the façades, shelter the loggias, and create a porous rhythm that is both urban and distinctly Mediterranean. The white concrete lattice, cast in place, required a specific implementation and process, especially on the attic floors above the 15th level. It is a low-carbon white concrete, poured on site. The upper part of the west wing of the project was created using a crenelated matrix.

© Stéphane Aboudaram | WE ARE CONTENT(S)

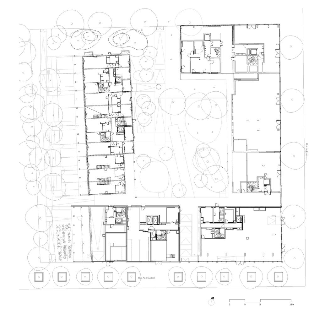
Ground Floor Plan

© Stéphane Aboudaram | WE ARE CONTENT(S)

© Stéphane Aboudaram | WE ARE CONTENT(S)
阿尔法反映了该场地的两个尺度:与克罗特街和里昂街相连的新社区的城市尺度,以及这座15层楼高的塔楼将构成的广阔地中海景观的尺度,提供周围地区的360度全景。该项目还结合了三种建筑表达,与社区的城市挑战产生了共鸣。第一种是白色混凝土结构网格,它表达了地中海的身份,唤起了人们对大型景观的厚度和阴影、孔隙度、节奏和框架的联想。它补充了凉廊的厚度,成为建筑的语言。第二种是更加克制的构图,让场地的诗意景观出现在街区的中心。最后一个表达是指国内规模,可以在项目内的白色混凝土屋顶房屋和通道中看到。
Alpha reflects the two scales of the site: the urban scale of the new neighborhood, connected to the Crottes and Rue de Lyon, and the scale of the vast Mediterranean landscape, which the 15-story tower will frame, offering 360-degree views of the surrounding area. The project also combines three architectural expressions that resonate with the urban challenges of the neighborhood. The first, a structural grid in white concrete, is an expression of a Mediterranean identity, evoking thickness and shadow, porosity, rhythms, and framing of the large landscape. It complements the thickness of the loggias and becomes the very language of the architecture. The second is a more restrained composition, allowing the poetic landscape of the site to emerge in the heart of the block. The last expression refers to a domestic scale, seen in the white concrete-roofed houses and pathways within the project.

© Stéphane Aboudaram | WE ARE CONTENT(S)

Section

© Stéphane Aboudaram | WE ARE CONTENT(S)
入口通过三条通道突出显示,这些通道分布在大厅中,并与内部花园相连。景观工作(菜园、绿色露台、内花园)特别关注流通空间、边界,并融入商业区丰富的整体生态系统。阿尔法位于马赛Euroméditerranée扩建区的工厂内。这是一个混合和包容的项目,包括:148套待售房屋,提供各种类型和生活环境,包括带私人花园的底层复式公寓、面向城市和大海的交叉公寓以及屋顶房屋。1个商业空间。1个200平方米的共享露台和一个共享房间。1个由Merci Raymond管理的菜园。1个带儿童游乐区的室内花园
Entrances are highlighted through three passages distributing the halls and connecting to the interior garden. The landscape work (vegetable garden, green terraces, inner garden) allowed for special attention to circulation spaces, boundaries, and integration into the rich, holistic ecosystem of the commercial area. Alpha is located within the factories in the extension of Euroméditerranée in Marseille. It is a mixed and inclusive program comprising: 148 homes for sale, offering a variety of typologies and living situations, including ground-floor duplexes with private gardens, cross-through apartments open to the city and the sea, and rooftop houses. 1 commercial space.1 shared terrace of 200 m² and a shared room. 1 vegetable garden managed by Merci Raymond. 1 interior garden with a children's play area

© Stéphane Aboudaram | WE ARE CONTENT(S)