BOMA文化中心/Marjan Hessamfar和Joe Vérons建筑师协会
BOMA Cultural Center / Marjan Hessamfar & Joe Vérons architectes associés
场地与建筑的和谐共生:BOMA文化中心最令人印象深刻的亮点在于其巧妙地融入了周边的景观环境。建筑师没有选择突兀的设计,而是利用场地本身的地形和特质,打造了一个低调而富有张力的建筑。水平延伸的体量与宽阔的悬挑屋檐,如同一个轻巧的“地平线”,与周围的绿地、石墙形成了和谐的对话,没有丝毫的突兀感。这种设计策略充分尊重了场地的原有氛围,同时也赋予了建筑一种内敛的优雅,凸显了其作为公共设施的场所感和标识性。
通透性与互动性的完美结合:建筑师在设计中大量运用玻璃,打造出通透的立面,使得室内空间与外部环境实现了视觉上的无缝连接。这种通透性不仅增强了建筑的美学效果,更重要的是促进了人与人之间的互动。从入口到中心内部,开放的布局邀请人们自由探索,而不同功能空间之间的视觉联系也鼓励了人们的交流。这种设计理念使得BOMA文化中心不仅仅是一个提供服务的场所,更成为了一个鼓励社区参与、促进文化交流的公共空间,将建筑的实用功能与社会价值完美地结合在一起。
材料的运用与细节的考究:该项目对材料的选择和运用也体现了建筑师的匠心。玻璃、木材和混凝土的组合,在保证通透性的同时,也为建筑带来了温暖和质感。特别值得一提的是,建筑师巧妙地运用木制“百叶窗”来控制光线和保护隐私,百叶窗的设计与立面融为一体,创造出一种光滑、简洁的外观。同时,对原有建筑查特鲁兹的修复,也体现了对历史文脉的尊重和保护。这些细节的考量,使得BOMA文化中心在整体设计上达到了和谐统一,也更显精致和品味。

© Jean-François Tremege

© Jean-François Tremege
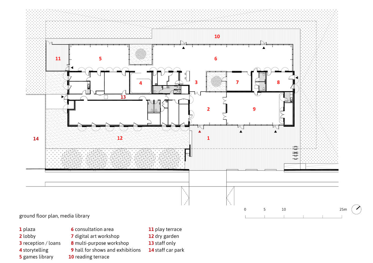
建筑师提供的文字描述BOMA文化中心位于吉伦特省圣丹尼斯-德皮尔的Domaine de Bômale,包括一个媒体图书馆、一个玩具图书馆、数字空间、一个县图书馆分馆、社会和文化服务部门(法律援助、行政支持等)以及一个可容纳130人的表演大厅;修复查特鲁兹,举办婚礼和市政会议厅、接待室、专题研讨会和办公室。
Text description provided by the architects. Located on the Domaine de Bômale, in Saint-Denis-de-Pile (Gironde), the BOMA cultural center includes the construction of a media library housing a toy library, digital spaces, a branch of the county library, social and cultural services departments (legal aid, administrative support, etc.) and a performance hall with a capacity of 130 people; and the rehabilitation of chartreuse hosting a weddings and municipal council hall, a reception room, thematic workshops and offices.

© Jean-François Tremege

Ground Floor Plan - Media Library

© Jean-François Tremege

© Jean-François Tremege
我们希望该项目能够谨慎地融入景观,同时确保它很容易被识别为当地的主要公共设施,因此我们利用场地及其周围环境的性质,提出了一种克制、简约的构图,增强了场地的内在氛围,并与建筑环境和景观进行了对话。媒体图书馆位于庄园的石砌围墙旁,是公园入口的标志。它的形状是一栋一楼的建筑,由两条水平线组成,构成了景观:木制露台和六米宽的悬挑屋顶一直延伸到建筑周围。在材料方面,玻璃的透明度与木材的温暖方面相结合,使项目能够巧妙地融入景观中。
We wanted the project to blend discreetly into the landscape while ensuring that it was easily identifiable as a major local public facility, so we used the nature of the site and its surroundings to propose a restrained, pared-back composition that enhances the intrinsic atmosphere of the site and converses with both its built environment and the landscape. Located along the stone perimeter wall of the estate, the media library acts as a signal marking the entrance to the park. It takes the shape of a ground-floor building made up of two horizontal lines that frame the landscape: the wooden terrace and the six-metre-wide cantilevered roof overhang running all the way around the building. In terms of materials, the transparency of the glass combined with the warm aspect of the wood, allows the project to be subtly integrated into the landscape.

© Jean-François Tremege
主入口旁边的透明立面使人们可以从街上看到整个建筑,在公共空间和公园之间创造出一种视觉连续性。设计为不同活动和不同观众混合的第三个地方,透明度也被用来促进互动。从入口和接待处开始,公共区域的透明度——围绕着从广场通往公园的两个露台——邀请人们四处走走,探索中心。一些空间,如孩子们的讲故事区或工作区,提供了一个更安静、更私密的环境,同时与中心的其他部分保持了视觉关系。在公园一侧,完全玻璃化的立面通向大片草地的景观,而阅读露台则为用户提供了室内空间的延伸。
The transparent façade next to the main entrance makes it possible to see right through the building from the street, creating a sense of visual continuity between the public space and the park. Designed as a third place where different activities and different audiences mingle, transparency is also used to enable and promote interaction. From the entrance and reception onwards, the transparency of the public areas – laid out around two patios leading from the plaza towards the park - invite people to walk around and discover the center. Some of the spaces, such as the kids' storytelling area or workspaces, offer a quieter, more private environment while retaining a visual relationship with the rest of the center. On the park side, the entirely glazed facade opens onto the landscape of the large meadow, while the reading terrace provides users an extension of the interior spaces.

© Jean-François Tremege

Cross Section - Media Library

© Jean-François Tremege
公共区域由金属结构遮挡,铝和云杉混合幕墙完全上釉。员工区和更多私人空间的混凝土墙覆盖着3层覆层和云杉木条,它们在立面和内墙上的使用方式完全相同。由相同材料制成的木制“百叶窗”位于每扇门窗的前方,可以遮挡这些区域的光线。这些百叶窗的设计方式是,当它们关闭时,门或窗被完美地隐藏起来,给人一种光滑、无窗的外观的错觉。穿过公园的一条小径从新建筑通往改建的查特鲁兹,我们努力保护其历史完整性和原始材料。
The public areas are sheltered by a metal structure and have mixed curtain façades of aluminum and spruce which are entirely glazed. The staff areas and more private spaces have concrete walls covered in 3-ply cladding and spruce battens, which are used in exactly the same way on the façade and on the interior walls. Wooden "shutters" made of the same materials are positioned in front of each door and window, making it possible to shut out the light in these areas. These shutters are designed in such a way that when they are closed, the door or window is perfectly concealed, giving the illusion of a smooth, windowless façade. A footpath through the park leads from the new building to the converted Chartreuse, for which we have endeavored to preserve the historic integrity and the original materials.
© Jean-François Tremege