Charlotte&William Bloomberg Medford公共图书馆/施瓦茨/银建筑师事务所
Charlotte & William Bloomberg Medford Public Library / Schwartz/Silver Architects
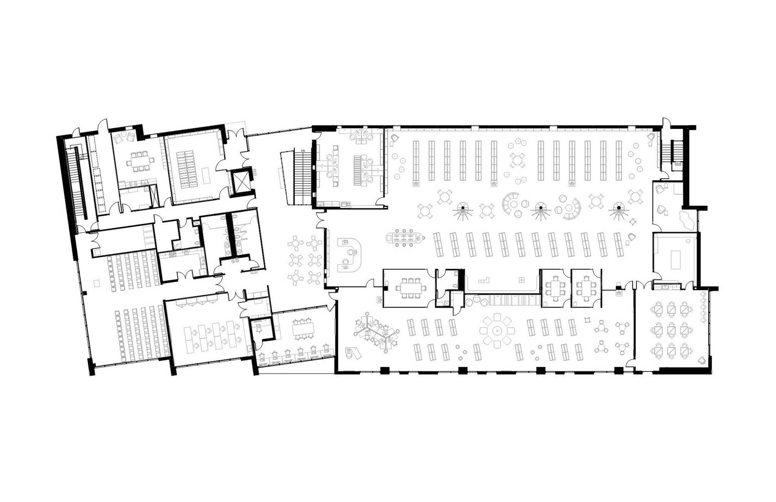
功能与空间布局亮点:Charlotte & William Bloomberg Medford公共图书馆巧妙地利用地形和建筑布局,创造出多功能的空间。图书馆退到陡坡上,商业大街一侧是市政规模的立面,而上坡一侧则是低调的单层建筑,这样的设计既满足了城市界面的需求,又与周边环境和谐共存。前后入口的无障碍设计体现了对不同群体的关怀,堆叠的大厅连接着成人、青少年和儿童的隔音空间以及多功能室、创客室、技术实验室和画廊等灵活空间,为不同年龄段的用户提供了丰富的活动场所,从音乐家的团体学习到孩子们的故事时间,从企业主的专注工作到老年人的播客录制,满足了社区多样化的文化需求。
设计灵感与文化内涵:建筑的设计灵感源自梅德福作为神秘河上快船制造中心的历史。波浪形的屋顶和木板衬里的天花板,让人联想到船体的形态,这种设计不仅在视觉上给人以美感,更在空间上营造出一种独特的氛围。外部材料的选择也体现了对环境的回应,街道立面的红色诺曼砖与面向社区的HPL雨幕覆盖板形成对比,而内部的穿孔吸音板则进一步强化了船体般的空间感。主阅览室的梅德福历史地图装饰和创客室的大型快船横截面展示,更是将当地的历史文化融入到建筑之中,使图书馆成为传承和展示地方文化的重要场所。
可持续性与创新:该项目在可持续性方面表现出色。为了将建筑的整体体量保持在分区范围内,建筑占地面积被巧妙地组织成长而重复的结构隔间,每个隔间都有波浪形的屋顶,这不仅是对城市造船历史的致敬,也是对建筑形态的一种创新。尽管场地受到地形和大小的限制,但项目团队精心保存了一棵有百年历史的大型铜制山毛榉,使其成为儿童房内的特色,这体现了对自然环境的尊重和保护。更值得一提的是,屋顶设计巧妙地屏蔽了所有屋顶机械设备,并覆盖了600多块太阳能电池板,使这座全电动建筑成为马萨诸塞州第一座净零能耗公共图书馆,现场产生的电力足以抵消其预期的能源消耗,展现了建筑在节能减排和可持续发展方面的先进理念和技术应用。

© Paul Burk Photography

© Paul Burk Photography
建筑师提供的文字描述图书馆退到一个陡坡上,在商业大街上呈现出一个市政规模的立面,在上坡的独栋房屋对面则是一个不太显眼的单层建筑。前后入口都是完全无障碍的,通往一个堆叠的大厅,连接着主要的节目元素:成人、青少年和儿童的隔音空间;以及一套灵活的空间,包括多功能室、创客室、技术实验室和画廊。
Text description provided by the architects. Backing into a steep slope, the library presents a civic-scaled facade on commercial High Street and a less prominent single story facing the single-family homes uphill. The front and rear entries, both fully accessible, feed into a stacked lobby that connects the primary program elements: Acoustically separated spaces for adults, teens, and children; as well as a suite of flexible spaces including a Multipurpose Room, Maker Room, Tech Lab, and Gallery.

© Paul Burk Photography

Axonometric

© Paul Burk Photography
这个以社区为中心的图书馆不仅仅是一个书籍库,它还为每个年龄段的项目和活动提供了专门的区域,并辅以一系列供公众会面和协作的空间。音乐家们预订团体学习室一起练习;当地企业主使用安静的壁龛集中注意力,成年学习者使用计算资源;青少年参加纸杯蛋糕装饰比赛和诗歌大满贯;孩子们涌向故事时间,老年人学习如何录制播客。
Much more than a repository of books, the community-centered library features dedicated areas for programs and events for each age group, complemented by an array of spaces for the public to meet and collaborate. Musicians reserve group study rooms to practice together; local business owners use quiet alcoves to focus, adult learners use the computing resources; teens participate in cupcake decorating contests and poetry slams; children flock to story time, and seniors learn how to record a podcast.

© Paul Burk Photography

© Paul Burk Photography

© Paul Burk Photography
该建筑波浪形的屋顶形式和木板衬里的天花板的灵感来自梅德福作为神秘河上快船制造中心的丰富历史。外部材料的选择是为了适应其直接的环境:街道立面覆盖着红色诺曼砖,而面向社区的后立面则由水平的HPL雨幕覆盖板制成。弯曲的屋顶是直立的接缝金属,铝复合材料构成了装饰。在内部,弯曲的天花板内衬着穿孔的吸音板,使内部空间具有船体般的特征。主阅览室装饰着梅德福的历史地图,创客室则展示着一艘大型快船的横截面。
The building's wave-like roof forms and plank-lined ceilings are inspired by Medford's rich history as a clipper ship manufacturing hub on the Mystic River. Exterior materials were selected to be responsive to their immediate context: The street façade is clad in red Norman brick while the rear, neighborhood-facing façade is created with horizontal planks of HPL rain-screen cladding. The curved roofs are standing seam metal, with aluminum composite material forming the trim. Inside, the curved ceilings are lined in perforated acoustical planks, giving interior spaces a hull-like character. Pixelated historic maps of Medford adorn the main reading room, and a large cross-section of a clipper ship is featured in the Maker Room.


© Paul Burk Photography

Section
为了将建筑的整体体量保持在分区范围内,半英亩的建筑占地面积被组织成一系列长而重复的结构隔间,每个隔间都有波浪形的屋顶——这是对该市造船历史的致敬。尽管该地点的地形和大小受到重大限制,但一棵有百年历史的大型铜制山毛榉被精心保存下来,使其成为儿童房内的一个特色。这棵树是以自然为主题的儿童空间的灵感来源,在那里,一排树可以用绞车降下,这样图书馆工作人员就可以在每个季节装饰树枝。
To keep the overall massing of the building within the zoning envelope, the half-acre building footprint was organized into a series of long, repetitive structural bays, each with a wave-shaped roof – a nod to the city's shipbuilding past. Although the site's topography and size were significant constraints, a large century-old copper beech tree was carefully preserved so that it could become a feature seen from within the children's room. This tree served as the inspiration for the nature-themed children's spaces, where a row of trees can be lowered by a winch so that the library staff can decorate the limbs for each season.

© Paul Burk Photography

© Paul Burk Photography
屋顶的设计是为了屏蔽所有屋顶机械设备。600多块太阳能电池板覆盖了它的曲面,使这座全电动建筑成为马萨诸塞州第一座净零能耗公共图书馆,现场产生的电力足以抵消其预期的能源消耗。
The roof was designed to screen all rooftop mechanical equipment from abutters. Over 600 solar panels cover its curved surfaces, making the all-electric building Massachusetts's first Net-Zero Energy public library, generating enough power on-site to offset its anticipated energy consumption.

© Paul Burk Photography