新中学和STEAM设计中心/弗兰斯堡建筑师事务所
New Middle School and STEAM Design Center / Flansburgh Architects
创新的教育空间设计:西贡南国际学校的新中学和STEAM设计中心展示了创新的教育空间设计理念。STEAM设计中心通过其透明、灵活的空间布局,为学生提供了一个跨学科的学习环境,鼓励他们探索创造力和激情。这种设计不仅满足了现代教育对灵活性和互动性的需求,还为学生提供了丰富的学习资源和设施,如科学实验室、艺术工作室和3D艺术室等。此外,中学的设计充分考虑了6-8年级学生的情感和身体发展,通过明亮的中庭和开放的学习空间,营造出一种鼓励合作和探索的氛围。
与自然环境的和谐融合:这两座建筑与周围自然环境的融合是该项目的一大亮点。建筑被精心地放置在广阔的运动场和绿地之间,其设计灵感来源于沙巴的梯田,通过起伏的曲线和植物的布局,与自然景观和谐共存。建筑的内部设计也充分考虑了与自然的互动,如中庭的竹子装饰和自然采光的设计,不仅增强了空间的美感,还体现了对可持续性的承诺。建筑的各个楼层延伸到外部花园阳台,最终与河流相连,实现了教育空间与自然环境的无缝连接,为学生提供了一个充满生机的学习环境。
城市与校园的融合与扩展:该项目不仅是一个独立的校园建筑,也是城市环境的一部分。学校位于一个可步行的混合用途岛屿社区中,与城市生活紧密相连。其优越的地理位置使得学校能够更好地融入城市,为社区提供服务。新建筑的设计填补了现有校园建筑之间的空白,扩大了中央绿地,增强了校园的整体感和开放性。同时,建筑的外观设计与城市景观相协调,增强了地方感和可见性,使其成为城市中的一个重要地标。这种设计不仅提升了校园的功能性,也为城市的发展做出了贡献。

© Matthew Millman

© Jonathan Mitchell
建筑师提供的文字描述西贡南国际学校是一所独立的大学预科学校,为来自40多个国家的K-12学生提供探究精神。该项目涉及两座新建筑,一所中学和一个STEAM设计中心。
Text description provided by the architects. Saigon South International School is an independent college preparatory school for K-12 students from over 40 countries grounded in a spirit of inquiry. This project involves two new buildings, a Middle School and a STEAM Design Center.

© Matthew Millman

Site Plan

© Matthew Millman
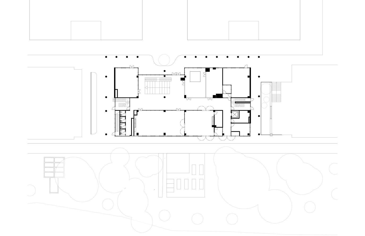
STEAM设计中心包括五个科学实验室、两个艺术室、独立艺术工作室、一个3D艺术和版画室以及一个室内/室外艺术画廊。该中心为高中生提供机会,在透明、高度灵活、跨学科的学习环境中探索他们的创造力,激发他们的激情,培养面向未来的基本技能。中学是为6-8年级的学生设计的,考虑到他们的情感、创造力和身体成长。Skylit中庭鼓励协作和归属感。明亮、阳光明媚的开放空间鼓励动手学习,培养学生的实验能力。其中包括一个220平方米的黑匣子剧场、舞蹈室、教室、科学实验室、分组讨论室和创客空间。图书馆是研究和探索的社区中心,而体育馆则为体育活动、团队运动和社区建设活动提供了机会。
The STEAM Design Center includes five science labs, two art rooms, independent art studios, a 3D art and printmaking room, and an indoor/outdoor art gallery. The Center provides opportunities for high school students to explore their creativity, kindle their passions, and develop essential future-ready skills in a transparent, highly flexible, cross-disciplinary learning environment The Middle School is designed for students in grades 6-8, with their emotional, creative, and physical growth in mind. Skylit atria encourages collaboration and a sense of belonging. Bright, daylit, open spaces encourage hands-on learning and foster students' experimentation. They include a 220 sqm black box theater, dance room, classrooms, science labs, breakout rooms, and maker spaces. The library is a community hub for research and exploration while the gymnasium offers opportunities for physical activities, team sports, and community-building events.

© Matthew Millman

© Matthew Millman

STEAM - Ground Floor Plan

© Matthew Millman
这两座建筑被精心地放置在广阔的运动场和绿地的两侧。他们的建筑与浅色和起伏的曲线相辅相成,与网格结构和谐互动。受沙巴梯田的启发,花盆突出了设施的曲率,与当地物种级联,提供了视觉趣味,并打破了建筑平面。当风雨为郁郁葱葱的绿色植物带来运动时,这些元素的动态相互作用更加突出。中庭的内部以竹子为特色,坚持对当地美学和可持续性的承诺,并捕捉日光。建筑的各个楼层都是隐喻性的分支,延伸到外部花园阳台,最终延伸到河流,促进了教育空间与自然之间的无缝连接。
The two buildings are thoughtfully positioned on opposite sides of an expansive athletic field and green space. Their architecture complements one another with light colors and undulating curves that interact harmoniously with their gridded structure. Planters, inspired by the terraced rice fields of Sa Pa, accentuate the curvature of the facility, cascade with native species, provide visual interest, and break up the building plane. The dynamic interplay of these elements is accentuated when the wind or rain introduces movement to the lush greenery. The interiors of the atria feature bamboo that upholds a commitment to local aesthetics and sustainability and captures daylight. Levels of the building serve as metaphorical branches extending to exterior garden balconies and ultimately to the river, fostering a seamless connection between educational spaces and nature.

© Matthew Millman

Middle School - Ground Floor Plan

© Matthew Millman

© Matthew Millman
该遗址是由现有河流界定的岛屿城市的一部分。这两座建筑位于五个可步行的混合用途岛屿社区之一。学校位于延伸到小街区的小径上,步行10分钟即可到达。该项目锚定在迪亚运河上,其位置增强了地方感,提供了更高的能见度,是服务于整个城市的更大校园的一部分。新设施利用了其优越的地理位置。弯曲的阳台与蜿蜒的水道相协调,可以欣赏到水景。这两座新建筑填补了现有校园建筑之间未充分利用的空白,最大限度地扩大了新的中央绿地。
The site is part of a city of islands defined by existing rivers. The two buildings sit within one of five walkable, mixed-use island neighborhoods. The school is located along pathways that extend into small blocks, accessible by a visually intriguing 10-minute stroll. Anchored to the Dia Canal, the project's location strengthens a sense of place, provides higher visibility, and is part of a larger campus serving the entire city. The new facilities take advantage of their prominent location. Curving balconies that harmonize with a serpentine waterway offer views of the water. The two new buildings fill underutilized gaps between existing campus buildings to maximize a new central green.