Sarv办公楼/Tamouz建筑与建设集团
Sarv Office Building / Tamouz Architecture & Construction Group
设计挑战与创新:Sarv办公楼项目以其独特的建筑问题和设计挑战脱颖而出。面对100%地块覆盖率的限制,设计团队巧妙地平衡了功能需求与美学及空间考量。通过对立面的深入探索,项目成功地将建筑从单一的保护性外壳转变为与环境互动的中间空间,实现了自然光和通风的最大化利用,同时保持了建筑的私密性和开放性。
立面设计的巧妙平衡:建筑的立面设计体现了对开放性与隐私性的深刻理解。南侧立面的设计既允许自然光深入内部,又避免了直射阳光的干扰,实现了透明与封闭的平衡。这种设计不仅增强了建筑与外界的联系,还为内部空间提供了必要的封闭感和安全感,创造了内外空间的动态互动。
室内外设计的连贯性:Sarv办公楼的设计理念在室内外空间中得到了一致的体现。室内的服务区、公共区域和机电系统的布局遵循了与立面相同的分层、开放和环境互动原则。这种连贯性的设计语言不仅增强了建筑的整体感,还在统一的设计中实现了对比和对立力量的平衡与调和。

© Mohammad Hassan Ettefagh

© Mohammad Hassan Ettefagh
无序/有序-分散/排列-无组织/有组织-看不见/看到-看不到/看到-阴影/光线-封闭/开放-外壳/空间这些对立的概念是Sarv行政大楼项目面临的设计挑战的核心。最初于2017年6月提交给设计团队进行立面审批,该建筑带来了独特的建筑问题。这是一个部分建造的结构,100%的地块覆盖率,将自然光和通风的潜力限制在一侧——南立面。这一限制严重影响了设计团队的方法,因为他们试图平衡功能要求与美学和空间考虑。
Disorder/Order – Scattered/Arranged – Unorganized/Organized – Not seeing/Seeing – Unseen/Seen – Shade/Light – Closed/Open – Shell/Space. These opposing concepts were central to the design challenges faced by the Sarv administrative building project. Initially referred to the design team in June 2017 for façade approval, the building posed unique architectural problems. It was a partially constructed structure with 100% plot coverage, limiting the potential for natural light and ventilation to just one side—the southern façade. This constraint heavily influenced the design team's approach, as they sought to balance functional requirements with aesthetic and spatial considerations.

© Mohammad Hassan Ettefagh

© Mohammad Hassan Ettefagh
考虑到建筑的最初形式,很明显立面需要更多的深度。一个简单的平面是不够的。相反,立面必须从一个纯粹的保护性“外壳”演变为一个中间空间,不仅为建筑提供框架,而且与周围环境积极互动。南侧提出了一个复杂的挑战:它需要是半开放的,允许自然光深入内部,同时保护空间免受刺眼的直射阳光的照射。此外,它必须在开放性和隐私性之间取得平衡——透明到足以将建筑与外界连接起来,但又足够封闭,以提供封闭感和安全感。这种二元性是关键:一个可以“看到”外部但从内部“看不见”的空间,在内部和外部之间创造了一种动态的互动。
Given the building's initial form, it became clear that the façade needed more depth. A simple, flat surface would not suffice. Instead, the façade had to evolve from a mere protective "shell" into an intermediate space that not only framed the building but actively engaged with its surroundings. The southern side presented a complex challenge: it needed to be semi-open, allowing natural light to penetrate deep into the interior while shielding the space from harsh, direct sunlight. Moreover, it had to strike a balance between openness and privacy—transparent enough to connect the building with the outside world, yet closed enough to provide a sense of enclosure and security. This duality was key: a space that could "see" the outside but remain "unseen" from within, creating a dynamic interaction between the interior and exterior.

© Mohammad Hassan Ettefagh

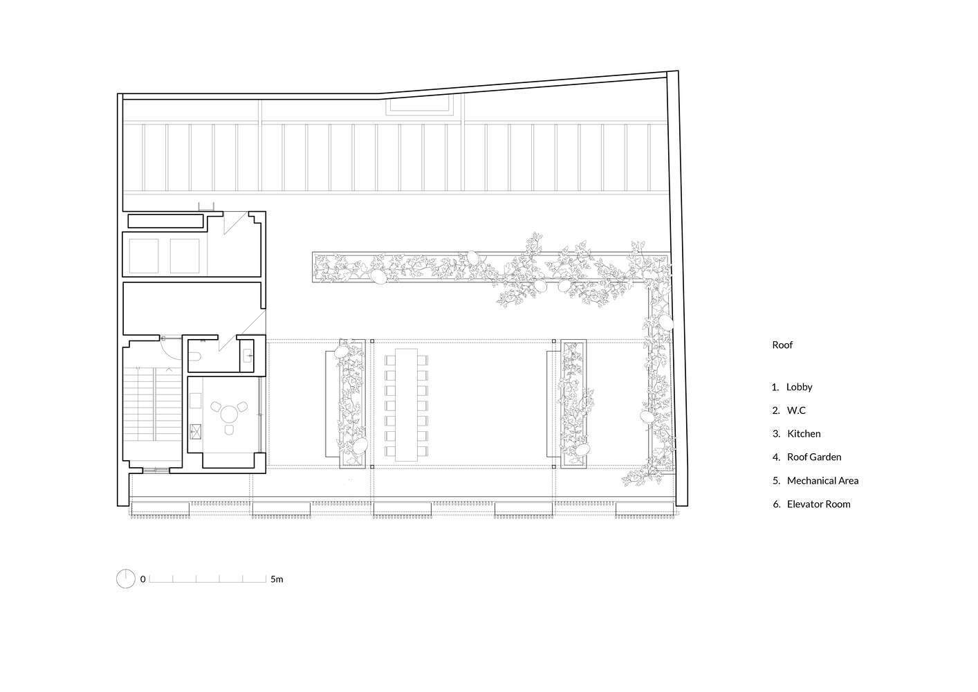
Plan - Roof

© Mohammad Hassan Ettefagh

© Mohammad Hassan Ettefagh
为了实现这一目标,建筑和城市之间的边界由两个不同的层定义。第一个更靠近内部,由大而透明的窗户组成,让自然光充满空间,提高了可见度和开放性。第二层是半透明的,由木栏杆和钢花盆组成,形成了一个可渗透的屏幕。外层充当过滤器,调节光线和气流,同时为乘客提供隐私感。这两层之间的空间成为了一个活跃的区域——部分开放,既服务于功能和美学目的,又软化了建筑与其城市环境之间的过渡。
To achieve this, the boundary between the building and the city was defined by two distinct layers. The first, closer to the interior, consisted of large, transparent windows that allowed natural light to flood the space, enhancing visibility and openness. The second, external layer was semi-transparent, composed of wooden railings and steel planters, forming a permeable screen. This outer layer acted as a filter, regulating light and airflow while providing a sense of privacy for the occupants. The space between these two layers became an active zone—partially open, serving both functional and aesthetic purposes, and softening the transition between the building and its urban environment.

© Mohammad Hassan Ettefagh

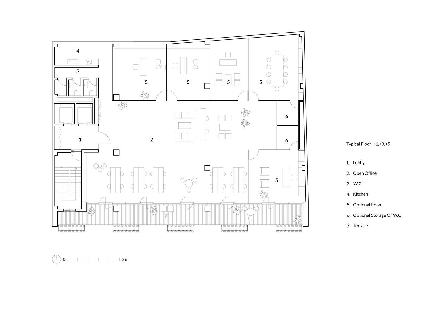
Plan - Typical 1st, 3rd and 5th Floor
这种设计语言被扩展到屋顶,延续了分层透明和半透明的概念。屋顶不仅是一个功能空间,也是建筑与城市互动的一个组成部分,在提供景观、光线和空气的同时,保持一定程度的隔离。
This design language was extended to the rooftop, continuing the concept of layered transparency and semi-transparency. The rooftop was not merely a functional space but an integral part of the building's interaction with the city, offering views, light, and air while maintaining a degree of seclusion.

© Mohammad Hassan Ettefagh

Wall Section
立面和屋顶的精心组织延伸到了建筑的室内设计中。服务区、公共区域和机电系统的布置遵循了分层、开放和与环境受控互动的相同原则。每个元素都被有意地整合在一起,以创造一个有凝聚力的整体——一种在统一设计中平衡对比和调和对立力量的建筑反应。
The careful organization of the façade and rooftop extended into the building's interior design. The arrangement of service zones, common areas, and mechanical and electrical systems followed the same principles of layering, openness, and controlled interaction with the environment. Each element was deliberately integrated to create a cohesive whole—an architectural response that balanced contrasts and reconciled opposing forces within a unified design.