微风大厅/SHISUO设计办公室
the Breeze Hall / SHISUO design office
城市绿洲的转型:微风大厅项目巧妙地将上海鲁迅公园内的一个被忽视的角落转变为一个充满活力的公共空间。通过移植树木和创建新的步行道,设计师不仅增强了场地的公共性,还为城市环境注入了新的活力。这种转型不仅提升了空间的美学价值,也体现了对城市历史和自然遗产的尊重。
结构与环境的和谐:主楼的设计展现了翼状钢结构与景观式基础的完美结合,创造了一个既轻质透明又结构高效的空间。这种设计不仅满足了多功能空间的需求,还通过预制穿孔板屋顶和双层穿孔板的设计,提供了独特的视觉和感官体验。这些细节的处理显示了设计师对材料和光影运用的精湛技艺。
文化地标的新生:微风大厅不仅是一个建筑,更是一个文化和精神的避难所。它通过精心设计的路径和空间,引导人们体验从世俗到神圣的转变。建筑的每一个细节,从低矮的屋檐到景观基地,都在讲述着与自然和谐共存的故事。微风大厅已经成为上海新的文化地标,提升了城市空间的质量,并在市民中广受欢迎。

© Runzi Zhu

© Runzi Zhu
建筑师提供的文字描述Text description provided by the architects. The Breeze Hall is located in Lu Xun Park, the most important memorial park in Shanghai. It originated from a patch of mixed woods on the south side of the Lu Xun Memorial Museum, which was fenced off and designated as a dead corner left by urban development. In 2023, SHISUO Design Office was commissioned to reorganize this site—some trees were transplanted to the south, creating a walkway together with the existing trees in front of the Lu Xun Memorial Museum, and also providing a soft boundary for the new building. Other trees were moved to the flanks of the site, forming a large enclosed open space. Large trees and bamboo within the site were retained, and the newly placed pathways harmoniously interacted with them——All these adjustments endow the site with greater publicness.

© Runzi Zhu

Masterplan
设计需要解决两个问题——如何在有限的预算和施工时间内实现高质量的施工,以及如何创造一个与混乱环境相协调的具有里程碑意义的精神建筑。
The design needs to address two issues—how to achieve high-quality construction within a limited budget and construction timeline, and how to create a landmark spiritual building that harmonizes with the chaotic surroundings.

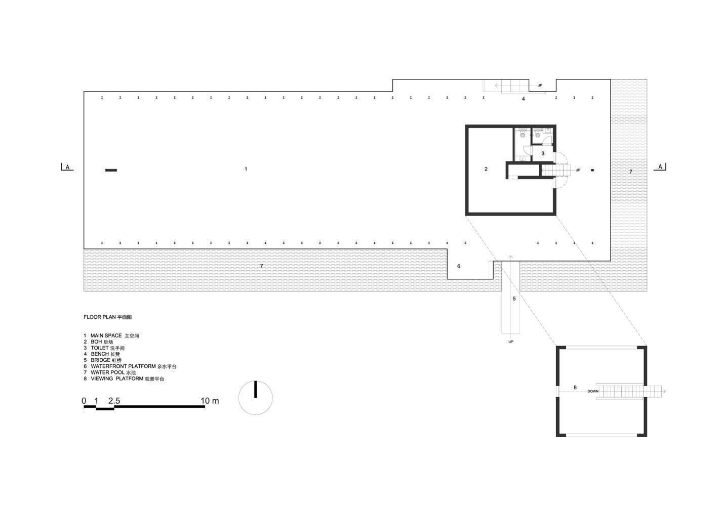
Plan

© Sanif
主楼由翼状钢结构和景观式基础组成。细长的钢结构被布置为轻质透明,同时实现了高的结构效率。仅100*150mm的钢柱支撑着一个长42米、跨度15米、高12米的开放空间,满足婚礼、活动、展览和聚会的需求。屋顶由预制穿孔板制成,模块化组装确保了现场施工的快速进行。这种多孔材料在不同尺度上提供了不同的视觉体验,乍一看很简单,但仔细一看就会发现复杂的细节。双层穿孔板也起到了内部和外部之间的过滤器的作用——阴天平静,晴天温暖。屋顶的形状在入口处发生了变化,吸引人们进来。内部空间高耸而广阔,就像一块空白的画布,用户可以在以后添加颜色。
The main building consists of a wing-like steel structure and a landscape-like base. The slender steel structure is arranged to be lightweight and transparent while achieving high structural efficiency. Steel columns of only 100*150mm support an open space measuring 42m in length, 15m in span, and 12m in height, catering to the needs of weddings, events, exhibitions, and gatherings. The roof is made of prefabricated perforated panels, and the modular assembly ensures quick construction on-site. This porous material provides varying visual experiences at different scales, appearing simple at first glance but revealing intricate details upon closer inspection. The double-layer perforated panels also act as a filter between the interior and the exterior—calm on cloudy days and warm on sunny days. The roof's shape transforms at the entrance, inviting people to come in. The interior space is lofty and expansive, resembling a blank canvas that allows users to add color later.

© Xiaobin Lv

© Jianyuan Ye
低矮的屋檐过滤掉了对面商业街的噪音,只露出了水池和连绵起伏的草地上的倒影。在这里,气流、光线和鸟鸣穿过,而外面混乱的世界则被拒之门外。景观般的基地与场地互动多样,可以作为向上的台阶、观景台、连接建筑和草地的彩虹桥,也可以变成水边平台。
The low eaves filter out the noise from the commercial street across the way, only revealing the reflections in the water pool and the rolling grassland. Here, air currents, light, and birdsong pass through, while the chaotic world outside is kept at bay. The landscape-like base interacts diversely with the site, serving as steps leading upward, viewing benches, a rainbow bridge connecting the building and the grass, or transforming into a waterside platform.

© Runzi Zhu

© Sanif
在内部,基座向上升起,固化成一座抽象的房子,让人想起一座寂静的纪念碑或塔楼。在它后面,一个峡谷般的楼梯将人们引导到一个更高的平台,在不断变化的光影中提供框架式的景色;两侧的窄窗让光线进入,让游客可以回头看入口。每天早晨,太阳从它后面升起,投下一个光环,赋予它神秘而神圣的品质。
Inside, the base rises upward and solidifies into an abstract house, reminiscent of a silent monument or tower. Behind it, a canyon-like staircase guides people to a higher platform, offering the framed views within the changing light and shadows; the narrow windows on both sides allow light to enter, enabling visitors to look back at the entrance. Every morning, the sun rises behind it, casting a halo that imbues it with a mysterious and sacred quality.

© Xiaobin Lv

South Elevation

© Jianyuan Ye
我们有意描绘其神圣的一面,因为神圣的空间是为了庆祝日常生活中的诗意时刻。在世俗和神圣的区分和并置中,人们可以发现生活是不同质的。哭与笑,输与得,世俗与神圣。。。所有这些都是构成人类的重要组成部分。所有这一切都存在于每个人身上,神圣总是与日常一起出现。
We intentionally depict its sacred aspect because sacred spaces are meant to celebrate the poetic moments of ordinary daily life. In the distinction and juxtaposition of the secular and the sacred, people can discover that life is not homogeneous. Crying and laughing, losing and gaining, the secular and the sacred... all are essential parts that make up a human being. All of this exists within each individual, and the divine always appears alongside the everyday.

© Runzi Zhu

© Jianyuan Ye
从城市街道进入,踏上古老的石阶,你穿过一片竹林,脚下的砾石嘎吱嘎吱作响。用手抓滑动门可能会留下一些锈迹。当它移动时,你进入小路,那里有一个缓坡逐渐上升。在整个旅程中,没有看到大厅的痕迹,只有树木斑驳的阴影和长长的小路。阳光从走廊尽头的开口洒进来,把你带进一个砾石庭院,在那里你终于可以看到隐藏在树枝后面的立面。当你走近,走进屋檐的阴凉处,你的脚步踏上台阶,外界的痕迹被进一步剥离。。。蜿蜒曲折的道路将主要空间与外部分离,在连续的“隐藏和揭示”循环之后,到达的欲望变得漫长。
Upon entering from the city streets and stepping onto the ancient stone steps, you pass through a bamboo grove, the gravel crunching underfoot. Gripping the sliding door with your hand may leave a few rust marks. As it moves, you enter the pathway, where a gentle slope gradually rises. Throughout this journey, there are no traces of the hall to be seen, only the dappled shadows of the trees and the long pathway. Sunlight pours in through the opening at the end of the corridor, guiding you into a gravel courtyard, where you finally gaze upon the facade hidden behind the branches. As you step closer, entering the shade of the eaves, your footsteps ascend the steps, and the marks of the outside world are further stripped away... The winding path, with its twists and turns, detaching the main space from the exterior, and after a continuous cycle of "concealment and revelation," the desire to arrive becomes prolonged.

© DONG Image

© Jianyuan Ye

© Jianyuan Ye
微风大厅被视为承载城市集体记忆的避难所。它不仅有一个令人惊叹、令人叹为观止、超大的仪式空间,而且充满了人类尺度的细节和材料。低矮的屋檐故意将雨水引入水池收集,尽可能少地依赖人工供应;双层穿孔板利用屋顶结构的轮廓来实现风力提取,而山脊上留下的缝隙与游泳池的蒸发相互作用,创造了一个局部小气候,即使在炎热的夏天,微风也会吹过。在二楼平台内,米色的灰泥触感柔软,为空间赋予了一种皮肤般的质感。带状窗户的扶手变成弧形,使手掌更容易休息,可以停留更长时间。在整个空间中,构造细节被清晰地展示出来,使建筑本身在人体尺度上更加详细,而不是使用过多的装饰。
The Breeze Hall is regarded as a sanctuary that carries the collective memory of the city. It not only has a stunning, breath-taking, and oversized ritual space but is also filled with details and materials that are human-scaled. The low eaves intentionally channel rainwater into a pool for collection, relying as little as possible on artificial supply; the double-layer perforated panels utilize the profile of the roof structure to achieve wind extraction, while the gaps left at the ridge interact with the evaporation of the pool, creating a local microclimate with gentle breezes that flow through even in the sweltering summer. Inside the second-floor platform, the beige plaster has a soft touch, imparting a skin-like texture to the space. The handrails of the ribbon windows transform into arcs, making it easier for palms to rest, allowing for longer stay. Throughout the space, the tectonic details are clearly showcased to make the architecture itself detailed in human scale instead of using excessive ornaments.

© Xiaobin Lv

Section

© Sanif
对细节的关注不仅限于此——在施工过程中,我们发现小动物会来这里喝水,所以我们说服了业主不要在游泳池里添加除藻剂。建成后,这个地方成为了公园里许多小动物的水源,养育着鸟类、蜥蜴、猫和狗。在雨夜,大厅也成了他们的避难所。从城市到人,从自然到动物,这座建筑张开双臂拥抱和滋养各种形式的生命。因此,在树木、历史纪念馆和商业建筑中,一个向城市开放的现代大厅已经建成,与周围环境无缝融合,呈现出明亮、透明和仪式的氛围。
The attention to detail goes beyond this—during construction, we discovered that small animals would come here to drink water, so we persuaded the owners not to add algaecides to the pool. After it was completed, this place became a water source for many small animals in the park, nurturing birds, lizards, cats and dogs. On rainy nights, the hall also became their refuge. From the city to people, from nature to animals, this building opens its arms to embrace and nourish all forms of life. Thus, amidst the trees, historical memorials, and commercial buildings, a modern hall has been completed that is open to the city, seamlessly integrated with its surroundings, and presents a light, transparent, and ceremonial atmosphere.

© Jianyuan Ye

© DONG Image
在开业后的短短六个月内,微风厅已成为城市公共活动的催化剂,举办了一系列具有社会影响力的文化活动,如鲁迅公园樱花市场(feat.INYAN SPACE)、幸福家园展览(feat.RED)、国际瑜伽日活动(feat.PURE Yoga)、疗愈诗歌画廊(feat.SOUL APP和上海心理健康中心)、秋冬时装秀(LOEWE)等。它不仅产生了显著的经济效益,还提高了城市空间的质量,在市民中广受欢迎。通过这些公开活动,微风厅在社交媒体上的浏览量已超过3000万,迅速成为上海新的文化地标。我们期待着有一天,这座建筑将为人们创造更多的幸福机会,成为时间流转中不可或缺的集体记忆。
In the short span of just six months after its opening, the Breeze Hall has become a catalyst for public activities in the city, hosting a series of socially impactful cultural events, such as the Cherry Blossom Market in Luxun Park (feat.YINYAN SPACE)、the Happy Home Exhibition (feat.RED)、International Yoga Day activities (feat.PURE YOGA) 、the Healing Poetry Gallery (feat.SOUL APP & Shanghai Mental Health Center) 、Autumn/Winter Fashion Show(LOEWE)and so on. Not only has it generated significant economic benefits, but it has also enhanced the quality of urban space, garnering popularity among citizens. Through these public events, the Breeze Hall has achieved over 30 million views on social media, swiftly becoming a new cultural landmark in Shanghai. We look forward to the day when this building will create even more opportunities for happiness for people, becoming an indispensable piece of the collective memory amid the flow of time.

© Runzi Zhu
建筑最终会消失,但它们的意义指向永恒。每天日落时分,当阳光透过树枝照射到微风大厅时,迷人的光影在其坚固而持久的三角形立面上舞动。在那些稍纵即逝的时刻,它安慰着那些回家的人。神圣和世俗,看似完全不同的领域,是人类生活总是展开的地方——在两者之间不断转换,我们能够达到崇高的新高度。
Buildings will eventually disappear, but their meaning points to the eternal. Every day at sunset, when the sun filters through the branches of the trees to illuminate the Breeze Hall, enchanting light and shadow dance across its solid and enduring triangular facade. In those fleeting moments, it comforts those who are heading home. The sacred and the mundane, seemingly completely different realms, are where human life always unfolds—constantly shifting between the two, we are able to reach new heights of the sublime.