Au Loin住宅/GGR建筑
Au Loin Residence / GGR architectes
创新与传统的融合:Au Loin 住宅项目在图卢兹郊区新开发区展现出独特魅力。它既未刻意发明新事物,也未彻底改变生活方式,却通过简单选址原则和经典建筑选择,为每个住宅提供新景观。大小两栋建筑各具特色,既遵循相似原则又有不同生活方式体现。垂直盲砖与厚水平混凝土层组成的建筑,保护公寓免受城市滋扰,又向周围景观开放,实现了创新与传统的完美融合。
景观与生活的共生:该项目的景观设计成为一大亮点。连接两栋建筑的小广场、高架板上的种植区域、大型活动草坪等,不仅为居民提供了优美的生活环境,还体现了可持续发展理念。雨水收集系统、耐用适应当地环境的材料选择以及耐寒植物的种植,让景观与生活共生,为居民创造了一个支持社会生活、交流、放松、步行和休闲的可持续城市空间。
和谐共存的建筑布局:大小两栋建筑并排共存,和谐统一。大型建筑呈 360°辐射状,与开发区广阔景观区相匹配,提供经典集体生活方式;小型建筑则反映周边别墅规模,提供更个性化生活方式。精心布局的公寓避免了直接对视,提供欣赏远处景色的机会。这种布局既满足了不同居民的需求,又为整个开发区增添了独特的建筑魅力。

© Atelier Félix Faure

© Atelier Félix Faure
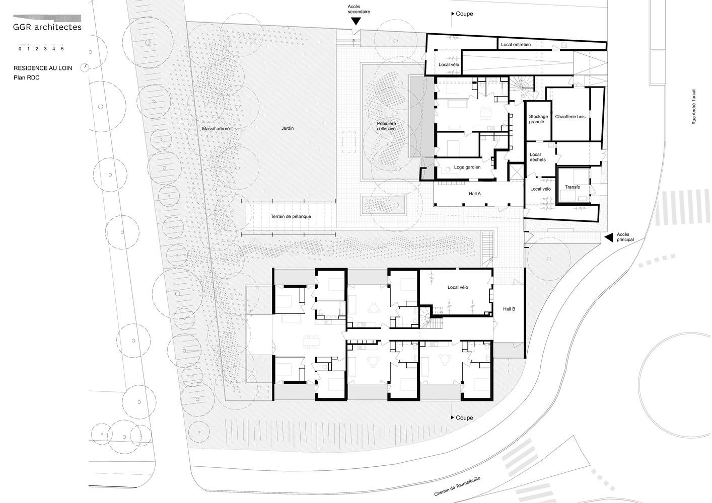
建筑师提供的文字描述Au Loin住宅是图卢兹郊区一个新开发区的一部分。它旨在代表建筑和未来住房的创新。然而,它并没有发明任何东西。它也没有彻底改变生活方式。Au Loin住宅的主要关注点是为每个住宅提供新的景观。为了实现这一目标,它是由简单的选址原则和经得起时间考验的建筑选择所塑造的。Au Loin项目反映了GGR机构的价值观,旨在实现经济、可持续、永恒和以人为本。因为一座城市不能仅仅建立在成就之上。该项目旨在利用复杂城市环境的景观品质:一个狭窄的角落地块,位于一个发展中社区的主轴边缘,毗邻一片树林和一条“野生”溪流。为了实现这一目标,沿街建造了两座建筑,以保护公共花园免受道路滋扰。一座大型建筑上升到最大允许高度,以腾出地面,让内部庭院呼吸。一座较小的建筑被降低,与邻近的住宅结构进行对话。两栋建筑之间的空间形成了住宅的入口。中央花园的空隙与开发区蓄水池的空隙相连,给居民的印象是他们的共同花园是巨大的。
Text description provided by the architects. The residence Au Loin is part of a new development zone on the outskirts of Toulouse. It is intended to be representative of innovation in construction and the housing of tomorrow. However, it doesn't invent anything. It also does not revolutionize the way of living. The primary concern of the residence Au Loin is to offer a new landscape for each of its homes. To achieve this, it is shaped by simple siting principles and architectural choices that have stood the test of time. Reflecting the values of the GGR agency, the Au Loin project aims to be economical, sustainable, timeless, and human-centered. Because a city cannot be built solely on achievements. The project aims to take advantage of the landscape qualities of a complex urban context: a narrow corner plot, located on the edge of the main axis of a developing neighborhood and bordering a wooded area and a 'wild' stream. To achieve this, two buildings are constructed along the street to protect the common garden from road nuisances. A large building rises to the maximum permitted height to free up the ground and allow the inner courtyard to breathe. A smaller building is lowered to engage in dialogue with the neighboring residential fabric. The space between the two buildings forms the entrance to the residence. The void of the central garden connects with the void of the retention basin of the development zone, giving residents the impression that their common garden is immense.

© Atelier Félix Faure

Ground Floor Plan

© Atelier Félix Faure
小楼和大楼是不同的。它们独特的并排建筑有助于管理公寓之间的视觉关系。这座大型建筑呈360°辐射状。这座小建筑朝向开阔的视野,在面向邻近建筑和环形交叉口的一侧封闭。然而,这两种架构都遵循类似的原则。玻璃窗位于阳台或凉廊后面,与背景融为一体,突出了砖块和混凝土块。“Au Loin”住宅与窗户表达家庭用途的住宅建筑的经典设计截然不同,它由垂直的盲砖和厚厚的水平混凝土层组成。这些群众保护公寓免受城市滋扰。然而,它们以自己的方式慷慨地向周围的景观开放。大型建筑的转角公寓和小型建筑的框架式定向公寓提供了两种不同的生活方式。每栋建筑的建筑都是其公寓质量的直接体现。
The small building and the large one are different. Their unique architecture, side by side, helps manage the visual relationships between the apartments. The large building radiates 360°. The small building opens towards the open views and closes off on the side facing the neighboring building and the roundabout. However, both architectures follow similar principles. The glass windows are set back, behind balconies or loggias, blending into the background to highlight the brick and concrete masses. Far from the classic design of residential buildings where windows express domestic use, the 'Au Loin' residence is made up of blind vertical brick volumes and thick horizontal concrete layers. These masses protect the apartments from urban nuisances. Yet, they open generously to the surrounding landscape, each in its own way. The corner apartments of the large building and the framed, oriented apartments of the small building offer two different ways of living. The architecture of each building is a direct expression of the quality of its apartments.

© Atelier Félix Faure

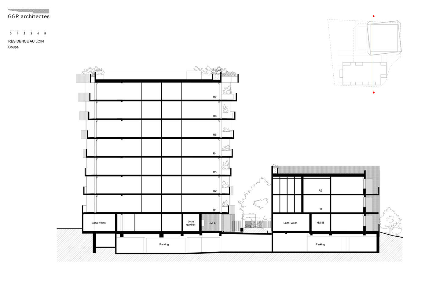
Section

© Atelier Félix Faure

© Atelier Félix Faure
该项目中的所有公寓都享有一个或多个远景。R+2大楼的视野是定向的,而R+7大楼的视野则是开放的,并根据高度而变化。阳台围绕所有楼层的公共核心旋转,创造出几何形状可变的阳台。住宅的绿色庭院通过与蓄水池的连续性为开发区的景观设计做出了贡献。后者可以通过倾斜的入口大厅在R+2和R+7建筑之间看到。这座大型建筑的规模与开发区广阔的景观区相匹配。这是一座高大的集体建筑,居民们可以从远处认出它。它的特点是阳台掩盖了从一楼看不见的大角窗。诚然,它提供了一种在集体环境中的经典生活方式,但在每套公寓(T3、T4)都提供了一个“观景楼客厅”。这座小建筑反映了圣马丁岛别墅的规模,这些别墅与地块的南部和东部接壤。它将最小的公寓(T2)与最大的公寓(T5)混合在一起。它通过保护每套公寓免受噪音和视觉干扰,提供了一种更个性化的生活方式。它的建筑由盲目的垂直砖块组成,将凉廊相互隔离,并与环形交叉口接壤,而不会影响居民。这两座建筑并排共存:小建筑中公寓的精心布局避免了直接看到相邻公寓,并提供了欣赏远处景色的机会。
All the apartments in the project benefit from one or more distant views. The views from the R+2 building are directed, while those from the R+7 building are open and vary according to the height. The rotation of the balconies around a common core on all floors creates balconies with variable geometries. The green courtyard of the residence contributes to the landscape design of the development zone through its continuity with the retention basin. The latter can be seen between the R+2 and R+7 buildings, through the angled entrance hall. The large building is scaled to match the vast landscaped areas of the development zone. It is a tall collective building that residents can recognize from afar. It features balconies that conceal the large corner windows, which are not visible from the ground floor. It offers, admittedly, a classic way of living in a collective setting but provides a 'belvedere-living room' in each apartment (T3, T4). The small building reflects the scale of the villas in St. Martin du Touch, which border the south and east of the plot. It mixes the smallest apartments (T2) with the largest ones (T5). It offers a more individual way of living by protecting each apartment from noise and visual disturbances. Its architecture, composed of blind vertical brick masses, isolates the loggias from each other and borders the roundabout without impacting the residents. Side by side, the two buildings coexist harmoniously: the careful orientation of the apartments in the small building avoids direct views into neighboring apartments and offers the opportunity to enjoy distant views.

© Atelier Félix Faure
景观-Au Loin项目是由当地利益相关者的共同目标推动的:创造一个可持续发展的城市,生活环境支持社会生活、交流、放松、步行和休闲。主要特点包括:1。连接两栋建筑的小广场2。在高架板上种植区域,为底层公寓提供隐私,并为植物的正常生长创造足够的土壤深度3。大型活动草坪4。凉棚下的稳定区域。周围种植了大量植物,并有一个洼地,用于收集雨水,确保与周围地区的水平过渡。可持续性是这些空间设计不可或缺的一部分。可持续性原则体现在:促进人人无障碍的概念选择,减少维护和清洁操作,雨水收集系统,选择原材料、耐用且适应当地环境的材料,以及选择适合当地和住宅环境的耐寒植物。
Landscape - The Au Loin project is driven by a shared ambition among local stakeholders: to create a sustainable city where the living environment supports social life, exchanges, relaxation, walking, and leisure. Key features include: 1. A small square that connects the two buildings 2. Planted areas on raised slabs to provide privacy for the ground-floor apartments and to create enough soil depth for proper plant growth 3. A large activity lawn 4. A stabilized area under a pergola 5. A generously planted perimeter with a swale to collect rainwater and ensure level transitions with the surrounding areas. Sustainability is integral to how these spaces are designed. The principle of sustainability is reflected in: Conceptual choices that promote accessibility for everyone, reducing maintenance and cleaning operations, systems for rainwater collection, selecting materials that are raw, durable, and adapted to the local context, and choosing hardy plants suitable for the local and residential environment.