分层住宅/SMxL建筑师事务所
Layered House / SMxL Architects
独特的设计理念:分层住宅的设计理念十分新颖,侧重于模糊空间边界,创造灵活可变的区域,让生活区与通道巧妙区分又无缝连接。这种设计打破了传统空间的严格定义,为居住者提供了一个充满互动与活力的居住环境。客户对光影变化及家人互动的需求在这个设计中得到了完美体现,使房屋不仅是居住的场所,更是情感交流的空间。
精妙的光影运用:朝南立面的相同窗户与不规则排列的侧窗相结合,实现了有意之光与无意之光的巧妙平衡。既让房屋充分接收阳光,又使光线自然散射,营造出独特的光影效果。同时,这种设计不刻意突出于街景,而是与周围城市风景自然融合,展现了设计师对环境的尊重与和谐共生的理念。
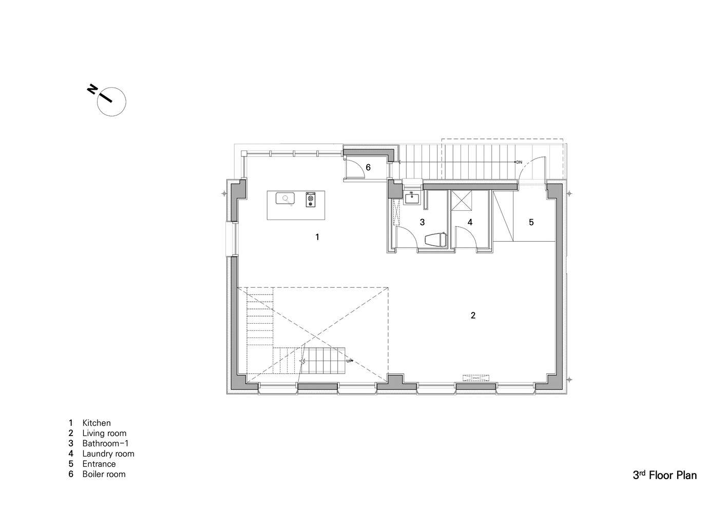
灵动的空间布局:房屋由三层、四层和阁楼组成,内部避免严格物理划分,拥有宽松边界的空间,使整个空间自由流动。木楼梯如雕塑般精致,为房屋带来宁静光线,增添了艺术氛围。通过窗户的光线、家具及装饰品共同创造出无数层次,丰富了空间的质感,夏天窗外梧桐树叶的声音和阴影更是为空间增添了自然之美。

© Beezy Studio

© Beezy Studio
建筑师提供的文字描述分层屋位于西大门区延惠洞和南迦瓦洞之间的边界,坐落在一条相对安静祥和的主干道上。该建筑的规模是由尽头道路的拓宽和北方阳光限制造成的退缩要求决定的。
Text description provided by the architects. Located at the border between Yeonhui-dong in Seodaemun-gu and Namgajwa-dong, the Layered House sits along a relatively quiet and peaceful main road. The building's scale was determined by the widening of the road at a dead-end and the setback requirements due to sunlight restrictions from the north.

© HSPACE

3rd Floor Plan

© HSPACE
这位客户以其独特的风格和强烈的个性而闻名,他设想了一个空间,在这个空间里,光线从早上到晚上全天变化,充满了房子,让家人从任何角落都能感受到彼此的存在。因此,设计理念侧重于模糊空间的边界,灵活使用可以根据目的和功能调整大小的区域。其目的不是将区域严格定义为“客厅”或“走廊”,而是创造一个集体空间,在这个空间中,生活区和通道被巧妙地区分开来,形成一个无缝连接的家。
The client, known for their distinctive style and strong sense of individuality, envisioned a space where the light shifts throughout the day from morning to evening, filling the house and allowing family members to sense each other's presence from any corner. Thus, the design concept focused on blurring the boundaries of spaces, enabling flexible use of areas that can be adjusted in size depending on purpose and function. Instead of strictly defining areas as a 'living room' or 'hallway,' the intention was to create a collective space where living areas and passageways are subtly differentiated, forming a seamless and interconnected home.

© HSPACE
有意之光,无意之光-客户希望通过不断变化的光影运动体验与外界同步的时间流逝。为了实现这一点,朝南的立面有一系列相同的窗户,最大限度地增加了进入房屋的有意光线。同时,侧窗排列不规则,让无意中的光线散射到整个空间。该设计的目的不是在日常街区的街景中脱颖而出,而是与周围的城市风景自然融合。
Intended Light, Unintended Light -The client wished to experience the passage of time in sync with the outside world through the constantly shifting movements of light and shadow. To achieve this, the south-facing facade features a series of identical windows, maximizing the amount of intentional light entering the house. Meanwhile, the side windows were arranged irregularly, allowing unintentional light to scatter throughout the space. The design aimed not to stand out alone in the everyday neighborhood streetscape, but to blend naturally with the surrounding urban scenery.

© HSPACE

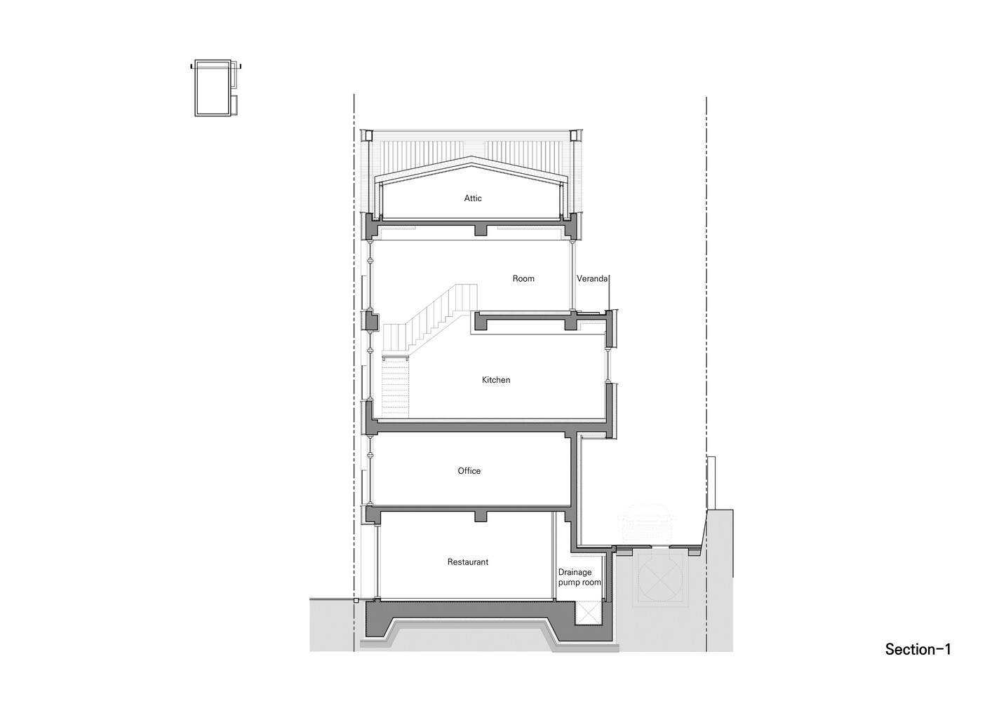
Section

© HSPACE
宽松的边界和自由流动-房子由三层、四层和阁楼组成,内部避免了严格的物理划分,而是拥抱了具有宽松边界的空间。这些柔和的边界使空间变得灵活,使其作为一个开放区域无缝流动。从入口到阁楼,循环就像悠闲的漫步一样展开,内部的巨大深度通过坚固的楼梯创造了新的视角。木楼梯像雕塑一样精致,将宁静的光线带到房子的深处,让每个角落都充满了柔和的光芒。
Loose Boundaries and Free Flow -The house is composed of three floors, a fourth floor, and an attic, with an interior that avoids strict physical divisions, instead embracing spaces with loose boundaries. These gentle boundaries make the space flexible, allowing it to flow seamlessly as one open area. From the entrance to the attic, the circulation unfolds like a leisurely stroll, and the substantial depth of the interior creates new perspectives through the solid staircase. The wooden staircase, delicate like a sculpture, carries tranquil light down into the depths of the house, filling every corner with a soft glow.

© Beezy Studio

Elevation 01
此外,通过窗户反复播放的光线、定义空间边界的家具和精心放置的装饰品共同创造了无数层次。夏天,窗外梧桐树叶的声音和阴影将进一步丰富这个空间。
Additionally, the repeated play of light through the windows, the furniture that defines spatial boundaries, and the carefully placed decorative items together create countless layers. In the summer, the sounds and shadows of plane tree leaves outside the window will further enrich this space.

© Beezy Studio