146住宅楼/实用建筑设计工作室
146 Residential Building / Pragmatica Architectural Design Studio
146 住宅楼位于 Rasht 的 Golsar 社区,占地 500 平方米。一楼停车,五楼是公共空间,一至四楼为住宅单元。区域通过分段干预组织,有三个层次,不同楼层有不同功能布局。因高度差异有夹层和庭院。外观设计需平衡多种矛盾,通过相关设计重新定义住宅与城市关系。
该建筑在功能布局上充分考虑了不同区域的需求,如垂直连接的位置设定以及各层的功能划分。同时,在外观设计上,注重平衡透明度、坚固性以及内外视角等因素,以实现立面不仅是边界,更是促进过渡的中间空间这一目标。

© Deed Studio

© Deed Studio
146住宅楼位于Rasht的Golsar社区,是一座占地500平方米的住宅公寓楼。就项目计划而言,一楼专门用于停车,五楼分配给项目的公共空间,包括娱乐、健身和派对室。这使得住宅单元成为一楼至四楼的单体公寓。
146 Residential Building, located in the Golsar neighborhood of Rasht, is a residential apartment complex built on a 500-square-meter site. In terms of the project's program, the ground floor was dedicated to parking, and the fifth floor was allocated to the project's communal spaces, including recreational, fitness, and party rooms. This left the residential units to be single-unit apartments on the first to fourth floors.

© Deed Studio

Inside-Outside Diagram

© Deed Studio
项目中的私人、公共和半公共区域的组织是通过分段干预实现的,创造了两个突破口,建立了三个层次。垂直连接的位置使住宅单元的入口位于中间。除了入口,客厅、厨房和服务厨房都位于这一层。南层较低,设有一间公共客厅和一间客房,而北侧的上层则专用于三间主卧室。
The organization of private, public, and semi-public areas in the project was achieved through sectional intervention, creating two breaks and establishing three levels. Vertical connections were positioned in a way that the entry to the residential units was from the middle level. In addition to the entrance, the sitting room, kitchen, and service kitchen were placed on this level. The southern level, which was lower, housed a public living room and guest bedroom, while the upper level on the northern side was dedicated to three master bedrooms.

© Deed Studio

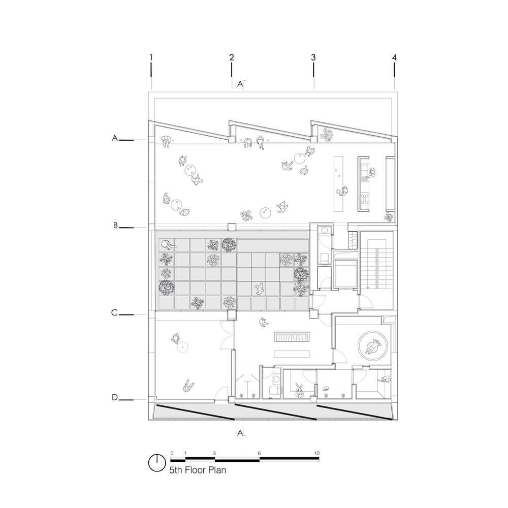
5th Floor Plan

© Deed Studio
由于高度差异,在一楼和一楼之间的北侧创建了一个夹层,该夹层被分配给存储和看护空间。在五楼,这些水平差异影响了公共区域的空间布局及其空间品质。在这一层,中间层被改造成了一个不同层次的庭院,可以进入上层(派对室)和下层(健身区)。这个庭院还为两个区域提供了景观和自然光。
The level differences led to the creation of a mezzanine on the northern side between the ground floor and the first floor, which was assigned to storage and caretaker spaces. On the fifth floor, these level differences influenced the spatial arrangement of the communal areas and their spatial qualities. On this floor, the middle level was transformed into a courtyard with different levels, allowing access to the upper level (party room) and the lower level (fitness area). This courtyard also provided views and natural light for both zones.

© Deed Studio

South Elevation

© Deed Studio
关于外观的决定往往涉及矛盾。例如,最大限度地利用自然光和视野需要透明度,而隐私需要坚固性。平衡这些二元性,如透明度和坚固性,以及内外视角(可见性和隐私性),是塑造建筑立面的决定之一。因此,设计旨在根据以下条款对立面元素进行排序:
Decisions regarding the facade often involve contradictions. For example, maximizing natural light and views calls for transparency, while privacy requires solidity. Balancing these dualities—such as transparency and solidity, as well as views from the inside versus outside (visibility and privacy)—are among the decisions that shaped the building's facade. Therefore, the design aimed to order the facade elements, considering the following terms:
as a dual-purpose element, the facade should not only be an exterior component, but also it should contribute to the "interior design" as well. The facade should evolve from a two-dimensional element into a three-dimensional architectural component with spatial qualities.

© Deed Studio
These considerations in the design allowed for a connection between the building's facade and the intermediary space of the terrace, linked to the residential units. This was achieved by using partition walls in the terraces to control light, adjust the views, and simultaneously ensure privacy.

© Deed Studio
采用这种方法,立面不仅是一个将内部与外部隔开的明确边界,甚至是一个视觉构图,而且是一个促进从内部到外部逐渐过渡的中间空间。这通过城市立面重新定义了住宅空间与城市之间的关系。
Adopting this approach resulted in a facade that is not just a definitive boundary separating the interior from the exterior or even a visual composition, but rather an intermediary space that facilitates the gradual transition from the interior to the exterior. This redefined the relationship between the residential space and the city through the urban facade.

© Deed Studio